QQ登录

只需一步,快速开始

登录 | 注册 | 找回密码

三维网

 找回密码
 注册

QQ登录

只需一步,快速开始

展开

通知     

全站
8天前
查看: 10547|回复: 54
收起左侧

[练习题] 【进阶级练习题58】

[复制链接]
发表于 2008-2-3 19:46:38 | 显示全部楼层 |阅读模式 来自: 中国上海

马上注册,结识高手,享用更多资源,轻松玩转三维网社区。

您需要 登录 才可以下载或查看,没有帐号?注册

x
本题发表至下一题发表之间,恰逢我国的传统节日——(鼠年)春节,在此,特向各位网友恭贺新禧!祝大家新春愉快!万事如意!
" @, Z5 T; D! |1 `7 }  E# ]( L' \1 G+ c
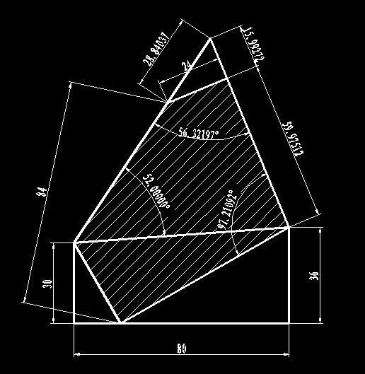
【进阶级练习题58】
! q# r% o) `5 f& Z' c) g! U" ?+ G
; z2 y5 _* j5 b5 A9 {9 n/ l" H求:
8 M( p; H0 H1 ~" O) M; ~! ?4 w1. a 之长度为何?
% K2 B: P7 H# ]' {        a. 28.8044     b. 28.8404     c. 28.8440# |6 W1 D6 q2 F8 {, ~6 N2 N) s
2. b 之长度为何?
5 N, }1 c- k% ~, [- i* z6 c        a. 15.9297     b. 15.9729     c. 15.9927
- ?# J# o9 `3 H  i: m% n4 U& G3. c 之角度值为何?1 W: Z) b& R, D6 K
        a. 56.223°     b. 56.232 °     c. 56.322°  + w6 H8 \4 s' F0 u% ], P7 D. E
4. d 之角度值为何?
. w- Y. R2 I, Z5 V1 f        a. 97.112°     b. 97.121°     c. 97.211°
7 Z1 H3 i7 D/ d5. e 之长度为何?& i/ v3 y( i0 y* u
        a. 59.9157     b. 59.9571     c. 59.9751# q2 W0 N0 C  m! x
6. 剖面线区域之面积为何?
) L3 u+ d, F' R+ M# U% l& a6 p        a. 3952.4446     b. 3952.4464     c. 3952.4644
Problem58.gif

评分

参与人数 1三维币 +10 收起 理由
★新手★ + 10 提供作图练习

查看全部评分

发表于 2008-2-3 20:05:33 | 显示全部楼层 来自: 中国河南焦作
回复:, I8 k8 y5 {! {' D* p
, X. U+ r# J3 u# Z- Y5 W
[ 本帖最后由 ★新手★ 于 2008-2-6 23:47 编辑 ]
2.JPG

评分

参与人数 1三维币 +5 收起 理由
★新手★ + 5 积极参与

查看全部评分

发表于 2008-2-3 20:19:53 | 显示全部楼层 来自: 中国江苏镇江
ANSWER:BCCCCA
58.JPG

评分

参与人数 1三维币 +5 收起 理由
★新手★ + 5 积极参与

查看全部评分

发表于 2008-2-3 21:45:07 | 显示全部楼层 来自: 中国台湾
(1).b     (2).c     (3).c     (4).c     (5).c     (6).a
58.jpg

评分

参与人数 1三维币 +5 收起 理由
★新手★ + 5 积极参与

查看全部评分

发表于 2008-2-3 22:04:04 | 显示全部楼层 来自: 中国浙江绍兴
b  c  c  c  c  a
59.jpg

评分

参与人数 1三维币 +5 收起 理由
★新手★ + 5 积极参与

查看全部评分

发表于 2008-2-4 09:46:57 | 显示全部楼层 来自: 中国浙江金华
答案:BCCCCA
进阶级练习题58.JPG

评分

参与人数 1三维币 +5 收起 理由
★新手★ + 5 积极参与

查看全部评分

发表于 2008-2-4 10:06:57 | 显示全部楼层 来自: 中国广东深圳
祝大家心想事成,新春愉快!
58.JPG

评分

参与人数 1三维币 +5 收起 理由
★新手★ + 5 积极参与

查看全部评分

发表于 2008-2-4 11:26:02 | 显示全部楼层 来自: 中国福建三明
新年作业,也祝大家新年快乐!
进阶级练习题58.gif

评分

参与人数 1三维币 +5 收起 理由
★新手★ + 5 积极参与

查看全部评分

发表于 2008-2-4 12:43:48 | 显示全部楼层 来自: 中国台湾
【进阶级练习题58】
3 \+ |5 V" ?6 w0 ?/ x求:
5 g  K1 d' @. B1. a 之长度为何?b. 28.8404
2 ^3 k/ n& H% }+ V' d1 D3 H9 e
4 _1 v/ E6 L6 O4 m, N2. b 之长度为何?c. 15.9927
/ J9 _2 m1 W1 K/ B  |7 X+ M3 i8 _% q0 Z& c) b6 l
3. c 之角度值为何?c. 56.322°" C% p9 a1 j3 Q

/ ]  L9 ~% J$ H5 ~4. d 之角度值为何?c. 97.211°2 y1 x3 S2 J9 g2 P2 C, ^

( ^7 ~/ A/ M2 n3 J3 J$ ~5. e 之长度为何?c. 59.9751
2 u* _( n# r) ?" K
* x. V( `4 b8 n+ c6. 剖面线区域之面积为何? a. 3952.4446
58.png

评分

参与人数 1三维币 +5 收起 理由
★新手★ + 5 积极参与

查看全部评分

发表于 2008-2-4 13:09:56 | 显示全部楼层 来自: 中国福建莆田
先占个位,玩下游戏再来做题,祝大家节日快乐,心想事成.
发表于 2008-2-4 13:26:16 | 显示全部楼层 来自: 中国辽宁丹东
答案:b;c;c;c;c;a
1.JPG

评分

参与人数 1三维币 +5 收起 理由
★新手★ + 5 积极参与

查看全部评分

发表于 2008-2-4 15:03:45 | 显示全部楼层 来自: 中国江苏南京
唉快过年了还那么多人还没挤进前十名5 P* s% O9 Q3 y% H$ @: A
, e1 s4 W/ m& y5 w' x  q% L
[ 本帖最后由 ★新手★ 于 2008-2-6 23:47 编辑 ]
58.JPG

评分

参与人数 1三维币 +5 收起 理由
★新手★ + 5 积极参与

查看全部评分

发表于 2008-2-4 16:37:43 | 显示全部楼层 来自: 中国福建莆田
有时间了来一个.
雄哥.jpg

评分

参与人数 1三维币 +5 收起 理由
★新手★ + 5 积极参与

查看全部评分

发表于 2008-2-4 18:50:39 | 显示全部楼层 来自: 中国江苏无锡

进阶级练习题58

我的答案:BCCCCA
58.jpg

评分

参与人数 1三维币 +5 收起 理由
★新手★ + 5 积极参与

查看全部评分

发表于 2008-2-4 22:49:24 | 显示全部楼层 来自: 中国河南郑州
我的答案 看看
0.GIF

评分

参与人数 1三维币 +5 收起 理由
★新手★ + 5 积极参与

查看全部评分

发表于 2008-2-8 10:06:31 | 显示全部楼层 来自: 中国河南安阳
11111.png

评分

参与人数 1三维币 +8 收起 理由
★新手★ + 8 解决参与、新年快乐!

查看全部评分

 楼主| 发表于 2008-2-10 14:49:12 | 显示全部楼层 来自: 中国上海
本题答案、解题以及动画演示已经发表,见:/ L% y2 v" D& C/ n7 f& M+ i
http://www.3dportal.cn/discuz/vi ... &extra=page%3D1
发表于 2008-2-10 17:59:53 | 显示全部楼层 来自: 中国内蒙古赤峰
答案:B,C,C,C,C,A
- b0 R- p* s, I4 H! [, P. `, a& K, D祝三维网的朋友们新年快乐! 58.jpg

评分

参与人数 1三维币 +5 收起 理由
2005llnn + 5 正确

查看全部评分

发表于 2008-2-10 19:17:47 | 显示全部楼层 来自: 中国重庆
呵呵,我也来参与一下(辅助线未删除)
6 e% V9 a' N( o5 B$ Z答案:b;c;c;c;c;a
# l4 c% J- w( U, e  e
7 P5 W" E: a7 _8 j: e8 p[ 本帖最后由 嘒彼小星 于 2008-2-10 19:19 编辑 ]
未命名.jpg

评分

参与人数 1三维币 +5 收起 理由
2005llnn + 5 正确

查看全部评分

发表于 2008-2-10 23:20:23 | 显示全部楼层 来自: 中国山东威海
今天来逛逛,看到有这样的好题,练练手
1.jpg
2.jpg

评分

参与人数 1三维币 +5 收起 理由
2005llnn + 5 正确

查看全部评分

发表于 2008-2-11 00:30:34 | 显示全部楼层 来自: 中国山东莱芜
虽不能加分了,但学习了
发表于 2008-2-11 17:35:15 | 显示全部楼层 来自: 中国湖北襄阳
祝大家新年快乐!
文件.jpg

评分

参与人数 1三维币 +5 收起 理由
2005llnn + 5 正确

查看全部评分

发表于 2008-2-12 19:40:48 | 显示全部楼层 来自: 中国台湾
现在有人在这里么??请问求面积是怎么求的~!?本人是2007的英文版! 请那位大侠说下!i就以上面那个为例吧!~!  谢谢
发表于 2008-2-14 00:43:00 | 显示全部楼层 来自: 中国上海
祝大家新年快乐
发表于 2008-2-14 21:14:40 | 显示全部楼层 来自: 中国浙江宁波
大家新年好!
2008-04.JPG

评分

参与人数 1三维币 +5 收起 理由
2005llnn + 5 正确

查看全部评分

发表回复
您需要登录后才可以回帖 登录 | 注册

本版积分规则


Licensed Copyright © 2016-2020 http://www.3dportal.cn/ All Rights Reserved 京 ICP备13008828号

小黑屋|手机版|Archiver|三维网 ( 京ICP备2023026364号-1 )

快速回复 返回顶部 返回列表