QQ登录

只需一步,快速开始

登录 | 注册 | 找回密码

三维网

 找回密码
 注册

QQ登录

只需一步,快速开始

展开

通知     

全站
8天前
查看: 3552|回复: 8
收起左侧

[已解决] 水泥磨进料螺旋筒如何分辨螺旋旋向?

[复制链接]
发表于 2008-2-18 13:10:29 | 显示全部楼层 |阅读模式 来自: 中国辽宁朝阳

马上注册,结识高手,享用更多资源,轻松玩转三维网社区。

您需要 登录 才可以下载或查看,没有帐号?注册

x
水泥磨进料螺旋筒如何分辨螺旋旋向?有无简单办法?或经验办法?请高人指点.
发表于 2008-2-18 15:14:16 | 显示全部楼层 来自: 中国山西太原
水泥磨进料螺旋筒内焊的螺旋叶片旋向,与假设中间有轴焊在轴上的叶片旋向一样。右旋:可用右手定则判断:拇指代表叶片前进(或上升)方向,其余四指代表叶片旋向。或者将筒体立看,靠近的叶片从左下往右上方斜,为右旋。左旋,同样方法用左手判断。: @5 L. M$ g! M/ B; a0 G; @
物料运动方向:站在进料端看,右旋叶片筒体逆时针转物料前进。左旋相反。

评分

参与人数 1三维币 +5 收起 理由
z6z6j6 + 5 应助

查看全部评分

 楼主| 发表于 2008-2-19 15:39:30 | 显示全部楼层 来自: 中国辽宁朝阳
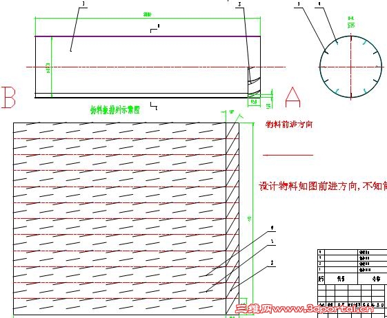
谢谢高人的指点,我想实际的问一下,下面的图纸,按照图纸,和物料的前进方向,筒体在A看,筒体如何转动? 扬料板展开图.pdf (233.07 KB, 下载次数: 25)
发表于 2008-2-19 17:53:18 | 显示全部楼层 来自: 中国山东青岛
从A端上看应为顺时针旋转
 楼主| 发表于 2008-2-20 10:48:42 | 显示全部楼层 来自: 中国辽宁朝阳
非常感谢高人的指点,受益菲浅,祝您新年快乐.
 楼主| 发表于 2008-2-20 13:15:02 | 显示全部楼层 来自: 中国辽宁朝阳
是否应该是 左旋叶片 A端看筒体顺时针转动,物料由A向B前进?
发表于 2008-2-28 19:37:08 | 显示全部楼层 来自: 中国广西南宁
最简单的办法就是受力分析,物料受到螺旋板的力方向是斜向筒体的力,则为进料筒.否则为出料螺旋.
发表于 2010-9-28 16:13:43 | 显示全部楼层 来自: 中国江苏南京
本图螺旋方向是右旋,在A点看逆时针旋转,物料从A到B。符合物料运动方向:站在进料端看,右旋叶片筒体逆时针转物料前进。左旋相反。也符合最简单的办法就是受力分析,物料受到螺旋板的力方向是斜向筒体的力,则为进料筒.否则为出料螺旋.
发表于 2010-10-5 16:47:02 | 显示全部楼层 来自: 中国河北廊坊
这个展开下料板要卷成圆筒状,相当于螺母。是左旋方向,顺时针旋转物料前进。这左旋螺母一样,螺杆顺时针转时退出,若螺杆轴向固定旋转,螺母就向前进了。
扬料板展开图.jpg
发表回复
您需要登录后才可以回帖 登录 | 注册

本版积分规则


Licensed Copyright © 2016-2020 http://www.3dportal.cn/ All Rights Reserved 京 ICP备13008828号

小黑屋|手机版|Archiver|三维网 ( 京ICP备2023026364号-1 )

快速回复 返回顶部 返回列表