QQ登录

只需一步,快速开始

登录 | 注册 | 找回密码

三维网

 找回密码
 注册

QQ登录

只需一步,快速开始

展开

通知     

查看: 1910|回复: 5
收起左侧

[已解决] 装配体中的剖切

[复制链接]
发表于 2008-2-22 09:37:35 | 显示全部楼层 |阅读模式 来自: 中国辽宁辽阳

马上注册,结识高手,享用更多资源,轻松玩转三维网社区。

您需要 登录 才可以下载或查看,没有帐号?注册

x
在装配体中剖切视图,能不能让其中一个零件显示全部而不剖切,比如在装配体中的内部零件,为了显示零件剖切后连这个零件也剖切了。
发表于 2008-2-22 10:23:35 | 显示全部楼层 来自: 中国湖南长沙
可以。注意剖切范围就行了。! |8 d% u/ ^' m! V: M# ~0 g
" n- t4 E% v' y" c3 a& f/ Z& J
[ 本帖最后由 xxyumingao 于 2008-2-22 10:30 编辑 ]
1.jpg

评分

参与人数 1三维币 +2 收起 理由
qian300 + 2 应助

查看全部评分

 楼主| 发表于 2008-2-22 10:56:21 | 显示全部楼层 来自: 中国辽宁辽阳
我还是没有弄明白,我不在工程图中的剖切视图,是在装配体中观察零件。希望楼上说的详细一点,谢谢!
发表于 2008-3-6 20:15:12 | 显示全部楼层 来自: 中国山东烟台
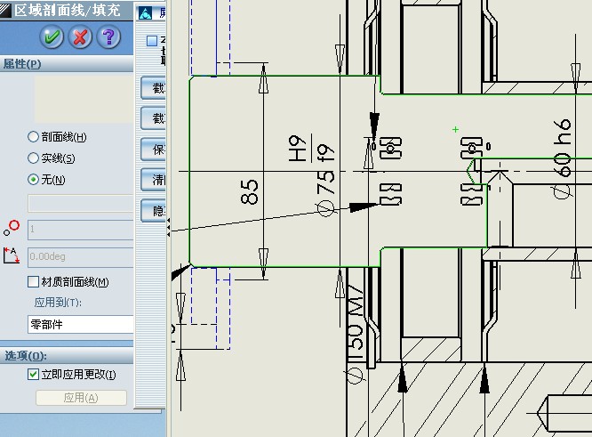
方法一:双击工程图中零件,材质剖面线选项选择“无”,见附件
as.jpg

评分

参与人数 1三维币 +2 收起 理由
qian300 + 2 应助

查看全部评分

发表于 2008-3-6 22:16:58 | 显示全部楼层 来自: 中国广东广州
谢谢楼主分享支持下,学习了
发表于 2008-3-8 14:44:36 | 显示全部楼层 来自: 中国安徽安庆
不太明白能否做一个动画看看
发表回复
您需要登录后才可以回帖 登录 | 注册

本版积分规则


Licensed Copyright © 2016-2020 http://www.3dportal.cn/ All Rights Reserved 京 ICP备13008828号

小黑屋|手机版|Archiver|三维网 ( 京ICP备2023026364号-1 )

快速回复 返回顶部 返回列表