QQ登录

只需一步,快速开始

登录 | 注册 | 找回密码

三维网

 找回密码
 注册

QQ登录

只需一步,快速开始

展开

通知     

全站
10天前
查看: 2784|回复: 11
收起左侧

[已答复] 同心度计算

[复制链接]
发表于 2008-2-27 13:45:03 | 显示全部楼层 |阅读模式 来自: 中国广东东莞

马上注册,结识高手,享用更多资源,轻松玩转三维网社区。

您需要 登录 才可以下载或查看,没有帐号?注册

x
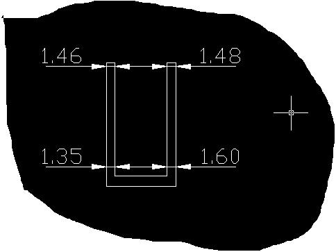
请各位帮看看下面这个附件同心度是多少?因没有同心度仪,用投影仪测的四个位置尺寸.不知道能不能这样算同心度??
111.JPG
发表于 2008-2-27 17:17:43 | 显示全部楼层 来自: 中国山西太原
问题不太明确,你的图是不是一个“U”形薄板,如果是,画上中心线要求两边的对称度较好。测量对称度时,将工件转90°,置于平台上,在两边靠两端的内口测宽度,取中点,二中点连线为中心线,调至水平,固定。用百分表打各点的值,可算出对称度。

评分

参与人数 1三维币 +5 收起 理由
华氏911 + 5 应助,欢迎继续讨论

查看全部评分

发表于 2008-2-27 19:58:59 | 显示全部楼层 来自: 中国福建厦门
如果是U形板,这个方法根本没办法算同心度.用这个来算也太麻烦点了1
发表于 2008-2-29 10:41:43 | 显示全部楼层 来自: 中国河北唐山
我看也应该是标注对称度比较适合
发表于 2008-2-29 10:59:42 | 显示全部楼层 来自: 中国江苏无锡

回复 1# 的帖子

有道理,可是这个图不够完整,
发表于 2008-2-29 12:07:03 | 显示全部楼层 来自: 中国陕西西安

同心度计算

根据图上的尺寸没有办法计算,图上没有标出内径
发表于 2008-2-29 12:34:23 | 显示全部楼层 来自: 中国浙江宁波
很简单,尺寸标注的方法改下,增加中心线,以中心线为基准来测上述四个尺寸,然后计算测量后的内外轮廓中心线的实际差值,再乘2就行

评分

参与人数 1三维币 +2 收起 理由
华氏911 + 2 应助

查看全部评分

发表于 2008-3-2 09:42:14 | 显示全部楼层 来自: 中国江苏常州

回复 1# 的帖子

我认为可以这样测量同心度(最大值-最小值)就是外园对内孔的同心度,并不需要中心线或基准.但若想测量对称度就必须有中心线及基准.

评分

参与人数 1三维币 +2 收起 理由
华氏911 + 2 积极参与

查看全部评分

发表于 2008-3-2 14:34:05 | 显示全部楼层 来自: 中国江苏南京
你最好把零件图附上,并注明测量的四个位置,这样才能知道能不能算。
 楼主| 发表于 2008-3-3 18:54:58 | 显示全部楼层 来自: 中国广东东莞
这是原图,请大家参考,谢谢!
6.JPG
发表于 2008-3-4 18:33:57 | 显示全部楼层 来自: 中国重庆
用投影仪的反射投影,测量两个圆,再求它们的关系就可以了。
发表于 2008-3-4 18:51:16 | 显示全部楼层 来自: 中国江苏南京
从楼主提供的两次图看同轴度是超差的,不过,这图设计也有点问题,%%C12做基准却是自由公差,这样内外圆度的误差也会影响同轴度。
发表回复
您需要登录后才可以回帖 登录 | 注册

本版积分规则


Licensed Copyright © 2016-2020 http://www.3dportal.cn/ All Rights Reserved 京 ICP备13008828号

小黑屋|手机版|Archiver|三维网 ( 京ICP备2023026364号-1 )

快速回复 返回顶部 返回列表