QQ登录

只需一步,快速开始

登录 | 注册 | 找回密码

三维网

 找回密码
 注册

QQ登录

只需一步,快速开始

展开

通知     

查看: 1556|回复: 4
收起左侧

[求助] 请高手看看这样的锻造行不行?

[复制链接]
发表于 2008-3-5 12:01:58 | 显示全部楼层 |阅读模式 来自: 中国山东济宁

马上注册,结识高手,享用更多资源,轻松玩转三维网社区。

您需要 登录 才可以下载或查看,没有帐号?注册

x
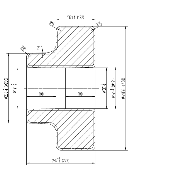
请高手看看这样的锻造行不行?
  Z3 U" @* i7 I2 a# ]( e括号内为加工尺寸,双点划线表示加工好的图形,没有公差要求/ B: U5 f5 t+ K- k6 W- Q
如果不合理,请各位高手指教一下,应该怎么改,谢谢!!
未命名.GIF

12.pdf

17.38 KB, 下载次数: 4

发表于 2008-3-5 12:35:06 | 显示全部楼层 来自: 中国江苏常州
中心孔冲通成本较高,不如两端冲不通的沉孔锻造更方便一些。
发表于 2008-3-5 19:29:55 | 显示全部楼层 来自: 中国重庆
中心孔连皮冲掉还是要经济些。
发表于 2008-3-5 19:42:38 | 显示全部楼层 来自: 中国山西长治
外部拔模斜度最小也得个5度.内孔得来个7度.9 |8 O0 \( v" e
另通孔就不要锻出来了.带个10mm的连皮,比较合理.就在孔的中部位置即可
发表于 2008-3-5 19:53:35 | 显示全部楼层 来自: 中国广东清远
Φ148*132的地方需要拔模斜度,余量留得太大了,成本高了,
发表回复
您需要登录后才可以回帖 登录 | 注册

本版积分规则


Licensed Copyright © 2016-2020 http://www.3dportal.cn/ All Rights Reserved 京 ICP备13008828号

小黑屋|手机版|Archiver|三维网 ( 京ICP备2023026364号-1 )

快速回复 返回顶部 返回列表