QQ登录

只需一步,快速开始

登录 | 注册 | 找回密码

三维网

 找回密码
 注册

QQ登录

只需一步,快速开始

展开

通知     

查看: 3315|回复: 18
收起左侧

[讨论] 形位公差--直线度

[复制链接]
发表于 2008-3-14 18:39:45 | 显示全部楼层 |阅读模式 来自: 中国江苏南京

马上注册,结识高手,享用更多资源,轻松玩转三维网社区。

您需要 登录 才可以下载或查看,没有帐号?注册

x
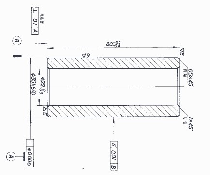
大家说说直线度的含义啊,今天早上看了一个图纸,一个轴,标的是中心线的直线度是0.1,然后我测量的时候是用双V型支起来,然后用百分表放在中间,然后转动轴一周,最后读数,得到数值0.46,是不是最后的直线度是0.46/2=0.23。
发表于 2008-3-14 19:03:36 | 显示全部楼层 来自: 中国山西长治
零件上的直线要素实际形状,保持理想直线的状况,你量出的数值还应该参考长度方向的尺寸
发表于 2008-3-14 19:05:43 | 显示全部楼层 来自: 中国北京
不能用V形支座检测
: q" f1 ~3 E9 U" U* d应该将零件(轴)放在平台上,紧靠直角座,一边转动零件,一边移动表座,* {! u3 Z: @; R* J7 O7 h) ^4 }
打出来的数据应该在0.1范围内,没有除以2的说法
 楼主| 发表于 2008-3-14 21:21:53 | 显示全部楼层 来自: 中国江苏南京
楼上的说法,紧靠直角尺,我不是很明白啊,我说的是表在轴向上也移动,然后再转动产品,最后得出的数据除2,不知道为什么不对。
发表于 2008-3-14 21:31:50 | 显示全部楼层 来自: 中国山西太原
楼主给出的轴心线的直线度公差有误,0.1前面应加φ,轴线直线度公差带是在直径为0.1mm的圆柱面内的区域。而3楼测量的是圆柱面上素线的直线度,与楼主给的条件不符。楼主的测量方法可行,但误差值不太正确,另外V型铁和平台精度需符合测量精度要求。测一个圆周点不全面,应多测几处,每处求出最大和最小读数之差被2除得的商。各处测得的商取最大值,即为该轴心线的直线度。. d) S, G  U* g2 o, _
圆柱面上素线的直线度与轴心线的直线度公差带是有区别的,见如下说明:
圆柱面的素线与圆柱轴线的直线度.jpg
 楼主| 发表于 2008-3-14 22:24:46 | 显示全部楼层 来自: 中国江苏南京
谢谢楼上兄弟的解释: :handshake
发表于 2008-3-15 00:03:41 | 显示全部楼层 来自: 中国黑龙江哈尔滨
你说的测量的是圆跳度吧,直线度是所指轴或短面在以基准为轴心,精度值为半径的圆柱内。可以参考以下《互换性与测量技术》一书
发表于 2008-3-15 11:18:12 | 显示全部楼层 来自: 中国江苏苏州
请问您那边有这本书么?
1 q! L6 H- \6 `/ z' j" }1 l我很需要
 楼主| 发表于 2008-3-15 12:37:02 | 显示全部楼层 来自: 中国江苏南京
书上是有点,但是有时总是不是那么好理解。
发表于 2008-3-15 21:37:43 | 显示全部楼层 来自: 中国江苏常州
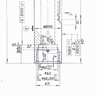
发三张图片啊~~~~~~~~~~~- S5 p% d- {- Y+ V5 G9 [
------------------------
/ [+ y1 j0 W5 r9 u说明:
/ O& r/ A* i  {; a这个轴线的直线度不大好测量3 @9 ]( j& W' O2 J
圆柱面的素线好点$ K" h. V9 d7 A4 e7 k
这个轴线的直线度可以在跳动里面反映出来这个好测量;
011.jpg
022.jpg
033.jpg
发表于 2008-3-16 05:26:20 | 显示全部楼层 来自: 中国上海
到工厂里去做上三年 这些就都会了 纸上谈兵没有用的
发表于 2008-3-16 09:42:58 | 显示全部楼层 来自: 中国浙江宁波
楼上说的有道理
( b2 S2 Q4 W: K; |! m9 i$ L
发表于 2008-3-17 10:48:02 | 显示全部楼层 来自: 中国陕西宝鸡
但怎么做,好像还是没有说清楚。+ o- |: q8 y+ x2 J" \1 G
个人认为:
( w& K' z  W% R- T对于零件的要求,特别是形位公差一类的标注,很多检验起来都比较困难。
" d, u& m1 Y6 p* M5 {特别是那些没有专业工具的地方,很多方法理论上可行,但实际并不可行。
% Q( x# G/ E7 r+ F1 T, {. X4 z/ a因为不能因为一年仅测一次、两次,就购买很贵的仪器,没有相应的仪器,测量就是一句空话。
 楼主| 发表于 2008-3-20 17:55:38 | 显示全部楼层 来自: 中国江苏南京

孔的对称度怎么检测?

一个轴上边有一个孔,怎么检测孔中心相对于轴中心线的对称度啊?
发表于 2008-3-28 18:12:30 | 显示全部楼层 来自: 中国浙江绍兴
请问您那边有这本书么?1 E* s9 X% I1 K' T5 i& S. E
我很需要
发表于 2008-3-29 12:18:59 | 显示全部楼层 来自: 中国浙江宁波
5五楼的说得很好,我在一本书上看过,由中国计量学院出版的《长度计量》中的第八章“形状和位置误差测量”一样,楼主不妨可以买一本看看。http://www.zgjl.com.cn。地址是:北京和平里西街甲2号。中国计量学院出版,供大家参考
发表于 2008-3-29 12:45:59 | 显示全部楼层 来自: 中国浙江宁波
关于14楼提出的“孔的对称度怎么检测?”
7 ]5 t+ B9 u  v* C一个轴上边有一个孔,怎么检测孔中心相对于轴中心线的对称度啊?
  R  }; J$ g  f* c' s+ l   我教的检验员是这样测的:(轴上横孔)先准备一根与孔的大小相接近的圆棒,最好是磨过的,长度为MIN被测轴的直径乘以2;用线切在一块已通过检测过(平行度,垂直度ok)的方铁上,根据轴的外圆大小在方铁的一个面上割掉一块,割掉的宽度比轴的直径大0.5-1.0mm即可,深度比轴的半径深即可。再在方铁的切割面再切割一个比圆棒直径大0.1左右的半圆形(半圆和第一次割的成90度为益)。检测方法:将圆棒从轴的孔穿过,再将个好的方铁放在被测轴上,圆棒放在个好的半圆里。测量出孔的边到轴面的距离,再测另一面,两个值得差就是你的答案。
发表于 2008-5-30 16:13:04 | 显示全部楼层 来自: 中国广东广州
我这新手需要好好学习啊~~~
发表于 2008-5-30 16:44:05 | 显示全部楼层 来自: 中国北京
原帖由 随风飘尘 于 2008-3-29 12:45 发表 http://www.3dportal.cn/discuz/images/common/back.gif
. w8 P- h, b' [8 X- \关于14楼提出的“孔的对称度怎么检测?”7 e! @- M4 z6 {( y, R6 W
一个轴上边有一个孔,怎么检测孔中心相对于轴中心线的对称度啊?4 O2 [9 V2 ?6 L! F
   我教的检验员是这样测的:(轴上横孔)先准备一根与孔的大小相接近的圆棒,最好是磨过的,长度为MIN被 ...
/ n0 x9 R* N( z
没看明白,说的太饶口了
发表回复
您需要登录后才可以回帖 登录 | 注册

本版积分规则


Licensed Copyright © 2016-2020 http://www.3dportal.cn/ All Rights Reserved 京 ICP备13008828号

小黑屋|手机版|Archiver|三维网 ( 京ICP备2023026364号-1 )

快速回复 返回顶部 返回列表