QQ登录

只需一步,快速开始

登录 | 注册 | 找回密码

三维网

 找回密码
 注册

QQ登录

只需一步,快速开始

展开

通知     

全站
9天前
查看: 1951|回复: 7
收起左侧

[已解决] 清灰装置中导气管的结尾处?

[复制链接]
发表于 2008-3-17 11:22:54 | 显示全部楼层 |阅读模式 来自: 中国广东肇庆

马上注册,结识高手,享用更多资源,轻松玩转三维网社区。

您需要 登录 才可以下载或查看,没有帐号?注册

x
清灰装置中,每排的尽头,用什么方法可以堵住文氏管盖的一端(内孔直径为40),而保证密封不松动呢!
# k# y" z$ C5 {& e# _2 x9 e
% n9 v5 S( W4 h3 l( ~. G0 P即图中件12应该做成什么?
清灰装置.jpg
发表于 2008-3-17 17:17:36 | 显示全部楼层 来自: 中国山西太原
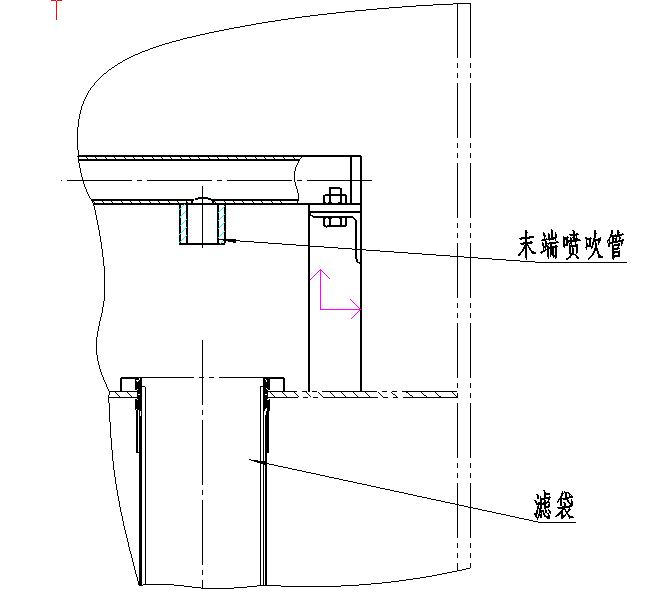
袋式除尘器每排喷吹管的末端是焊堵板封死的,不通气。新设计的袋滤器喷吹管下端不再用文氏管了,引流效果一样。新设计的喷吹管末端的结构见下图:( H  N/ e& ]1 S3 D

4 O! s7 [9 d1 B1 g[ 本帖最后由 gaoyns 于 2008-3-17 17:18 编辑 ]
喷吹管末端.jpg

评分

参与人数 1三维币 +8 收起 理由
userkypdy + 8 应助

查看全部评分

 楼主| 发表于 2008-3-18 08:13:37 | 显示全部楼层 来自: 中国广东肇庆

回复 2# 的帖子

这个样子好啊,不用搞哪个形状奇怪又麻烦的文氏管!这图看上去老简单的!主管子上面开小孔焊接一分管子就成了喷吹管了!就那么简单吗
! T& M! A/ w( g* ~; [- v只是我水有限,只会照着那个文氏管来测绘了!
; y0 b6 \0 q7 A- r: S/ Y
3 ]/ U4 J# j/ ]$ L) i2 U4 G[ 本帖最后由 WWXGO 于 2008-3-18 08:18 编辑 ]
发表于 2008-3-18 08:38:05 | 显示全部楼层 来自: 中国山西太原

回复 3# 的帖子

早期设计的滤袋入口处都有文氏管,近年设计的喷吹装置都不要文氏管了,实践证明效果没有明显区别。上图就是最新的设计结构。
' ?  i0 u/ z, d喷吹小管比主管细一些,例如上图中,主管为φ89mm,小管为φ57mm。
$ F' x  F0 S. @) e
% K7 |) w0 v) Z7 W& c& o& s[ 本帖最后由 gaoyns 于 2008-3-18 08:41 编辑 ]
 楼主| 发表于 2008-3-19 08:18:33 | 显示全部楼层 来自: 中国广东肇庆

回复 4# 的帖子

我也想做个这样的结构备用,那个文氏管的,因我们没压铸机器,怕到时候做不出来!
( s2 M! [$ b9 t2 X1 G: H这结构中,可以这样理解吗:分管直径:主管直径 = 1:1.6 ,主管出气小孔约为分管内孔直径1/2,分管长度是:主管中心线到花板距离的1/3。
  \; }) u1 @0 N还有个问题1:分管出气口处不用加工成什么形状吗?
# v) h; ^# j2 }4 W" A, e          2:袋笼是怎么固定在花板上的呢?
4 r1 ]# e# ?8 e3 ^1 k/ u; H# u* J# ^5 S# ?: m
:loveliness: 您别怪琐碎!!
# E. K' @4 J/ n! n) L' r- y3 w: B* k" u+ H* Z+ F
[ 本帖最后由 WWXGO 于 2008-3-19 08:20 编辑 ]
发表于 2008-3-19 10:13:47 | 显示全部楼层 来自: 中国山西太原

回复 5# 的帖子

喷吹管就是你理解的那样。喷吹小管端面车平即可,不用车角度。袋笼上部有凸缘,滤袋用卡箍固定在凸缘内侧,装上滤袋的袋笼穿进花板,凸缘挡在孔上,活吊在花板上。袋笼有标准件,最好外购,比自制的使用寿命长。

评分

参与人数 1三维币 +7 收起 理由
userkypdy + 7 应助

查看全部评分

 楼主| 发表于 2008-3-20 09:14:50 | 显示全部楼层 来自: 中国广东肇庆

回复 6# 的帖子

我选用上海袋式除尘器配件公司的,圆笼型笼骨直径147,对应袋直径152,那么花板的孔直径应该多少呢?笼骨长度选2400,是不是袋也选2400呢?" x' z: X% x( l/ d& f; [7 |7 y& _

, y. }7 B- l, e7 N9 b8 \& h[ 本帖最后由 WWXGO 于 2008-3-20 09:22 编辑 ]
11.jpg
发表于 2008-3-20 14:39:51 | 显示全部楼层 来自: 中国山西太原
我们这里也是用上海袋式除尘器配件公司的滤袋,花板孔比滤袋直径大5mm,即φ157mm。要用刀盘划孔,不要用气割方法开孔。滤袋长与笼骨长是配套的,同样规格。

评分

参与人数 1三维币 +5 收起 理由
userkypdy + 5 应助

查看全部评分

发表回复
您需要登录后才可以回帖 登录 | 注册

本版积分规则


Licensed Copyright © 2016-2020 http://www.3dportal.cn/ All Rights Reserved 京 ICP备13008828号

小黑屋|手机版|Archiver|三维网 ( 京ICP备2023026364号-1 )

快速回复 返回顶部 返回列表