QQ登录

只需一步,快速开始

登录 | 注册 | 找回密码

三维网

 找回密码
 注册

QQ登录

只需一步,快速开始

展开

通知     

全站
2天前
查看: 1385|回复: 8
收起左侧

[已解决] 请教各位大虾一个问题!

[复制链接]
发表于 2008-3-18 12:30:44 | 显示全部楼层 |阅读模式 来自: 中国广东韶关

马上注册,结识高手,享用更多资源,轻松玩转三维网社区。

您需要 登录 才可以下载或查看,没有帐号?注册

x
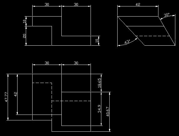
已知左视图和主视图求作俯视图,如图一8 S9 g3 A0 c+ `5 H. M1 V' [

图一

图一

# Q$ r& K; K0 l6 L& M5 }1 `0 c; E

! T( q; H" \. i  K  _0 T* Z俯视图请标注啊,谢谢了!! )2*(
 楼主| 发表于 2008-3-18 12:48:42 | 显示全部楼层 来自: 中国广东韶关
左边那个视图是主视图,右边那个是左视图。那是高级CAD的题目,要交作业啊,那位能帮帮我
发表于 2008-3-18 13:08:45 | 显示全部楼层 来自: 中国浙江宁波
立体的Z字斜切两刀就是了!; {  Z, L: j: l( m( [( p
" ~4 w6 H. m5 X8 u( e' h. |
[ 本帖最后由 sealive_leafage 于 2008-3-18 13:32 编辑 ]
未命名.JPG

Drawing1.rar

14.2 KB, 下载次数: 4

Drawing2.rar

11.79 KB, 下载次数: 6

评分

参与人数 1三维币 +5 收起 理由
★新手★ + 5 应助

查看全部评分

 楼主| 发表于 2008-3-18 13:24:57 | 显示全部楼层 来自: 中国广东韶关
能画个图吗???;) ;)
发表于 2008-3-18 13:25:36 | 显示全部楼层 来自: 中国江苏苏州
俯视图如下
Drawing2.jpg

评分

参与人数 1三维币 +3 收起 理由
★新手★ + 3 应助

查看全部评分

发表于 2008-3-18 16:14:36 | 显示全部楼层 来自: 中国福建泉州
这是什么东西啊: I& P+ S+ w- D$ D. s) q0 _% V
我想象不出来) A  N' c3 Y# o# n
能画个三维的图看下吗?
 楼主| 发表于 2008-3-18 17:30:48 | 显示全部楼层 来自: 中国广东韶关
谢谢啊,作业完成了,呵呵 :loveliness:
发表于 2008-3-18 18:29:28 | 显示全部楼层 来自: 中国浙江杭州
不好的习惯,最好把标注和粗实线分层!
发表于 2008-3-19 14:26:26 | 显示全部楼层 来自: 中国广东惠州

3D图纸

大家看看我用MDT画的图,对不对?

3D.rar

45.21 KB, 下载次数: 4

发表回复
您需要登录后才可以回帖 登录 | 注册

本版积分规则

Licensed Copyright © 2016-2020 http://www.3dportal.cn/ All Rights Reserved 京 ICP备13008828号

小黑屋|手机版|Archiver|三维网 ( 京ICP备2023026364号-1 )

快速回复 返回顶部 返回列表