QQ登录

只需一步,快速开始

登录 | 注册 | 找回密码

三维网

 找回密码
 注册

QQ登录

只需一步,快速开始

展开

通知     

查看: 3315|回复: 10
收起左侧

[求助] 请教槽钢的强度,焊接性能。

[复制链接]
发表于 2008-3-19 08:48:03 | 显示全部楼层 |阅读模式 来自: 中国上海

马上注册,结识高手,享用更多资源,轻松玩转三维网社区。

您需要 登录 才可以下载或查看,没有帐号?注册

x
因实际需要,机架本来使用5mm厚Stw22钢板折弯而成,现想改用6.3型号热轧槽钢。, W# O. o% m& i, G- g$ M+ N
请教,1.改了之后强度是否够用?
. w" U( C' ~& y% E, b           2.槽钢的焊接性能如何?因为要在槽钢上开孔,焊上焊接螺母?1 a) T  q: K. s3 S1 Y' a
           3.两个垂直放置的槽钢怎样定位?之前用钢板时,是通过在钢板端面上增加个小凸台,插到另一钢板的小孔中,进行定位的。# t" W# |1 `- y$ y
7 A+ l+ o: N1 V
谢谢。
3 [# S  o& W; Q1 Q/ z2 ?: G/ n0 i
& O9 O/ |; j+ u& A3 \  W% ][ 本帖最后由 taotaooo 于 2008-3-19 08:49 编辑 ]
 楼主| 发表于 2008-3-19 08:59:11 | 显示全部楼层 来自: 中国上海
顺便问下,6.3的槽钢现在好买么?还有6.5的呢?
发表于 2008-3-19 09:34:30 | 显示全部楼层 来自: 中国浙江绍兴
6.3的槽钢比较好买,市场上很多,它的底部厚度为4.8毫米,但没有听说有6.5的槽钢。; k7 k8 [  ~3 Y2 w9 K, N% F% t
1、6.3槽钢的强度比钢板要好;9 M7 {6 b" X( W( z: r; i0 O. |
2、6.3槽钢焊接性能应该不错,当然要根据材料来定;
$ M4 O. d; N1 R  g: Q3、两个垂直放置的槽钢怎样定位?因为没有图纸等参照,不太好说,但按照原先的定位方式应该也行。

评分

参与人数 1三维币 +2 收起 理由
1135026 + 2 技术讨论

查看全部评分

 楼主| 发表于 2008-3-19 09:45:36 | 显示全部楼层 来自: 中国上海
谢谢。6.5的我是在网上看到的,说是协议购买。
3 f& g5 W: L( X图纸如下:
3 W/ Q3 p5 o! y- x. V  d) }" t
a.JPG
 楼主| 发表于 2008-3-19 09:53:51 | 显示全部楼层 来自: 中国上海
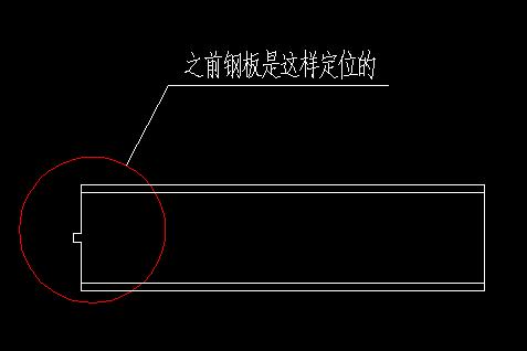
之前钢板是这样定位的,另一钢板有小孔。
; K  n' N& j/ y+ p% x1 x5 z; w b.JPG
 楼主| 发表于 2008-3-19 09:55:33 | 显示全部楼层 来自: 中国上海
忘了还有个问题,要在槽钢上开个孔,焊个焊接螺母,但槽钢内部不平,怎么办啊?
发表于 2008-3-19 11:12:53 | 显示全部楼层 来自: 中国浙江绍兴
1、螺母的焊接可以先用螺栓拧住螺母(螺栓穿过槽钢),然后点固焊,最后焊接。. A- f$ \8 v5 e
2、在槽钢的底部也可以焊接几个销作为固定用(可以开在槽钢的两边中心),原理和以前用的一样。

评分

参与人数 1三维币 +2 收起 理由
1135026 + 2 应助

查看全部评分

 楼主| 发表于 2008-3-19 13:22:39 | 显示全部楼层 来自: 中国上海
原帖由 xinfeng123 于 2008-3-19 11:12 发表 http://www.3dportal.cn/discuz/images/common/back.gif* o' Q4 v6 H: @2 n$ f( S
1、螺母的焊接可以先用螺栓拧住螺母(螺栓穿过槽钢),然后点固焊,最后焊接。
2 k. R3 e$ `% l, Z- e' ]% D2、在槽钢的底部也可以焊接几个销作为固定用(可以开在槽钢的两边中心),原理和以前用的一样。

. l/ K, w8 K# \  s% P- f
) z" \0 W2 d) k0 m' v, i) W谢谢,第二点了解了,但对于第一点,我想问的是,槽钢内部是有点斜的,这样焊接的螺母不也斜了么?我可不可以采用在槽钢上打螺纹孔的方式?(在型号6.3上,打M6的螺纹孔)。不知道强度是否够?
发表于 2008-3-19 15:46:17 | 显示全部楼层 来自: 中国浙江绍兴
我以为是一个比较大的螺孔,如果是M6螺纹的话,可以直接打在槽钢上,槽钢的壁厚约有7毫米,应该足够了。采用M6的螺母,它的厚度一般才6毫米。
发表于 2008-3-19 15:49:13 | 显示全部楼层 来自: 中国山西太原
槽钢内部是有点斜的,但可以用方斜垫圈 GB853-88来弥补,保证一个平面..! _( ~" X4 L& j: T7 M
在槽钢上打螺纹孔好象不太好,因为6.3槽钢厚度4.8mm,螺纹旋合长度太少了.
发表于 2008-3-19 16:49:33 | 显示全部楼层 来自: 中国四川雅安
直接在槽钢上钻攻M6的螺是比较好的方案,能保证连接强度。
发表回复
您需要登录后才可以回帖 登录 | 注册

本版积分规则


Licensed Copyright © 2016-2020 http://www.3dportal.cn/ All Rights Reserved 京 ICP备13008828号

小黑屋|手机版|Archiver|三维网 ( 京ICP备2023026364号-1 )

快速回复 返回顶部 返回列表