QQ登录

只需一步,快速开始

登录 | 注册 | 找回密码

三维网

 找回密码
 注册

QQ登录

只需一步,快速开始

展开

通知     

全站
5天前
查看: 9629|回复: 46
收起左侧

[讨论] 这个位置度应该怎么理解?

[复制链接]
发表于 2008-3-27 09:08:11 | 显示全部楼层 |阅读模式 来自: 中国辽宁沈阳

马上注册,结识高手,享用更多资源,轻松玩转三维网社区。

您需要 登录 才可以下载或查看,没有帐号?注册

x
这个位置度应该怎么理解?
+ b; X& ~7 q6 V: @9 D: ]$ J" |
7 a! p) D' ]* p8 }0 g) r7 f[ 本帖最后由 华氏911 于 2008-3-28 15:11 编辑 ]
1.jpg

评分

参与人数 1三维币 +10 收起 理由
userkypdy + 10 好题

查看全部评分

发表于 2008-3-27 09:16:05 | 显示全部楼层 来自: 中国天津
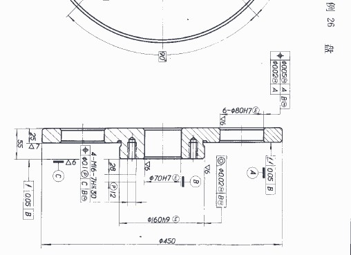
1、以A和B为基准,每一槽孔中心的位置偏移都在+/-0.0425平行平面确定的区域内
) e/ K4 ]6 ~/ O: k7 o/ N2、以A为基准,每一槽孔德中心位置偏移都在+/-0.0325平行平面确定的区域内

评分

参与人数 1三维币 +2 收起 理由
asdolmlm + 2 参与

查看全部评分

 楼主| 发表于 2008-3-27 09:19:56 | 显示全部楼层 来自: 中国辽宁沈阳
非常感谢,能帮我讲一下具体的公差值计算方法吗?
0 j1 i/ b" R$ U% k" x2 U# S我应该怎么检验?
发表于 2008-3-27 10:38:16 | 显示全部楼层 来自: 中国山东德州
先以基准A、B、C建立坐标系,看具体的位置关系选择使用直角或极坐标,一般采用直角坐标,测出被测点到基准的X、Y尺寸,采用公式2乘以SQRT(平方根)((x2-x1)平方+(y2-y1)平方)就行,x2是实际尺寸,x1是图纸设计尺寸,计算出的结果就是:实际位置相对于设计的理想位置的偏移量,因为位置度是一个偏移范围¢,所以要乘以2

评分

参与人数 1三维币 +5 收起 理由
userkypdy + 5 应助

查看全部评分

发表于 2008-3-27 11:00:47 | 显示全部楼层 来自: 中国山西太原
17个槽孔的位置度由A、B两个基准就可定位,即槽宽的中心线以A为基准,槽长中心线以B为基准。槽宽方向中心线的公差带是以理想中心线为对称轴距离为0.065两平行平面内区域;槽长方向中心线的公差带是以理想中心线为对称轴距离为0.085两平行平面内区域。: w3 D7 p  X& _& W
图中上面的位置度的标注应以B为基准,不应以A-B为基准,若要A与下面的就重复了,而且公差值不一样有矛盾。以A为基准就是检测槽宽中心线的位置度的,不应重复以不同的公差值来标注同一被测要素。

评分

参与人数 1三维币 +2 收起 理由
asdolmlm + 2 参与

查看全部评分

发表于 2008-3-27 11:25:06 | 显示全部楼层 来自: 中国江苏常州
回楼上的; J  `/ J& I. C  i4 d- [
这个位置度的标注有几点:
" M7 e; ?1 D0 w3 K2 s" i一:不大正确,槽宽6.1可以以A-B和A的符合位置度来确定,这个位置度的公差是两者的重合部分,就是A-B0.085和A0.065的重合部分;这个是正确的.
: o+ F8 l1 a$ n7 N4 M% @$ H二:但是槽长就不好确定了,这个槽由两个半圆的位置来控制,半圆的尺寸公差是确定的,形位公差由轴线来确定,轴线只有相对于A,B的位置度,8 l% x/ [, B& L6 J% ]" M
却没有相对于A,B的理论正确尺寸,也就是没有公差位置的基准.,也没有对底面的位置度要求,因此如果A,B是倾斜的,这个轴线是不垂直的.

评分

参与人数 1三维币 +2 收起 理由
asdolmlm + 2 参与

查看全部评分

发表于 2008-3-27 13:10:27 | 显示全部楼层 来自: 中国江苏南京
楼上的说的我听到有点不明白啊,槽长尺寸不是有了吗,48.1-48.15,我的理解就是槽的中心线相对与基准A和B的位置度是0.085,在水平方向上,中心线的位置度误差是以理想中心线对称的间隔0.085的区域,还有就是在垂直位置上一样,想起来估计就是一个正方形区域,边长为0.085,但是下边又有一个以A为基准的0.065的位置度误差,那就是以理想中心线对称的间隔0.065的区域,感觉有些重复。

评分

参与人数 1三维币 +6 收起 理由
userkypdy + 6 参与

查看全部评分

发表于 2008-3-27 15:15:04 | 显示全部楼层 来自: 中国江苏常州
发三张图片啊~~~~~~~~~~~~~~~~~~
001.jpg
002.jpg
003.jpg

评分

参与人数 1三维币 +5 收起 理由
userkypdy + 5 应助

查看全部评分

 楼主| 发表于 2008-3-27 20:03:51 | 显示全部楼层 来自: 中国辽宁沈阳
大家说得我又不知道了,这个标注真的有错误吗?
发表于 2008-3-27 20:32:28 | 显示全部楼层 来自: 中国江苏常州
我发了三张图片是教案的,
9 }) i( B+ i4 k/ r% ?只是想说明这个复合位置度的问题.
% C1 `4 L8 U$ }! Y6 v# {/ |一般是复合位置度下面的那个比上面的要小,
" k9 W, D. G0 k  s公差带是两者的重合部分.
& V" N) z: H, N----------------------+ c7 y6 G/ ^% j) k: K, Q/ |
就宽度来说,可以理解为公差带与A平行,与B垂直.
$ k8 ?9 y" Y  X$ A" T------------------------: c. A6 T. g; o7 D
就控制而言,你可以用尺寸公差来控制----如果精度能够满足的话,0 v) R! v5 F# T1 n$ K1 F9 @
也可以用位置度来控制,
0 P9 g5 }! {3 E& g但是你必须确定唯一的理论正确尺寸
- }5 i4 i! f7 ^! f* o( {9 j" ^而且这个尺寸一基准是关联的+ e( \. C7 Y  o/ o0 E) s4 N- s5 N
从你的图来看是对于中心线的,但那又不是基准.7 _5 a2 G; l  \" a1 @$ X
-----------------
/ A* b3 d+ p2 `( N9 W一家之盐

评分

参与人数 1三维币 +10 收起 理由
userkypdy + 10 应助

查看全部评分

 楼主| 发表于 2008-3-27 22:18:29 | 显示全部楼层 来自: 中国辽宁沈阳
上学时没学好,为什么不明白呢?
发表于 2008-3-28 07:47:25 | 显示全部楼层 来自: 中国河北唐山
看了大家的发言,很有收获
发表于 2008-3-28 08:38:55 | 显示全部楼层 来自: 中国浙江宁波
这个位置度的标识我也有点纳闷,我个人理解只需要0.085A、B就可以,他主要是表示槽孔的位置与A、B两边的关系,不需要再0.065A了。这样用有点矛盾的,同样的问题我遇到过,后来我提出以后,美国的客户采纳我的说法,这只是给大家一个参考吧了

评分

参与人数 1三维币 +7 收起 理由
userkypdy + 7 积极参与

查看全部评分

发表于 2008-3-28 09:57:27 | 显示全部楼层 来自: 中国山西太原
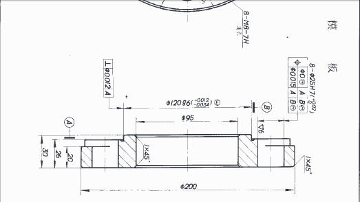
这个主题有深入讨论的必要,10楼提供的三张图纸与楼主提供图有本质的区别,10楼的三张图的被测要素与基准要素均属于三座标x-y-z体系,以第三张图为例,被测6-φ80的轴线是z方向的,对于基准A、B的公差带分另为φ0.05和φ0.02的圆柱面范围内,属于x、y方向,这三张图的标注方法均是正确的。
9 Z6 H0 a% b4 y一楼的图就不同了,这属于薄片零件,在厚度方向上没有什么要求。长槽孔的位置度由宽和长的中心线就可定位。宽度中心线以A为基准时,其位置度的公差带是对称于宽度理想中心线的两平行平面间的区域,只要宽度中心线与在这个区域内就合格,长度中心线对于B基准也是同样。这样就可以定位,一楼图中标注的上面的基准A就是多余的了。还可这样简单理解一下,宽度中心线与基准A平行了且距合乎要求,还有必要去要求它与B基准垂直吗!?两个基准都标只能会与下面的公差值发生矛盾,这里不存在公差带重合。2 {7 g+ H" |8 I$ N* @2 T
13楼的思路也是正确的。4 q5 `! s; v* C) x5 j8 ~8 Q
" `- l" r2 w7 J. U4 @) n" Z' C
[ 本帖最后由 gaoyns 于 2008-3-28 09:59 编辑 ]

评分

参与人数 1三维币 +5 收起 理由
zyxwq + 5 积极参与

查看全部评分

发表于 2008-3-28 11:15:35 | 显示全部楼层 来自: 中国山西太原
楼上说的有道理,10楼列出的例图与一楼的是不同的.
发表于 2008-3-28 11:30:19 | 显示全部楼层 来自: 中国福建泉州
个人认为一楼的位置度标注有其道理。4 A% U& q0 S. g/ h) q4 h6 T% p( ^
1.第一个标注是以A及B两个共同基准,其公差带会相对较宽;; @& k3 b+ R& l6 K. _2 ^
2.第二个标注是只以A为基准,其公差带会相对较严。

评分

参与人数 1三维币 +3 收起 理由
zyxwq + 3 积极参与

查看全部评分

发表于 2008-3-28 12:33:31 | 显示全部楼层 来自: 中国上海

回复 16# 的帖子

同意楼上的观点,  [1 s& F% \: p5 I; }( O9 {
后面是比前前面更严格的约束,比方说可以先标轮廓度,再标平面度,再标平行度,但后面一定要比前面的严格。

评分

参与人数 1三维币 +5 收起 理由
userkypdy + 5 技术讨论

查看全部评分

发表于 2008-3-28 14:23:22 | 显示全部楼层 来自: 中国山西太原

回复 16# 、17#的帖子

按一楼的图的标注,上面的公差在以A为基准测量槽宽的位置度,若位置度偏差为0.08时,按上面给的公差合格,但按下面给的位置度公差就得判定不合格,按哪个执行?还是得按下面的执行。那么上面那个A基准不就成了多余的吗!?这个A基准都是约束位置度的,不存在进一步约束。像17楼说的不同的形位公差间可以进一步约束,同一形位公差又是同一基准就不需要进一步约束,若这样必定有一个是多余的。

评分

参与人数 1三维币 +5 收起 理由
华氏911 + 5 技术讨论

查看全部评分

发表于 2008-3-28 19:39:11 | 显示全部楼层 来自: 中国北京
我个人认为那个槽的位置度要在两个位置度的重叠部分,因为要满足两个要求的位置度关系,一个是联控,一个是第一控制,槽要满足但以控制的同时满足联控,单一控制的位置度比联控的位置度要求要高,才能满足联控的位置度公差,个人愚见,请勿见笑

评分

参与人数 1三维币 +3 收起 理由
zyxwq + 3 积极讨论

查看全部评分

发表于 2008-3-28 20:53:39 | 显示全部楼层 来自: 中国湖南长沙
會不會是這樣 前一個位置度是48.1的中心線 后一個位置度是6.1的中心線
2 _2 y' t+ l2 s) K4 U$ Q" y8 p; i# a% g
淺見大家不要見笑

评分

参与人数 1三维币 +7 收起 理由
userkypdy + 7 积极参与

查看全部评分

发表于 2008-3-28 20:55:16 | 显示全部楼层 来自: 中国江苏无锡
我认为应该这样理解;
4 F1 s7 k* ~: Q% Q4 R' i7 n3 y" D! a+ t% T1 m  [5 h- I' n
1.我认为下面的一个标注;长度方向应该以A为基准,每个槽的对称中心应该落在以理论尺寸为中心中心,以0.65为大小的区域.
! e+ i. I5 Z5 r% X2.在上一个标注; 可以理解为以A为第一基准,以B面为第二基准,(应该理解)为圆弧的中心应该落在一理论尺寸为中心位置范围为0.85的一个要求.

评分

参与人数 1三维币 +3 收起 理由
zyxwq + 3 积极讨论

查看全部评分

 楼主| 发表于 2008-3-29 16:36:59 | 显示全部楼层 来自: 中国辽宁沈阳
大家很热情,这个网站很好,非常感谢大家,谁能给我一个非常明确的结论。
发表于 2008-3-29 21:15:16 | 显示全部楼层 来自: 中国山西太原

回复 22# 的帖子

这个问题的要点就是用二维或用三维解决槽孔位置度的问题,在5楼和14楼我已阐明,这是个薄片零件,在厚度上没有什么要求,是个二维问题 ,只需用x、y方向(即用A、B基准)分别定位就行了,解决的方法是:1 e' L- R4 o# T% [. |
1  一楼图中标注的位置度公差,上面一行中的A基准去掉,避免与下面重复。这重复会带来检测结果的矛盾。
9 E* w2 r% X' S7 P2  仅要上面的一行,下面的取消(13楼的意见),这样也不会重复。但这样有缺点,以A为基准的位置度公差放宽了,不如采用1中的方法。
9 ^7 N* ?- g+ k. b2 C4 {7 J- o0 ^& k这个问题之所以复杂化,我认为是那三张例图,那是三维的位置度标注,那个被测要素在一楼的图中是没有的,与楼主的图有本质区别。
4 Y4 P' v9 n' Y0 N+ ?- E以上的叙述不知楼主明白没有。! z$ P  {: I1 U& }
1 T- N7 e. A* K) s; ?
[ 本帖最后由 gaoyns 于 2008-3-30 08:38 编辑 ]

评分

参与人数 1三维币 +7 收起 理由
userkypdy + 7 积极交流

查看全部评分

发表于 2008-3-30 09:13:30 | 显示全部楼层 来自: 中国北京
这个问题有点复杂化了,其实应该先了解设计意图+ F5 P# B. P8 x. r3 }# \
从标注来看,应该没有问题,也不能取消下面的0.065 A 标注" t0 `" b; z+ ~% X* o% r% T* _
对于设计人员的想法,应该是这样的$ F! @! i# E' C+ D8 i' t" ]
1.jpg 2 Z, x4 U, }7 U$ G5 Q
首先应保证尺寸6.1相对基准A在0.065范围内,这是前提9 K9 q& X+ g5 h# G( `4 R
然后,再谈% Q8 L; [. N6 t9 e% Y
2.jpg ) b) y. m9 L& y8 e8 Y
满足0.065的条件后,两个方向的位置度再应该保持在对角线长度为0.085的范围内8 }- h$ J  P9 |. o$ w* F: q# c$ M# N
图示为举例说明,+ m* w9 x8 c' {9 f
当相对基准A测试为0.065时,相对基准B只能在0.055范围内2 n! \: W: F1 F0 {
当相对基准A测试为0.030时,相对基准B只能在0.080范围内& Z$ O. r+ m! H  t; ]# W# Z
如果相对基准A测试刚好为0.000,则相对基准B可以在0.085范围内
) [: |' ~3 Y8 [+ Z9 s; E
. E: B2 G1 P9 T' }以上为本人愚解,望指正

评分

参与人数 1三维币 +9 收起 理由
userkypdy + 9 积极交流

查看全部评分

发表于 2008-3-30 21:53:39 | 显示全部楼层 来自: 中国江苏无锡
22楼的理解有些片面,标注没有问题,
% N! t7 H8 K! Z" y- K2 ^9 Q* Y23楼的公差理解不对,如果没有0.065/A,你的说法是否就矛盾,没有这样分析的,可以查查相关机械标准,我经常接触这样的标注,
  r3 l; z6 J; ]. Q( m3 |1 M版主也应该正确引导.
$ z2 e; D. y5 |4 j) d' l3 ?# t( w! @7 @0 \# W
[ 本帖最后由 lsytym 于 2008-3-30 23:01 编辑 ]

评分

参与人数 1三维币 +10 收起 理由
userkypdy + 10 谢谢提醒,同时希望老大能具体讲解一些,谢

查看全部评分

发表回复
您需要登录后才可以回帖 登录 | 注册

本版积分规则

Licensed Copyright © 2016-2020 http://www.3dportal.cn/ All Rights Reserved 京 ICP备13008828号

小黑屋|手机版|Archiver|三维网 ( 京ICP备2023026364号-1 )

快速回复 返回顶部 返回列表