QQ登录

只需一步,快速开始

登录 | 注册 | 找回密码

三维网

 找回密码
 注册

QQ登录

只需一步,快速开始

展开

通知     

查看: 6092|回复: 7
收起左侧

[已解决] 轴用挡圈的轴到底怎么标注公差才不致引起轴承逛?

 关闭 [复制链接]
发表于 2008-4-9 20:53:22 | 显示全部楼层 |阅读模式 来自: 中国辽宁沈阳

马上注册,结识高手,享用更多资源,轻松玩转三维网社区。

您需要 登录 才可以下载或查看,没有帐号?注册

x
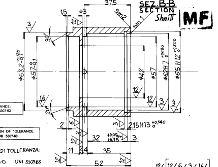
如图所示 如图所示的名义尺寸标注公差是标上公差还是直接按照自由尺寸加工才不指引起安装轴承之后逛!$ I0 p; }$ {5 g, ?0 l
4 W  `! P8 B+ P+ n& U) ?; ^$ o/ g: D
[ 本帖最后由 asdolmlm 于 2008-12-1 22:43 编辑 ]
QQ截图未命名.jpg
发表于 2008-4-10 20:08:13 | 显示全部楼层 来自: 中国上海
仅供参考,希望对你有用。
20080319.JPG
200803191.JPG
200803192.JPG

评分

参与人数 1三维币 +2 收起 理由
asdolmlm + 2 参与

查看全部评分

发表于 2008-4-10 20:45:45 | 显示全部楼层 来自: 中国江苏常州
上面的图纸的设计原则与我们的差不多/ z( p% `. A, F& J# H1 l$ Q* w
就是你的轴承的外(内)圈的外面必须保证在沟槽里面,
( m4 _# q  ~) R+ {; F卡簧槽的公差大,卡簧能进去。; l3 L/ Z4 k7 b9 o: C3 w
----------------------------------------------------9 H7 f8 R' g2 f: S9 W/ }
一般的车工师傅做这个总是车好一个槽后,过去车个沟,量一下,然后再车到位。
0 u6 U; J& ~- b8 ]# e----------------
! G0 {) l" i& i/ a! K! |$ q这个不能是自由公差

评分

参与人数 1三维币 +2 收起 理由
asdolmlm + 2 参与

查看全部评分

发表于 2008-4-10 20:46:20 | 显示全部楼层 来自: 中国山西太原
根据轴径大小不同,为便于装配和定位轴承,在长度上一般留0.05--0.20mm的间隙。挡圈槽在机械设计手册上有规定标准。具体尺寸见下图:
轴用挡圈槽尺寸.jpg

评分

参与人数 1三维币 +2 收起 理由
asdolmlm + 2 参与

查看全部评分

发表于 2008-4-11 15:35:52 | 显示全部楼层 来自: 中国天津

关于轴用挡圈选用

基本上轴用挡圈选用是根据轴径尺寸选取,所在宽度根据手册选定.
发表于 2008-11-19 10:01:53 | 显示全部楼层 来自: 中国江西宜春

不致引起轴承逛的方法:

1,用轴承挡圈安装在轴承二边在机械设计中应尽量避免;
  z1 D% y5 H5 {8 f2 u) B2 H1 f6 M2,应把轴设计成阶梯状,轴承一端利用轴阶固定,另一端用带内螺丝的螺母固定;& j9 w9 z8 _' d4 t) h
3,二边用轴承挡圈固定,应该在轴的其它部位有支撑或固定的情况下使用。
发表于 2008-11-19 11:50:28 | 显示全部楼层 来自: 中国北京
一般来讲:
' @) i7 Z. Z# ?0 ^5 J; D1、很少有轴承两边都用挡圈定位的。至少我在审图时是不允许设计员这样设计的!/ j0 e5 @$ }6 l3 }$ M( S, C1 m
2、挡圈定位本身就不是精确定位的方法,不能希望轴承可以很精确的定位。因此如果是高速、高负荷轴承必须用其他定位方法。6 ~, H& v% w  `+ a: D: ~
3、至于尺寸请参考相关标准GB/T894.1~GB/T894.2
发表于 2008-11-19 12:56:18 | 显示全部楼层 来自: 中国北京
感觉4楼的标发不太好。 还是二楼的较好。
发表回复
您需要登录后才可以回帖 登录 | 注册

本版积分规则


Licensed Copyright © 2016-2020 http://www.3dportal.cn/ All Rights Reserved 京 ICP备13008828号

小黑屋|手机版|Archiver|三维网 ( 京ICP备2023026364号-1 )

快速回复 返回顶部 返回列表