QQ登录

只需一步,快速开始

登录 | 注册 | 找回密码

三维网

 找回密码
 注册

QQ登录

只需一步,快速开始

展开

通知     

全站
5天前
查看: 5108|回复: 27
收起左侧

[已答复] 尺寸检测

[复制链接]
发表于 2008-4-12 21:29:23 | 显示全部楼层 |阅读模式 来自: 中国广东东莞

马上注册,结识高手,享用更多资源,轻松玩转三维网社区。

您需要 登录 才可以下载或查看,没有帐号?注册

x
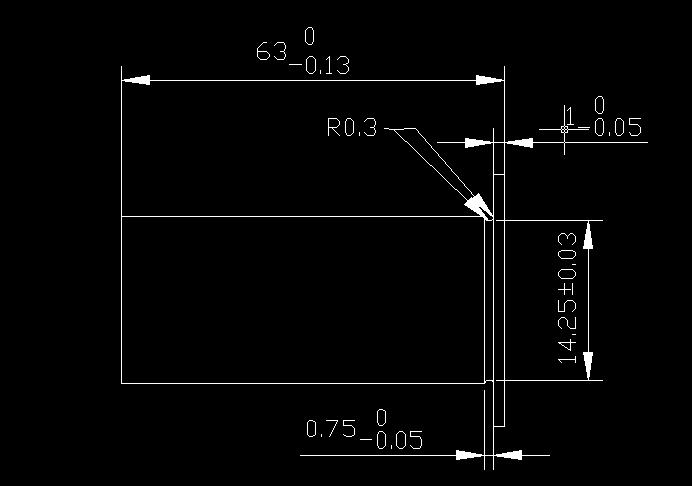
附件中5个尺寸每天2万件需全检出货,请问哪位有没好的检测方法?谢谢!
1.JPG
发表于 2008-4-12 22:07:05 | 显示全部楼层 来自: 中国辽宁沈阳
好象没有什么好的方法,不过对于这种大批量的,可以考虑作些针对某个尺寸的专业量具,这样可以节约些时间.

评分

参与人数 1三维币 +5 收起 理由
userkypdy + 5 应助

查看全部评分

发表于 2008-4-13 08:12:04 | 显示全部楼层 来自: 中国广东东莞
1、可以用卡规进行检测2、可以用投影仪检测/ W6 }* O, m& @
卡规可以做成直通规,投影则一目了然。

评分

参与人数 1三维币 +5 收起 理由
userkypdy + 5 应助

查看全部评分

发表于 2008-4-13 08:39:24 | 显示全部楼层 来自: 中国江苏南京
尺寸可以通过制作卡规检验,对于圆弧,一般是通过投影对比检验,一天2万件很难

评分

参与人数 1三维币 +5 收起 理由
userkypdy + 5 应助

查看全部评分

发表于 2008-4-13 09:28:38 | 显示全部楼层 来自: 中国上海
是用什么加工手段?1天20000件居然也需要全检?看来要上自动测量设备了哦

评分

参与人数 1三维币 +4 收起 理由
userkypdy + 4 积极参与

查看全部评分

发表于 2008-4-13 11:32:28 | 显示全部楼层 来自: 中国江苏南京
长度和直径用长度卡规,直径卡规可以和R规做在一起,这样应该能快一点。

评分

参与人数 1三维币 +5 收起 理由
userkypdy + 5 应助

查看全部评分

发表于 2008-4-13 12:05:07 | 显示全部楼层 来自: 中国上海
为什么要全检?如果是自动机床加工这个零件,那每台机床大概要配一套自动检测系统或者几名检验员了。7 L4 c9 _7 _' w( w. G( F
' ]' z2 C- R( [& k& `; E5 U
还是考虑合适的检验制度和方案,进行抽检吧。

评分

参与人数 1三维币 +5 收起 理由
userkypdy + 5 积极参与

查看全部评分

发表于 2008-4-13 12:18:57 | 显示全部楼层 来自: 中国广东肇庆

回复 1# 的帖子

1.做个检具,一次性全检,分出所有不合格的,
: [) }7 n4 i5 A. V; x; w' l& @2.做个检具专门检查纵向尺寸
+ q4 b2 \  s7 I8 L, C1 o3.做个检具专门检查横向尺寸; v) `8 h$ q) G) G7 W# q8 U# C. G

' b! f. [* o  g- T& F" H1 _9 H乱说的,您给点意见!

评分

参与人数 1三维币 +5 收起 理由
userkypdy + 5 积极参与

查看全部评分

发表于 2008-4-13 20:02:18 | 显示全部楼层 来自: 中国上海
楼主请外面专门做检具的公司进行设计一个检具不就行了吗?检具不贵的。

评分

参与人数 1三维币 +4 收起 理由
userkypdy + 4 积极参与

查看全部评分

 楼主| 发表于 2008-4-13 20:08:09 | 显示全部楼层 来自: 中国广东东莞
0.05的公差做检具能保证检测结果吗?我认为很难.客户要求不接受不良品,所以所有尺寸都的全检.不知道大家还有没有什么好的检测方法?不知道有没有什么自动检测设备?
发表于 2008-4-13 20:51:31 | 显示全部楼层 来自: 中国湖北武汉
用线切割按截面上、下差尺寸各割一通孔,(板厚应大于20mm)

评分

参与人数 1三维币 +6 收起 理由
userkypdy + 6 应助

查看全部评分

发表于 2008-4-13 21:41:27 | 显示全部楼层 来自: 中国福建泉州
1.长度63与厚度1mm的尺寸可以用卡规检验;
9 h/ J8 @7 r# \" ?: P2.R0.3用自制的半径卡板检验;! D, Y( J3 z2 s, `8 g
3.槽底尺寸14.25+/-0.03用厚度小于0.7的通止卡板检验;
" v# }4 D; a9 j6 u/ K4.至于槽宽0.75的尺寸公差较小,专用检具不好加工,只能用卡尺测量了。9 D) M" n. r+ ]* ~: Q3 w
有个问题想问下楼主:该产品是何种配件,那个槽起什么作用呢?连退刀槽的尺寸精度都要求这么高。

评分

参与人数 1三维币 +7 收起 理由
userkypdy + 7 应助

查看全部评分

发表于 2008-4-13 23:28:10 | 显示全部楼层 来自: 中国北京
做个专用检具应该可以保证其中的四个尺寸,除了那个R。

评分

参与人数 1三维币 +5 收起 理由
userkypdy + 5 积极参与

查看全部评分

发表于 2008-4-13 23:46:47 | 显示全部楼层 来自: 中国广东深圳
可以使用限制制具进行管制,加上振荡机就可以,如果我没看错的话,这个是锅钉(铆钉),我有做过这种检测,那个槽的位置尺寸虽然公差小,但不是重要尺寸的
9 T- G; k! K: j. Z4 a7 P用在机箱上比较多

评分

参与人数 1三维币 +7 收起 理由
userkypdy + 7 应助

查看全部评分

发表于 2008-4-14 00:02:39 | 显示全部楼层 来自: 中国广东深圳
原帖由 bossardjiangyi 于 2008-4-13 23:46 发表 http://www.3dportal.cn/discuz/images/common/back.gif
# o1 @7 j0 N. ~& o, l$ ]# f可以使用限制制具进行管制,加上振荡机就可以,如果我没看错的话,这个是锅钉(铆钉),我有做过这种检测,那个槽的位置尺寸虽然公差小,但不是重要尺寸的4 Z# `% M1 f' K
用在机箱上比较多
) A( G8 u# g' j0 V* A$ P

; ^5 R( c& T& F1 Y  }1 v我今天在网吧上的,明天出差,后天我在公司有时间搞个草图,这个检测是在我以前那个公司做的。楼主可以电话联系我
发表于 2008-4-14 00:05:47 | 显示全部楼层 来自: 中国广东深圳
原帖由 hbh0606 于 2008-4-13 21:41 发表 http://www.3dportal.cn/discuz/images/common/back.gif
. X7 p1 m7 F4 H8 a0 l) q2 A7 J1.长度63与厚度1mm的尺寸可以用卡规检验;: W9 j" s! T5 ]0 U
2.R0.3用自制的半径卡板检验;. V/ t5 G* f! x/ r8 q- a% c1 `
3.槽底尺寸14.25+/-0.03用厚度小于0.7的通止卡板检验;
2 L/ Y, p$ ]/ b8 B$ f: l. _9 P4.至于槽宽0.75的尺寸公差较小,专用检具不好加工,只能用卡尺测量了。$ i' G1 `: C& p& U
有个问题 ...

, x2 r; }3 x: }' {" `
/ ?, x7 U& b1 Y! ^/ W' w兄弟,这个就是STAND OFF产品(PEM有这种),那个槽是铆接时挤料用的。全检成本也太高了(数量太多),用机器检测也不便宜的
发表于 2008-4-14 02:17:56 | 显示全部楼层 来自: 中国
每个尺寸有“通、止”,然后组合一起,用线切割做成一个“通、止”板,方便的检验。
  m4 E: v3 M' b$ k或者采取流水线检测。

评分

参与人数 1三维币 +6 收起 理由
plc + 6 应助

查看全部评分

发表于 2008-4-14 03:18:56 | 显示全部楼层 来自: 加拿大
加拿大的工厂,这样的东西就是抽检,每一个班次的抽检一部分
 楼主| 发表于 2008-4-14 08:45:02 | 显示全部楼层 来自: 中国广东东莞
原帖由 bossardjiangyi 于 2008-4-14 00:02 发表 http://www.3dportal.cn/discuz/images/common/back.gif
4 e( M* p$ O1 t3 A. q" k0 X+ X3 z  U, C7 ]1 h( x8 H

8 R/ j* W6 d: i+ n# `8 q0 q3 l我今天在网吧上的,明天出差,后天我在公司有时间搞个草图,这个检测是在我以前那个公司做的。楼主可以电话联系我
; N9 e; p9 b2 ~3 R+ b
- P/ o& u9 [7 n2 ^6 A2 p$ r
可我不知道你电话啊 ,你可没告诉我哦 .
发表于 2008-4-14 08:56:08 | 显示全部楼层 来自: 中国广东深圳
已经短信告诉你,有需要电话联络沟通吧3 E3 a% h7 ]: T- r& y
出差前来打下工(花掉1块RMB)
发表于 2008-4-27 17:04:45 | 显示全部楼层 来自: 中国浙江宁波
R及其槽径可以用线切割割一个模具检测,一通一止,以R槽径为标准,割一个口字形的模具,不过要在口字的一边开一口,开口的两边为R的尺寸及其槽径,这样可以检测两个尺寸。其他的可以用上面提得方法做模具就可以了

评分

参与人数 1三维币 +5 收起 理由
plc + 5 应助

查看全部评分

发表于 2008-4-28 20:01:29 | 显示全部楼层 来自: 中国上海
晕,你们方向错了,首先应该是在机床以及工艺上保证,并使老外能够相信你的控制手段,需要做的工作重点应该是做工序能力计算,大于1.67的应该做SPC控制,工序能力不够的就要分析并改进,最后才是使用全检的手段来控制!因为不管怎么样人工控制是最不可靠的一种控制手段。要达到这个目的可能在换刀周期等方面有严格的控制。" a9 ]8 }" T. \( s* P( x- |
( x! k- p* |4 o- L; w
特别象R0.3和0.75这两个尺寸,完全是靠成型刀来控制的,全检几乎不可能(需要投影放大才行)。7 v. C) ]# H6 S3 @8 i" B7 p' _( ~' E

8 E; k7 W, I+ W2 \) L) X1 U另外一点,分清哪些是重要尺寸也很关键!
# Q! H# p+ N) s* }/ w9 A. M& K& P6 ?; b8 L
[ 本帖最后由 didididi 于 2008-4-28 20:10 编辑 ]

评分

参与人数 1三维币 +5 收起 理由
plc + 5 应助

查看全部评分

发表于 2008-4-29 21:46:06 | 显示全部楼层 来自: 中国广东广州
这么大的检验量很难处理3 d$ \: |* g* A  G4 W2 M8 |

4 s! \! H( Z4 w3 D- |  ~建议使用影像识别的自动检测线吧,精度没这么高,怕是也很难处理 0.75这个尺寸要去太严了些,每个检验员怕是都要配一个显微镜了,做个作用的夹具,在万工显上检测3 E& I( ^$ I" Q  w

8 X) {( y* R8 X1 x这么大的检测量还是在专用的检测线上进行吧
2 T) d7 x: }- O$ j+ h# C2 R8 E; s7 T; W$ o* S1 X( {7 {' _* \. T
用快速影像检测,需要找专业做光学检测的公司订购
* [6 a& ~* F7 i" h
# S; T( ]' Y& {- t, u" l还可以使用气动量仪,也需要找专门的公司订购

评分

参与人数 1三维币 +5 收起 理由
plc + 5 应助

查看全部评分

发表于 2008-4-30 15:45:28 | 显示全部楼层 来自: 中国江苏镇江
长度和直径用长度卡规,直径卡规可以和R规做在一起,这样应该能快一点
发表于 2008-4-30 16:33:25 | 显示全部楼层 来自: 中国湖北襄阳
方法还是有的,可以用HOMMEL的光学检测设备,速度非常快,首先要建立模块,后每次只要扫描一次即可自动判断,几秒钟即可,而且精度也很高,完全可以满足要求.但是要完成每天2万件的检测,恐怕要配置好几台,每台价格在100多万,不知你是否有那么多利润.! x9 F9 g) H" F
还有是可以国内的技术,同样是采用光学方法,可以到网上查询,
发表回复
您需要登录后才可以回帖 登录 | 注册

本版积分规则

Licensed Copyright © 2016-2020 http://www.3dportal.cn/ All Rights Reserved 京 ICP备13008828号

小黑屋|手机版|Archiver|三维网 ( 京ICP备2023026364号-1 )

快速回复 返回顶部 返回列表