QQ登录

只需一步,快速开始

登录 | 注册 | 找回密码

三维网

 找回密码
 注册

QQ登录

只需一步,快速开始

展开

通知     

查看: 6834|回复: 45
收起左侧

[讨论] 这种尺寸标注对吗?允许吗?

[复制链接]
发表于 2008-4-18 18:01:52 | 显示全部楼层 |阅读模式 来自: 中国北京

马上注册,结识高手,享用更多资源,轻松玩转三维网社区。

您需要 登录 才可以下载或查看,没有帐号?注册

x
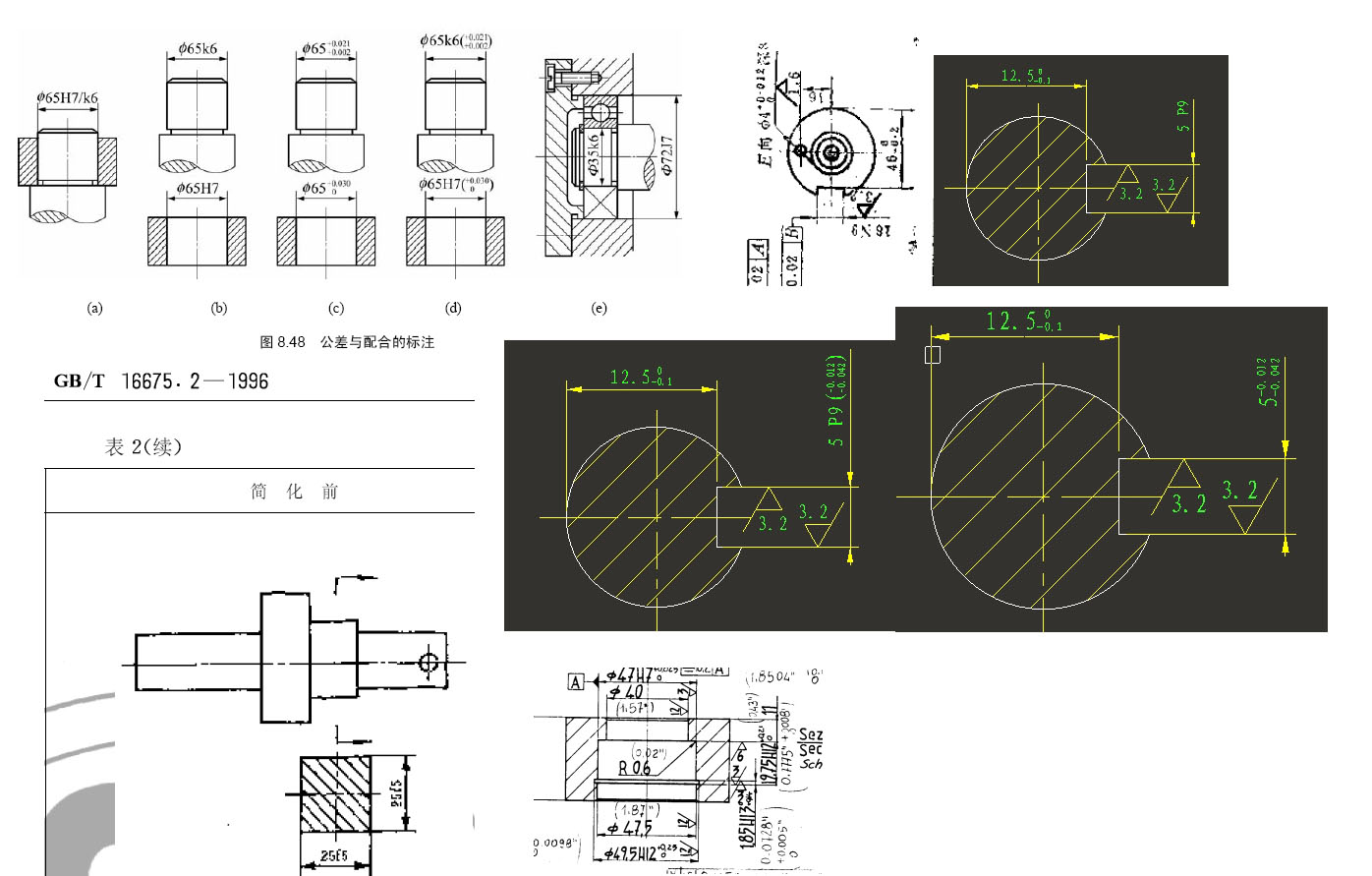
有时会看到一些老师傅的图纸上长度尺寸标注H或h符号,感觉有点别扭
! @5 k" Q6 i% z1 f但是也没有根据说不允许- i" L# o* p0 l( Y* {) {
下面这种标注可以吗?* G5 d. O% h2 W+ J6 P2 _) o, O
1.jpg
发表于 2008-4-18 19:14:50 | 显示全部楼层 来自: 中国福建泉州
大写H是基孔制,小写h为基轴制。
; A" h5 k  H: ^7 s" _8 F& d上面的标注孔10p13有误,正常来说应该标注成孔10P13。
5 {. L  E- U! B1 S, y% s而12H9应该改为12h9.

评分

参与人数 1三维币 +5 收起 理由
plc + 5 应助,分析正确

查看全部评分

发表于 2008-4-18 19:45:01 | 显示全部楼层 来自: 中国安徽芜湖
这个零件和别的零件有配合关系。不能简单的说“上面的标注孔10p13有误,正常来说应该标注成孔10P13。而12H9应该改为12h9"。因为你不知道是基孔制还是基轴制。
发表于 2008-4-18 20:05:31 | 显示全部楼层 来自: 中国江苏常州
既然是零件图纸0 _, i& z9 s  B9 g7 C8 O3 n
必须把公差的值标注出来0 i* k) ~: n2 {- `2 J0 G; ?( m) f
不能那样的
发表于 2008-4-18 20:22:10 | 显示全部楼层 来自: 中国江苏镇江
这么小的零件要求这么高,为什么没有粗糙度。" t4 k1 D4 E$ m7 I# o& B
沉孔下面怎么是螺纹孔,想不通。
发表于 2008-4-18 21:14:50 | 显示全部楼层 来自: 中国浙江宁波
呵呵, 我是第一次看到这样的图纸,出现一个12h9就要查标准了,还全部是这样的,不知道是设计者在卖弄还是不懂,我看到这样的图纸我
发表于 2008-4-19 09:18:50 | 显示全部楼层 来自: 中国浙江杭州
很多老师傅的图纸就是这样的,他们一般只标字母大小写来表示基孔制还是基轴制,后边的阿拉伯数字代表大概控制的精度
发表于 2008-4-19 09:44:14 | 显示全部楼层 来自: 中国江苏泰州
沉孔深度,螺纹孔直径都没标住哦
发表于 2008-4-19 09:49:29 | 显示全部楼层 来自: 中国山西太原
这个图标注得很不规范,除了20h11标对了外,其余四处全是错的,φ10p13应将小写字母改为大写字母,12H9将大写字母改小写字母。11.5F12和8H9既不是孔也不是轴,只标公差不标代号。
+ N7 j3 R) E, U公差配合标准规定了配合分基孔制和基轴制,轴是工件的圆柱形外表面,也包括非圆柱形外表面。孔是工件的圆柱形内表面,也包括非圆柱形内表面。图中尺寸除φ10P13为孔,11.5和8只标公差不标代号,其余二项都可按轴标注。
. _+ T0 ^) e/ Q- U! D5 Z4 E( F! Z& G/ e% K
[ 本帖最后由 gaoyns 于 2008-4-19 10:42 编辑 ]

评分

参与人数 1三维币 +3 收起 理由
plc + 3 应助,大家可继续讨论

查看全部评分

发表于 2008-4-19 10:12:46 | 显示全部楼层 来自: 中国山东威海
同意三楼的观点,但是公差等级选择的太分散
发表于 2008-4-19 10:26:00 | 显示全部楼层 来自: 中国河南焦作

回复 3# 的帖子

国标规定:孔的基本偏差用大写字母,轴的基本偏差用小写字母,与采用何种基准制无关
发表于 2008-4-19 11:13:51 | 显示全部楼层 来自: 中国山东潍坊
基孔和基轴得公差范围不是给定得么。
发表于 2008-4-19 14:47:43 | 显示全部楼层 来自: 中国上海
当采用公差代号标注时,常用于批量生产。
) b( d0 N# q1 J+ A) c: j0 l, A当采用极限偏差标注时,用于小批量生产或试制。' g% b7 D: p2 G* Z
当采用公差代号和相应的极限尺寸时,常用于单件生产。
& ]2 z. w* ~) J$ c, L5 u; R我常见于图样上标注有:7 c9 b% R5 |! A: \
对键槽三种标方式都见过。% ~+ w7 y: S6 _( B" Z* v# G& [
中心距一般用js
% L- x# w$ n/ F/ V7 K孔用挡圈长度一般用大写,比H13
, _; R* m8 k/ O, U+ e7 o对线性尺寸用小写,如方形的25f5。如11.5F12和8H9,应改为小写。( S) X! ?+ T4 k1 v* ?
为什么会出现楼主图片上的标注,我想设计者的意图在于其后面的极限偏差值。
20080419.JPG
发表于 2008-4-19 14:55:17 | 显示全部楼层 来自: 中国上海
同意9楼和11楼的看法。
% I& i% i& S: b  K' ~- I  }6 h7 N1 \
& V) l: C; s! ]9楼总的意思是这张图纸里“轴”、“孔”的概念是混乱的。如果是老师傅画的图纸,那是太不应该了。
  N0 F& Y2 d8 t( E; B' q% D; M% n: @3 z* ?  Q1 n. c7 O3 v  ]
轴:通常,指工件的圆柱形外表面,也包括非圆柱形外表面(由二平行平面或切面形成的被包容面)。换一种说法,继续去除材料后尺寸会变小的,就是轴,基本偏差代号就应该是小写字母。
4 p' A5 h- d8 A4 l孔:通常,指工件的圆柱形内表面,也包括非圆柱形内表面(由二平行平面或切面形成的包容面)。换一种说法,继续去除材料后尺寸会变大的,就是孔,基本偏差代号就应该是大写字母。  e& w/ ^* B1 I# A
另外还有非孔非轴的尺寸。6 s; Q8 h# P8 g0 t8 \( P: u) Y

+ a1 o! s/ n( I5 ], Z; a$ ^( n2 n公差等级选择上也还是应该再考虑一下,IT13级的公差可以不用标的。/ S" G$ p; `4 h5 w9 p& ^) L

7 z" B: W1 E, e  b: R9 R. U另外,就一个零件来说,不存在基轴制、基孔制的问题,何况基轴制、基孔制的选择和尺寸、公差的标注没有什么关系。8 u1 R. e) c4 A/ G0 B: _( [
最通俗的说法,选用基孔制,就是在一个公司里的基本上所有零件的孔的基本偏差是H;选用其他时必须考虑一下加工方法和检测方法。+ B; c# m7 A! Y2 X( F
' N1 a" n: i- Z7 o
[ 本帖最后由 lhf999 于 2008-4-19 15:01 编辑 ]
发表于 2008-4-19 15:32:17 | 显示全部楼层 来自: 中国上海
lhf999对轴孔的定义很有意思。1 i4 p- ^" U* Y7 W/ G
这也可能是我常见的孔挡尺寸用大写字母的的一种解释了。
, K6 T9 @8 [5 k% E5 W" S" |% `5 K) O另外关于公差带选择太分散的说法在下图中也出现了H7、H12、H13。
6 }" x; l. }5 h: [) E) K当然我不是说这图是完全对的,仅供参考!8 ?7 F/ ^) F* T1 b& Y9 ~) s& r
0 f2 W; d$ s$ V: f  |  E2 t9 T
[ 本帖最后由 evtepe 于 2008-4-19 21:40 编辑 ]
2008041902.JPG
发表于 2008-4-19 17:45:57 | 显示全部楼层 来自: 中国广东肇庆

回复 1# 的帖子

零件图上人家老师傅们也不会这样标注的啦!只是装配图上有,我师傅经常这样标,我觉得可以啊!!
发表于 2008-4-19 18:38:53 | 显示全部楼层 来自: 中国江苏南京
工人师傅看了你的图纸要发飙的!
头像被屏蔽
发表于 2008-4-19 21:49:33 | 显示全部楼层 来自: 中国广东广州
提示: 作者被禁止或删除 内容自动屏蔽
发表于 2008-4-19 22:01:35 | 显示全部楼层 来自: 中国广东深圳
我们公司是非常重要的配合尺寸才标公差,其它就在技术要求中说明按未注公差标准1804和1184.
发表于 2008-4-20 09:58:41 | 显示全部楼层 来自: 中国山东威海
先不说基孔还是基轴制,如果图纸都是这样的,那工人在加工过程中,还得查表,算来算去的,多麻烦,除非工人都是些老师傅了,有可能知道范围,如果是新工人的话,每人还得配一本公差与配合的手册?
发表于 2008-4-20 10:03:38 | 显示全部楼层 来自: 中国浙江嘉兴
个人感觉,此零件的标注这样对于加工有一定的困难,现场的工人不会每个人手里一份对照表,不过一般装配图里会这样画
发表于 2008-4-20 10:30:10 | 显示全部楼层 来自: 中国江苏常州
从公差设计手册来的:
# P6 z; \. Q3 J' M2 C" i  x-------------------------------$ J- |- Z) n6 a% T0 r6 Y* B
一般我们的量规代码是( O- {* }+ [% X/ k/ j9 `/ }/ o8 [
产品号---零件号---孔以及公差号--序列号。
3 r4 D3 T3 I! h& a+ G/ p  m! E1 p3 _---------------------------' v" q# ^. a9 l8 m8 |  `+ T
其它地方不用。
001.jpg
002.jpg
003.jpg
发表于 2008-4-20 10:55:45 | 显示全部楼层 来自: 中国安徽芜湖

回复 11# 的帖子

对一个尺寸的理解,不能单从一个尺寸的标注来说。要理解就必须看它和其他零件的装配关系来看。这样才能正确理解。
发表于 2008-4-20 11:10:11 | 显示全部楼层 来自: 中国四川成都
沉孔深度,螺纹孔直径、粗糙度都没标住哦。13、15楼的都很好。
发表于 2008-4-20 13:47:34 | 显示全部楼层 来自: 中国江苏南京
原帖由 xiaoma76 于 2008-4-18 20:22 发表 http://www.3dportal.cn/discuz/images/common/back.gif
" ?: `2 ~& k# w# |这么小的零件要求这么高,为什么没有粗糙度。) H( ]) @4 d# Z! Y
沉孔下面怎么是螺纹孔,想不通。

+ l* V2 Y' {5 V5 F, m陈孔下边是螺纹孔很正常啊,因为装一个内六角螺栓。
发表回复
您需要登录后才可以回帖 登录 | 注册

本版积分规则


Licensed Copyright © 2016-2020 http://www.3dportal.cn/ All Rights Reserved 京 ICP备13008828号

小黑屋|手机版|Archiver|三维网 ( 京ICP备2023026364号-1 )

快速回复 返回顶部 返回列表