QQ登录

只需一步,快速开始

登录 | 注册 | 找回密码

三维网

 找回密码
 注册

QQ登录

只需一步,快速开始

展开

通知     

全站
9天前
查看: 1740|回复: 2
收起左侧

[讨论] 盘管的加工工艺

[复制链接]
发表于 2008-4-21 16:41:38 | 显示全部楼层 |阅读模式 来自: 中国辽宁大连

马上注册,结识高手,享用更多资源,轻松玩转三维网社区。

您需要 登录 才可以下载或查看,没有帐号?注册

x
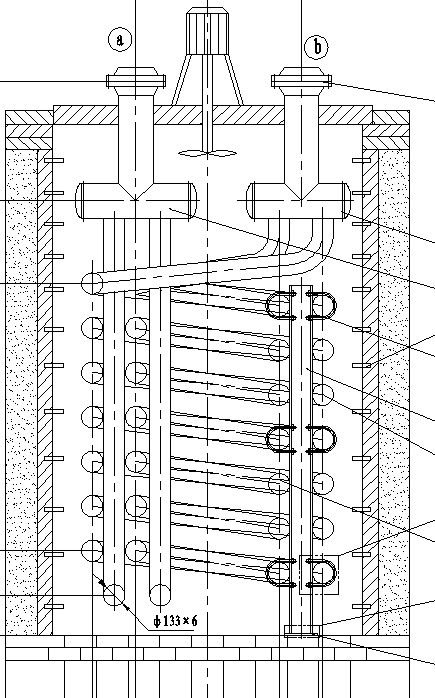
此盘管在加工制造中应注意哪些?
截图00.jpg
发表于 2008-4-21 22:31:06 | 显示全部楼层 来自: 中国上海
自己还没有做过,但认为:
4 J  L6 P$ _- L$ R" }! V
$ x! _7 [5 @, \0 k加工后的厚度非常重要,否则腐蚀率高可能很快漏掉  j# G5 a  G( a! m: i5 }

! n* J2 a1 @- H9 Q尺寸当然要符合要求,不均匀可能导致加热不均匀
发表于 2008-7-22 16:52:06 | 显示全部楼层 来自: 中国山东济南
二楼的看来真的没有做过这种产品。
5 P3 q9 u. m3 ]! c* Y3 t2 h' P盘管换热器所使用的基本都是不锈钢管或铜管。这两种管材的使用状态都是M态,加工过程中基本上不会出现二楼说的情况。 :lol: :lol:
发表回复
您需要登录后才可以回帖 登录 | 注册

本版积分规则


Licensed Copyright © 2016-2020 http://www.3dportal.cn/ All Rights Reserved 京 ICP备13008828号

小黑屋|手机版|Archiver|三维网 ( 京ICP备2023026364号-1 )

快速回复 返回顶部 返回列表