QQ登录

只需一步,快速开始

登录 | 注册 | 找回密码

三维网

 找回密码
 注册

QQ登录

只需一步,快速开始

展开

通知     

查看: 2603|回复: 14
收起左侧

[已解决] 我们机器中的一个结构问题?

[复制链接]
发表于 2008-4-23 16:02:24 | 显示全部楼层 |阅读模式 来自: 中国广东肇庆

马上注册,结识高手,享用更多资源,轻松玩转三维网社区。

您需要 登录 才可以下载或查看,没有帐号?注册

x
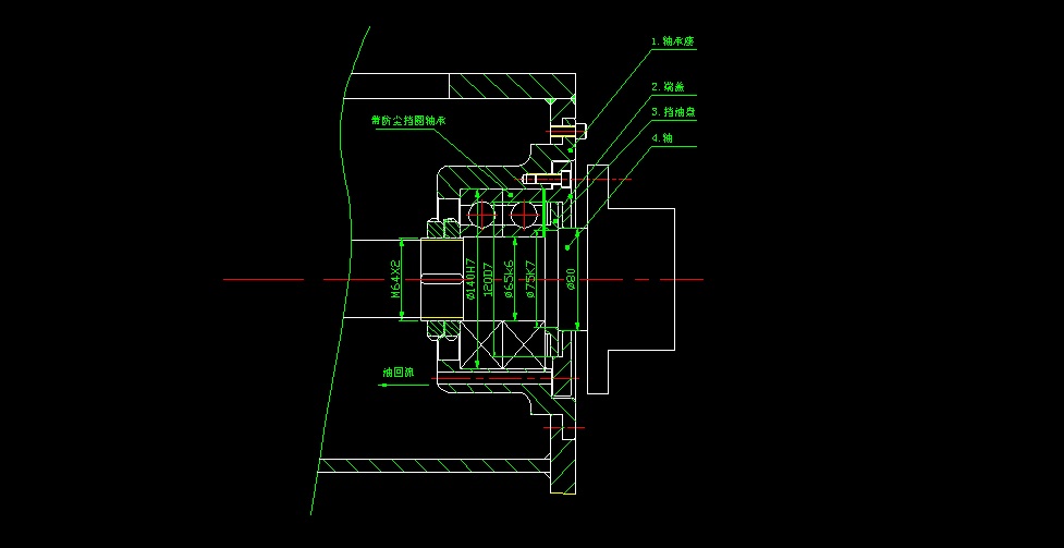
如图结构,轴工作时作高速度转动,改过几次,老是出现:发热严重及漏油问题# v5 @5 q2 c( M% x$ e
如改成为现在图中情况,结构合理吗!但是感觉上还是没有解决问题8 x) q) n$ e  ^: @
1.因为挡油盘要跟着轴转动,端盖与挡油盘之间,一动一静,难保证间隙的同时不发生渗漏和摩擦发热;$ R0 A8 |6 e9 q' [8 Z$ O
2.挡油盘能保证油从回油道上流回吗?
8 i; U2 z+ u, g( g' R! N& X+ G3.在不改动轴和端盖结构的情况下,有什么办法可以做到密封又不发热呢?
- l: \! X: |) J+ i/ N5 a3 |3 E% _! ?4.如果改动结构,请大家指点一二;
0 ?! `2 o' \4 Z6 ]谢谢大家!# @6 E/ K+ m) z% W2 c2 P" n# J

2 j! [$ b8 c9 c  q6 c8 W! ~(附件为CAD图)
组件.jpg

组件.rar

23.25 KB, 下载次数: 13

发表于 2008-4-23 16:49:08 | 显示全部楼层 来自: 中国上海
是浸没式润滑吗?那又何苦用ZZ轴承?% u1 K0 Y# b) D6 f' ~  C
有端盖了,还必须用挡油盘吗?
/ `2 b( g5 q% U% ?, K不成熟,供参考。

评分

参与人数 1三维币 +3 收起 理由
plc + 3 应助

查看全部评分

发表于 2008-4-23 16:59:38 | 显示全部楼层 来自: 中国北京
挡油盘可以去掉。端盖与轴承外圈压紧的那一段可以加长。盖与轴之间应有油封。

评分

参与人数 1三维币 +3 收起 理由
plc + 3 应助

查看全部评分

发表于 2008-4-23 17:23:28 | 显示全部楼层 来自: 中国北京
挡油盘跟端盖合二为一,在端盖与轴承座及轴之间加密封装置

评分

参与人数 1三维币 +3 收起 理由
plc + 3 应助

查看全部评分

发表于 2008-4-23 17:24:54 | 显示全部楼层 来自: 中国山西太原
1  在轴承外边加挡油盘是可行的,跟轴一起高速旋转的挡油盘对漏出的油施加很大的离心力,将油沿旋转的切线方向甩出。在挡油盘的内侧的轴承压盖内应车一道沟槽,此沟槽与回油孔相通。看图上没有此存油空间,这样油会通过挡油盘外圆的间隙流向轴与轴承压盖的间隙而漏出。; G8 X/ o9 d$ b3 Y( ~% X# p
2  轴伸出端仅靠一个挡油盘来密封显然是不够的,在轴承压盖与轴之间需加耐油耐温密封圈,若温度高于100℃,需用柔性石墨做填料加一个填料箱。这样才能完善密封。

评分

参与人数 1三维币 +3 收起 理由
plc + 3 应助

查看全部评分

发表于 2008-4-23 20:17:25 | 显示全部楼层 来自: 中国天津
注意,甩油盘的作用是甩油,而不是挡油,所以甩油盘甩出去的油要能顺利地流走,才不会漏。
9 G6 x1 i/ L5 O% l/ u1 y如果要很可靠的密封,这种结构不行。轴端的密封形式很多呀,楼主为什么要选择这样的结构呢,有什么特殊要求吗?最好能把使用情况说清楚,大家好出主意。

评分

参与人数 1三维币 +3 收起 理由
plc + 3 应助

查看全部评分

发表于 2008-4-23 21:59:59 | 显示全部楼层 来自: 中国上海
楼主参考!
2 ^$ y& y/ W. Q5 Z; q$ @( E7 X
3 K8 D9 P  @7 `9 M润滑压力也蛮大的,几年来没见过渗漏。
20080423.JPG

评分

参与人数 1三维币 +3 收起 理由
plc + 3 应助

查看全部评分

 楼主| 发表于 2008-4-24 08:21:23 | 显示全部楼层 来自: 中国广东肇庆

什么特殊要求

谢谢大家!
- Q. i$ M9 p" u, B0 r没什么特殊要求,只是轴作3000 转/分钟以上的速度,而轴的结构又不能改,轴的前后端也没什么特殊连接!
发表于 2008-4-24 09:55:53 | 显示全部楼层 来自: 中国黑龙江佳木斯
按你的要求解决你的问题。
- X2 V) m. x) l# s. A6 k简单的画了个图形,没有画剖面线。甩油轮建议做成图示形状,密封采用迷宫式密封。/ T) N! u) u0 I! w9 p: K# j

; o9 \2 @' z; R' u3 P[ 本帖最后由 shifeng18 于 2008-4-25 19:01 编辑 ]
未命名.jpg

评分

参与人数 1三维币 +3 收起 理由
plc + 3 应助

查看全部评分

 楼主| 发表于 2008-4-26 09:43:42 | 显示全部楼层 来自: 中国广东肇庆

回复 9# 的帖子

改甩油盘最省事了,就看效果如何!3 o: w$ C. ?$ n& p# p
迷宫式密封需要什么特别条件和注意吗?

评分

参与人数 1三维币 +3 收起 理由
plc + 3 应助

查看全部评分

发表于 2008-4-26 12:51:03 | 显示全部楼层 来自: 中国黑龙江佳木斯
机械设计手册(化工出版社)第10篇 润滑与密封的第三章里有迷宫式密封的特点、使用范围、及密封槽图表参考尺寸。可以将槽放在甩油盘上或者放在端盖上。

评分

参与人数 1三维币 +3 收起 理由
plc + 3 应助

查看全部评分

发表于 2008-4-26 16:00:17 | 显示全部楼层 来自: 中国江苏苏州
谢谢大家,又学到了不少关于密封的知识,现在公司正在搞齿轮箱装配,碰到漏油的事情比较多!!
发表于 2008-4-26 16:05:23 | 显示全部楼层 来自: 中国浙江宁波
使用组合油封;1 h& n# v  k# J. r5 Y; [
而且轴输出动力吗
发表于 2008-4-30 01:56:34 | 显示全部楼层 来自: 中国江苏镇江
可以使用GB/T13871-92 内包骨架油封。
发表于 2008-4-30 16:54:30 | 显示全部楼层 来自: 中国广东深圳
http://www.3dportal.cn/discuz/vi ... d=686349#pid2284162
5 {! }; \+ s+ H( q$ g8 x1 g& r6 w  怎么和我公司的现象一样的···
发表回复
您需要登录后才可以回帖 登录 | 注册

本版积分规则


Licensed Copyright © 2016-2020 http://www.3dportal.cn/ All Rights Reserved 京 ICP备13008828号

小黑屋|手机版|Archiver|三维网 ( 京ICP备2023026364号-1 )

快速回复 返回顶部 返回列表