QQ登录

只需一步,快速开始

登录 | 注册 | 找回密码

三维网

 找回密码
 注册

QQ登录

只需一步,快速开始

展开

通知     

查看: 1879|回复: 10
收起左侧

[已解决] 椭园轴加工

[复制链接]
发表于 2008-4-25 16:43:34 | 显示全部楼层 |阅读模式 来自: 中国北京

马上注册,结识高手,享用更多资源,轻松玩转三维网社区。

您需要 登录 才可以下载或查看,没有帐号?注册

x
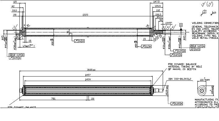
现有一椭圆轴,请问加工方法.能具体请一工艺,图中意思是用铣床,我认为用龙门铣或镗铣都可以,请高手指教.
1.jpg
2.jpg
发表于 2008-4-26 21:09:03 | 显示全部楼层 来自: 中国湖北宜昌
我认为工件较大可以考虑铣镗床加工比较好些。
发表于 2008-4-26 21:40:15 | 显示全部楼层 来自: 中国江苏南京
一般都用龙门铣床或者镗床加工。
发表于 2008-4-26 21:44:57 | 显示全部楼层 来自: 中国江苏扬州
上车床加工,做专用夹具。
11.jpg
22.jpg

评分

参与人数 1三维币 +2 收起 理由
飞天小猪 + 2 应助

查看全部评分

 楼主| 发表于 2008-4-28 13:25:00 | 显示全部楼层 来自: 中国北京
谢谢各位的回复,长知识了.
发表于 2008-4-28 13:58:32 | 显示全部楼层 来自: 中国北京

给篇文章你参考一下

给篇文章你参考一下

普通车床上加工椭圆轴.PDF

62.83 KB, 下载次数: 11

评分

参与人数 1三维币 +2 收起 理由
渔樵 + 2 好资料,感谢对论坛的支持!

查看全部评分

发表于 2008-4-28 14:12:34 | 显示全部楼层 来自: 中国北京
建议给楼主加分,这个话题不错,不要沉了
发表于 2008-4-28 20:21:53 | 显示全部楼层 来自: 中国广东梅州
帮楼主顶了好的话题别沉了
发表于 2008-4-29 07:50:06 | 显示全部楼层 来自: 中国安徽合肥
长见识了,帮楼主顶一个
 楼主| 发表于 2008-4-29 09:50:23 | 显示全部楼层 来自: 中国北京
我找到了一篇在车床上加工椭园板的介绍,传上与大家共享.

在普通车床上加工椭圆板.PDF

243.26 KB, 下载次数: 4

车床加工椭圆板

发表于 2008-4-29 11:20:19 | 显示全部楼层 来自: 中国新疆乌鲁木齐
如果只是一根轴可采用铣削,如果量大建设上一个模具,也可采用靠模法进行加工
发表回复
您需要登录后才可以回帖 登录 | 注册

本版积分规则


Licensed Copyright © 2016-2020 http://www.3dportal.cn/ All Rights Reserved 京 ICP备13008828号

小黑屋|手机版|Archiver|三维网 ( 京ICP备2023026364号-1 )

快速回复 返回顶部 返回列表