QQ登录

只需一步,快速开始

登录 | 注册 | 找回密码

三维网

 找回密码
 注册

QQ登录

只需一步,快速开始

展开

通知     

全站
11天前
goto3d 说: 在线网校重磅上线MC2022&Inventor2022全新课程,虞为民老师、大表哥同事精彩讲解,快去围观!
2021-06-25
查看: 1449|回复: 3
收起左侧

[讨论] 请问此模型如何建立,在WF2.0中

[复制链接]
发表于 2008-5-9 15:16:36 | 显示全部楼层 |阅读模式 来自: 中国江苏镇江

马上注册,结识高手,享用更多资源,轻松玩转三维网社区。

您需要 登录 才可以下载或查看,没有帐号?注册

x
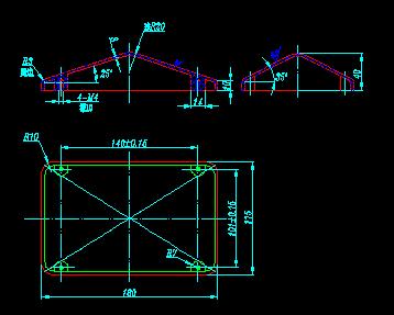
请问此模型如何建立,在WF2.0中,如下图:
未命名.jpg
 楼主| 发表于 2008-5-10 12:03:26 | 显示全部楼层 来自: 中国江苏镇江
能否用图形工具来做呢,大家指点下啊,
发表于 2008-5-10 13:26:31 | 显示全部楼层 来自: 中国广东深圳

回复 1# 的帖子

当然可以做呀!用混合命令就可以完成了!边混合到点.
发表于 2008-5-30 14:18:21 | 显示全部楼层 来自: 中国江苏南京
1、拉伸出方形柱
" K0 h# z) I! F9 r2、面混合到点
: B0 R1 q9 d% N) H1 K$ B9 \- ?# m3、抽壳
/ T+ D5 v# _$ l2 Y" N$ A5 k* g4、拉伸螺孔座
发表回复
您需要登录后才可以回帖 登录 | 注册

本版积分规则


Licensed Copyright © 2016-2020 http://www.3dportal.cn/ All Rights Reserved 京 ICP备13008828号

小黑屋|手机版|Archiver|三维网 ( 京ICP备2023026364号-1 )

快速回复 返回顶部 返回列表