QQ登录

只需一步,快速开始

登录 | 注册 | 找回密码

三维网

 找回密码
 注册

QQ登录

只需一步,快速开始

展开

通知     

查看: 1719|回复: 5
收起左侧

[已解决] 直径标注

 关闭 [复制链接]
发表于 2008-5-12 22:41:50 | 显示全部楼层 |阅读模式 来自: 中国江苏苏州

马上注册,结识高手,享用更多资源,轻松玩转三维网社区。

您需要 登录 才可以下载或查看,没有帐号?注册

x
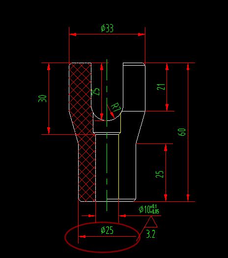
图中直径25的标注,在UG4.0工程图中是怎么做的?( \0 F5 g2 Q; i- M, Q
& i' X% n- x4 [9 F
[ 本帖最后由 luohuayu 于 2008-5-14 12:08 编辑 ]
01.jpg
发表于 2008-5-12 22:48:51 | 显示全部楼层 来自: 中国江苏镇江
:lol: 太简单了!. s* I! c9 Q2 j# t
把一头的箭头隐藏了就行了 :L :L

评分

参与人数 1三维币 +3 收起 理由
阿帕奇 + 3

查看全部评分

 楼主| 发表于 2008-5-13 08:25:51 | 显示全部楼层 来自: 中国江苏苏州
怎么稳藏的!贴个图上来!我试了几次都不成功!隐藏起来了全部都没有了!
+ E( e- O. U) \$ i- S- r7 x6 l+ J3 R/ z! X+ L) q# E) P8 k4 N1 c
[ 本帖最后由 hfmgh 于 2008-5-13 09:47 编辑 ]
发表于 2008-5-13 16:00:47 | 显示全部楼层 来自: 美国
右击直径尺寸,选择式样,然后单击显示右端延长线和显示右端箭头,最后单击确定。

评分

参与人数 1三维币 +3 收起 理由
luohuayu + 3 应助

查看全部评分

 楼主| 发表于 2008-5-14 09:48:24 | 显示全部楼层 来自: 中国江苏苏州
问题解决了!为了让以后遇到同样问题的网友方便,我再贴个图上来! 123.jpg

评分

参与人数 1三维币 +3 收起 理由
luohuayu + 3 应助

查看全部评分

发表于 2008-5-14 19:35:39 | 显示全部楼层 来自: 中国广东广州
呵呵 是的呀 这很简单的呀
发表回复
您需要登录后才可以回帖 登录 | 注册

本版积分规则


Licensed Copyright © 2016-2020 http://www.3dportal.cn/ All Rights Reserved 京 ICP备13008828号

小黑屋|手机版|Archiver|三维网 ( 京ICP备2023026364号-1 )

快速回复 返回顶部 返回列表