QQ登录

只需一步,快速开始

登录 | 注册 | 找回密码

三维网

 找回密码
 注册

QQ登录

只需一步,快速开始

展开

通知     

查看: 3807|回复: 18
收起左侧

[练习题] 【進修級練習題63】

[复制链接]
发表于 2008-5-15 09:03:54 | 显示全部楼层 |阅读模式 来自: 中国台湾

马上注册,结识高手,享用更多资源,轻松玩转三维网社区。

您需要 登录 才可以下载或查看,没有帐号?注册

x
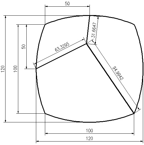
1. a 之長度為何?
' M+ H- c6 i4 e% P    (A) 31.6467   (B) 31.6647   (C) 31.6764
Advance63.gif

评分

参与人数 1三维币 +10 收起 理由
woaishuijia + 10 提供练习

查看全部评分

发表于 2008-5-15 16:05:18 | 显示全部楼层 来自: 中国广东韶关
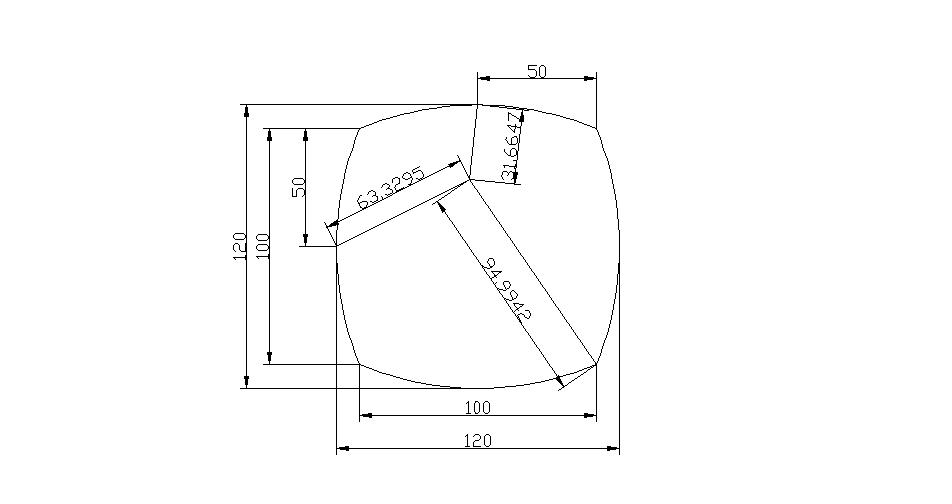
63.jpg

评分

参与人数 1三维币 +5 收起 理由
woaishuijia + 5 技术讨论

查看全部评分

发表于 2008-5-15 23:07:35 | 显示全部楼层 来自: 中国河南郑州
回复:$ ]3 A8 x% [8 J  p. w
08051523042693.JPG

评分

参与人数 1三维币 +5 收起 理由
woaishuijia + 5 技术讨论

查看全部评分

发表于 2008-5-16 10:10:47 | 显示全部楼层 来自: 中国广东广州
做去来了 1 v2 D5 ]8 R" R4 p" b4 |% M
答案:b
3 k) R; B8 a4 w+ L' Q$ b% q/ P1 \" P8 j4 I9 D* A' K/ _! }
[ 本帖最后由 xinghonglu 于 2008-5-16 10:13 编辑 ]
Snap1.jpg
Snap1.jpg

评分

参与人数 1三维币 +4 收起 理由
woaishuijia + 4 马虎!3a等于多少?

查看全部评分

发表于 2008-5-16 18:27:17 | 显示全部楼层 来自: 中国浙江宁波
回复:答案b。
進修級練習題63.jpg

评分

参与人数 1三维币 +5 收起 理由
woaishuijia + 5 技术讨论

查看全部评分

发表于 2008-5-17 09:06:44 | 显示全部楼层 来自: 中国四川南充
回复:答案b
) C1 P; s' ^- k- m
- m. ^& w; L& R9 X; G) O[ 本帖最后由 LPL 于 2008-5-17 09:12 编辑 ]
進修級練習題63.jpg

评分

参与人数 1三维币 +5 收起 理由
woaishuijia + 5 技术讨论

查看全部评分

发表于 2008-5-17 13:02:37 | 显示全部楼层 来自: 中国湖北武汉
搞个视频看一下撒8 B4 b+ {8 E. h; A+ ^1 ?5 l
让我们知道过程
发表于 2008-5-17 16:54:12 | 显示全部楼层 来自: 中国北京
進修級練習題63
1.jpg

评分

参与人数 1三维币 +3 收起 理由
woaishuijia + 3 a=31.6647,2a、3a等于多少?

查看全部评分

发表于 2008-5-18 21:44:20 | 显示全部楼层 来自: 中国江苏南通
小试一把。
Drawing1.jpg

评分

参与人数 1三维币 +5 收起 理由
woaishuijia + 5 技术讨论

查看全部评分

 楼主| 发表于 2008-5-19 08:49:54 | 显示全部楼层 来自: 中国台湾
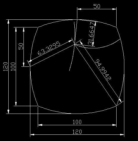
1. 作100X100X100之四方弧形ABCD
8 ?+ x/ D9 g- F9 K2. 取AB弧中點E/ ^3 i1 {6 B" I' d
3. 取AD弧中點F2 Q7 H+ y- H) W) ^; z
4. 以CIRCLE →cen=E  r=50 →作#1圓
8 f1 M0 {6 `+ u( b4 p4 k4 B5. 以CIRCLE →cen=F  r=25 →作#2圓' e" p0 e( r, r- U) t+ r* z& d- Y  Z5 D
6. 以CIRCLE →cen=E  r=60 →作#3圓' v* X2 h3 d2 F5 ?' P
7. 以CIRCLE →cen=F  r=30 →作#4圓( f4 X$ C, o3 O( v/ m6 s7 p; ^! U% v
8. 以CIRCLE(3p) →1'st=P  2'nd=Q  3'rd=R →作#5圓( S- f, ^$ W7 ^# Q: j4 g/ ^: m; ^
9. 以CIRCLE →cen=C  r=120 →作#6圓* R# \8 O1 L* g' L8 _
10. 以CIRCLE →cen=F  r=40 →作#7圓
9 s! j0 e* l7 j+ d11. 以CIRCLE →cen=C  r=135→作#8圓+ s3 W! b* G7 ~& U% K+ O: }7 a
12. 以CIRCLE →cen=F  r=45→作#9圓
7 f" l5 H2 {$ D$ `6 D! K13. 以CIRCLE(3p) →1'st=X  2'nd=Y  3'rd=Z →作#10圓 並與#5圓交於G7 q% W  v# s2 M! p* e
14. 連接EG FG CG
Advance63.gif

评分

参与人数 1三维币 +10 收起 理由
wsj249201 + 10 经验分享!

查看全部评分

发表于 2008-9-3 14:02:33 | 显示全部楼层 来自: 中国江苏无锡
没做出来..惭愧啊...0 P3 b& R- t1 k
* j+ _9 f, J) Y4 H5 m- V- D
sshot-4.png
发表于 2008-9-5 13:58:21 | 显示全部楼层 来自: 中国
答案:B  是利用阿波罗尼斯圆 想了好几天才完成。这几天学了不少的知识。' l* Y6 Y1 B7 s0 _, C0 v8 d
未命名22.JPG (32.7 KB, 下载次数: 0)

评分

参与人数 1三维币 +5 收起 理由
2005llnn + 5 积极参与

查看全部评分

发表于 2008-11-5 21:37:36 | 显示全部楼层 来自: 中国江苏苏州
做好了,答案:B
JX63.jpg

评分

参与人数 1三维币 +5 收起 理由
2005llnn + 5 很好

查看全部评分

发表于 2009-3-9 21:58:59 | 显示全部楼层 来自: 中国台湾
发表于 2009-9-11 20:50:47 | 显示全部楼层 来自: 中国山东东营
交作业
9 n( d* w- C) [9 ]  y) {, mhttp://1
63.GIF

评分

参与人数 1三维币 +3 收起 理由
2005llnn + 3 参与鼓励

查看全部评分

发表于 2013-9-5 14:56:29 | 显示全部楼层 来自: 中国浙江温州
9-5 进修级练习题63
9-5 进修级练习题63.jpg

评分

参与人数 1三维币 +3 收起 理由
2005llnn + 3 参与鼓励

查看全部评分

发表于 2013-9-7 19:00:41 | 显示全部楼层 来自: 中国安徽合肥
练习一下,阿氏圆
进修级练习题63.jpg

评分

参与人数 1三维币 +3 收起 理由
2005llnn + 3 参与鼓励

查看全部评分

发表于 2014-3-18 19:11:32 | 显示全部楼层 来自: 中国四川成都
进修63& \1 N- @( L( u9 J7 a) ~, |; V
进修63.jpg

评分

参与人数 1三维币 +3 收起 理由
2005llnn + 3 参与鼓励

查看全部评分

发表于 2014-5-4 15:24:35 | 显示全部楼层 来自: 中国天津
练习一下。答案B
无标题.jpg

评分

参与人数 1三维币 +3 收起 理由
2005llnn + 3 参与鼓励

查看全部评分

发表回复
您需要登录后才可以回帖 登录 | 注册

本版积分规则


Licensed Copyright © 2016-2020 http://www.3dportal.cn/ All Rights Reserved 京 ICP备13008828号

小黑屋|手机版|Archiver|三维网 ( 京ICP备2023026364号-1 )

快速回复 返回顶部 返回列表