QQ登录

只需一步,快速开始

登录 | 注册 | 找回密码

三维网

 找回密码
 注册

QQ登录

只需一步,快速开始

展开

通知     

查看: 12835|回复: 44
收起左侧

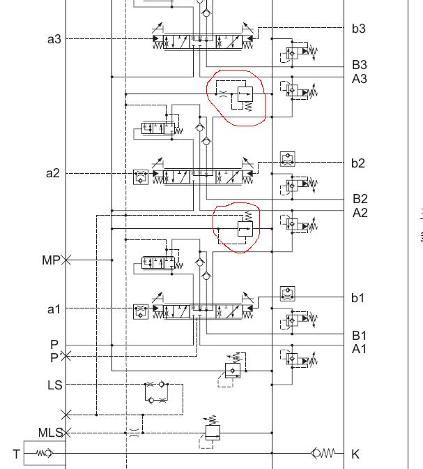
[求助] 力士乐LUDV多路阀(M7阀)中那两个减压阀的作用

[复制链接]
发表于 2008-5-20 23:34:40 | 显示全部楼层 |阅读模式 来自: 中国上海

马上注册,结识高手,享用更多资源,轻松玩转三维网社区。

您需要 登录 才可以下载或查看,没有帐号?注册

x
图中所示这两个阀的作用是什么,请教各位8 L4 L! @) f) U0 I8 L: V
两个附件中,前一个是阀的截图,后一个力士乐M7阀的原样本
LUDV阀.JPG

64295.pdf

824.3 KB, 下载次数: 142

发表于 2008-5-20 23:46:12 | 显示全部楼层 来自: 中国天津
1.上面的阀应该是让LS恒流的阀,这个是我的猜想,没有证实
& O. q8 p) x0 H8 g     2.下面的阀是在主阀不工作时,让泵有个恒定的小流量油流动,一旦LS有动作,这就没有油流出

评分

参与人数 1三维币 +5 收起 理由
江边 + 5 感谢您的积极参与

查看全部评分

发表于 2008-5-21 10:45:18 | 显示全部楼层 来自: 中国辽宁铁岭
上,下两图都是LUDV控制压力补偿阀,在流量饱和时,稳定各执行机构的速度,使执行机构正常工作,不会停止.不知是否准确.5 U# }/ c' N; g. m" s+ ~6 P
M7-20和M7-22是LUDV控制,M7-12和M7-15是Ls控制.

评分

参与人数 1三维币 +3 收起 理由
晨砂 + 3 技术讨论!

查看全部评分

发表于 2008-5-21 11:00:58 | 显示全部楼层 来自: 中国天津
谢谢各位专家。
发表于 2008-5-21 14:36:19 | 显示全部楼层 来自: 中国江苏无锡
2楼的第二个观点本人同意& Y" G. P) e7 ?! m
第一个观点我认为是确定LS的最大值!也就是LS各联的最高压力不能超过这个设定值!
5 Y3 q2 J9 |: Y+ C( w& M+ @这两个阀有点给定泵上下限的意思!
7 h( o3 q9 S/ }' V+ v' S8 y4 N$ |* I5 E
[ 本帖最后由 wuwanfu 于 2008-5-21 14:42 编辑 ]

评分

参与人数 1三维币 +5 收起 理由
江边 + 5 感谢您的积极参与

查看全部评分

发表于 2008-5-21 16:19:58 | 显示全部楼层 来自: 中国辽宁铁岭
两个阀是定差减压阀,起压力补偿阀的作用,反馈油取至负载为Ls控制,反馈油取至系统供油为LUDV控制.! U: h9 j9 M! ?0 @$ L. Z
Ls控制在流量饱和时,会停止工作,LUDV在流量饱和时,会自动分配流量,保证执行机构正常工作.$ V5 d. q% t4 k: G9 k! F, T, |5 K
楼上说的我不太明白,请详细说明两阀的工作原理,及具体作用.
发表于 2008-5-21 21:16:53 | 显示全部楼层 来自: 中国北京
第二个阀大家说的很明白了./ |- t! C) L' q
第一阀的作用:: O5 o. [- [$ k; p: Y* F1 M( t
1、LS卸荷用.(所有联的阀芯都回到中位后,此阀卸掉LS中的压力),( E  G+ Y, z  ?$ [2 i
2、此外还有缓冲的作用.

评分

参与人数 1三维币 +3 收起 理由
晨砂 + 3 技术讨论

查看全部评分

 楼主| 发表于 2008-5-23 00:47:42 | 显示全部楼层 来自: 中国上海
感谢各位帮助
" E) R  p; B) k0 n6 U2楼讲的“下面的阀是在主阀不工作时,让泵有个恒定的小流量油流动,一旦LS有动作,这就没有油流出”,是怎么实现的,LS口和P口的压力加到减压阀两端比较,为什么就产生一个小流量呢,为何有动作时LS有动作这就没油了
0 u5 Q. f# d8 q% n2 i- g; T+ y7楼讲的第一个阀是用来让LS卸荷的,那么如果某联有动作时这个阀怎样呢
# n9 W( g0 E  z1 s9 o+ S8 @哪位可否详细讲讲
9 q% I! X& ]2 R" t9 c4 c# S谢谢
发表于 2008-5-24 05:31:09 | 显示全部楼层 来自: 美国
楼主好,M7阀里面的这两个阀我的看法是如下:
  ^" B( M1 H% ?+ m* Q' W上面那个是LS多路阀基本都会作为配置的Bleed valve。是个两通减压阀和一个固定阻尼构成的恒流阀,即定流量阀。在正常工作时,因为是定流量的,所以这里的流量不会随LS通道的压力升高而提高。避免的在这里发生过多的热量。这是加载这个两通减压阀的好处。有些厂家就一个节流孔,这样发热就多一点了。在阀停止工作时,这里的通道负责把残余在LS通道里的压力释放掉。避免泵维持在高压状态。工作时,也能顺利地建立起LS的通道压力。
+ y" j* @; r. U% ^: O3 H
3 ~/ y& A( f% U下面那个是个典型的三通补偿阀。注意它的阀的弹簧腔是连接到LS的。这是M7的总的补偿器,在泵供给流量大于各联需要时,这个就把多余的油溢流到邮箱去了。压力是随LS变化而变化的。差值一般要大于各联单独的补偿器的。因为是LUDV系统,所以这里的设定要大于泵本身的那个差动阀的设定值Delta P。% m' b0 G5 \/ `% {
1 L3 c# d* s6 S6 p7 T; ^5 N
希望楼主能明白我的意思。$ B! P, z; T1 _. u6 P0 ~! m% j

. F2 \1 x. p- a4 B5 R" J) e& ~8 @$ k[ 本帖最后由 yakruru 于 2008-5-24 05:42 编辑 ]

评分

参与人数 1三维币 +3 收起 理由
柠檬咖啡 + 3 技术交流

查看全部评分

 楼主| 发表于 2008-5-24 23:20:17 | 显示全部楼层 来自: 中国上海
再次感谢各位. h" v- [2 M% a/ X/ y. j
1.看过9楼的讲解,明白了第一个阀的作用,目的是卸荷LS压力,但在工作时也有流量通过,但是采用类似调速阀的结构,使得流量固定,始终不会太大,那么还想问下,大概是多大。
6 w4 ]. W  d# X/ b5 t9 M- q; N+ O2.  9楼讲“工作时,也能顺利地建立起LS的通道压力。”,问下这个结构为什么比单是阻尼孔建压快?
4 O0 }5 f& A7 u$ {; N% E, t7 A3.关于第二个阀,我的图上,标了一个25L/min,想问下这个流量是不是冲洗用的,泵(A8V)的最小流量也是25L/min,如果我更改了泵的这个最小流量,那会怎么样,是不是通不过了。3 P+ J" c0 w  ]) A/ O. N
! `" i3 }' E& B4 D2 h9 K
[ 本帖最后由 yongdongji 于 2008-5-24 23:21 编辑 ]
发表于 2008-5-24 23:49:17 | 显示全部楼层 来自: 中国北京
第一个阀有待继续考究
( c* {/ _/ R$ V* E个人认为它可算一分流阀,使LS有一个最小压力,使泵有一个最小排量
 楼主| 发表于 2008-5-26 00:32:57 | 显示全部楼层 来自: 中国上海
呵呵* w& ~/ `% w, \
晕了,不知道到底谁讲的对了
发表于 2008-5-26 09:18:51 | 显示全部楼层 来自: 中国江苏无锡
同意9楼,应该是那样的了
 楼主| 发表于 2008-5-27 23:36:49 | 显示全部楼层 来自: 中国上海
现在,我认为应该是这样的,好像可以顺通了,但是不知对不对,3 |6 F  ?  f' ^* R, s
第一个阀,目的是各联不动作时,卸荷LS压力,为了减小该处工作时的流量损失,采用恒流量阀的结构。9 v* K. ]! _* }: G: ^6 }" K
第二个阀,LS压力作用于弹簧腔,当各联都不动作时,由于LS口无压力,所以阀口打开,用来通过泵的冲洗流量的,一旦LS 口有压力(某联动作),关闭该阀。

评分

参与人数 1三维币 +2 收起 理由
柠檬咖啡 + 2 积极参与主题

查看全部评分

发表于 2008-9-16 11:30:04 | 显示全部楼层 来自: 中国宁夏银川
伙计,你的样本是从哪里弄的呀?
发表于 2008-9-16 11:32:11 | 显示全部楼层 来自: 中国宁夏银川
每路都有一个两通压力补偿器,P路为一个三通压力补偿器。
发表于 2008-9-16 14:23:25 | 显示全部楼层 来自: 中国上海
原帖由 yakruru 于 2008-5-24 05:31 发表 http://www.3dportal.cn/discuz/images/common/back.gif
4 ]2 L- w) v3 O( \, [/ b1 E, y楼主好,M7阀里面的这两个阀我的看法是如下:
8 o( u0 c7 d: u上面那个是LS多路阀基本都会作为配置的Bleed valve。是个两通减压阀和一个固定阻尼构成的恒流阀,即定流量阀。在正常工作时,因为是定流量的,所以这里的流量不会随LS通 ...
" J5 T" ^8 Z4 @# ^1 _

8 q' D2 q2 P6 V- _7 |; y' E# ?5 L说得好!good good good
发表于 2008-10-22 20:19:12 | 显示全部楼层 来自: 中国湖南长沙
学习 这种阀的原理图 我们这里没有 郁闷
发表于 2009-2-22 15:16:55 | 显示全部楼层 来自: 中国江苏连云港
:) :lol:
发表于 2009-2-22 17:18:11 | 显示全部楼层 来自: 中国山西大同
又学到了新知识。谢谢各位。
发表于 2009-2-22 19:04:38 | 显示全部楼层 来自: 中国湖北孝感
没用过  找样本来好好 研究下
发表于 2009-2-24 23:18:31 | 显示全部楼层 来自: 中国福建厦门
这个阀中的恒流阀是用为系统的补油用的,本人非常不同意这样做法非常不节能。  e' c" a: W, R. Z% k9 ?
这个阀在旋挖转中有非常广的应用,为什么呢?  呵呵! 其实也就是为了补油, 为主转,回转和动机头马达补油防吸空用的。
. I  u* i- j6 M6 m6 i对于闭中心系统,马达在卷扬类的且阀回油带背压的应用中,马达要非常处理好吸空问题,否则马达将快速损坏。  
4 v  d6 ]) \8 b  ?2 x    前面我特别提到闭中心系统,大家就要想想开中心了,不论是正流量与负流量,其中位时泵都有40L/min的流量回油箱,这些油液就可作为补油,这是为什么闭中心要有一个恒流阀的原因。不然在旋挖机上如没有其他补油会100%出问题的原因。这是为什么NHL 18与22TNm Linde HMR马达损坏的原因。而在南车时代,宇通还有徐州东明却有非常好作业表现。性能绝不会比RR的A6V HA的马达差。  个人建议是用小齿轮泵补油,因为在泵出口为高压时,在这个恒流阀上40L/min的流量造成的功率损失太大了。
' f+ h% Z1 d' |" g/ q  S8 X3 n/ {$ |: m: b1 ]. z5 p) I: `
     至于下图这个阀是个标配阀,其作为相于Linde的60bar消尖阀。 对于Linde这个是标配,其目的是让系统更稳定。 大家都系统在阀快速回中位机能时。泵从大排量到零排量毕竟要一个时间,为了减小尖峰脉动,其加个60bar消尖阀, 当泵出口压力高于最高负载压力60bar里溢流回油箱。 这样泵出口压力减峰小,压力平稳。 在Linde 1981年开发全球第一个阀后补尝阀时,当时他们的LSC上并没有这个阀,但出在Altas的样机上,测试时发现挖机多变的负载,补尝阀的快速补尝,加上阀蕊的快速启闭,泵噪音比实验工况大,测泵出口压力发现脉动很大,然后在后期LSC阀上添加60bar消尖阀。取得很好效果。  随后力士乐的LUDV,功能上与Linde LSC类似,所以此阀应与Linde 60bar阀类似。 只是我不知力士乐的此阀设定值为多少。但从业界的噪音水平分析,力士乐的噪音比Linde略大,其脉动应更大些,所以其设定值自然不会太小,必不会小于40bar ,如果过小此阀开启时间过长,造成的能量损失会过大。
发表于 2009-3-17 22:35:50 | 显示全部楼层 来自: 中国浙江杭州
同意,第一个阀补充油液,促进循环,不同意泄荷。。。
发表于 2009-3-18 00:15:05 | 显示全部楼层 来自: 中国江苏南通
天啊!我发的错误答复都没有人来批评一下!  在些我更一下一个错误解释!( [. @2 F: D8 B& D) _- n
第一个阀调速流量是0.65L/min,  其目的用来提供系统的动太特性。让LS通路努力处于流动状态,系统中有动作时,其响应速度可以得到提升。3 H& i* Q: ^6 Q
& T+ {( T3 N; _) E
我上一个回复我搞错了!非常不好意思!呵呵!
( S3 k" n9 c( S8 i9 F' z; B! _* p/ p$ f& {/ i. c8 l% Q
另外到于第二个阀我还想补充一点点!就是这个压差阀的弹簧设定压力差不多在25bar左右!  O* D) [! m' K5 G; p* u/ u7 |( G! ?

# c/ Q( C) p7 Y  T4 G, h( s[ 本帖最后由 hkjdtz 于 2009-3-18 00:16 编辑 ]
发表于 2009-3-18 09:38:04 | 显示全部楼层 来自: 中国四川成都
第一个阀我觉得是系统的待命流量阀,就是大家所说的恒流阀,其作用是保证系统在任何时候都有一固定的小流量通过此阀,以提高系统的响应速度和对系统进行冲洗。
发表回复
您需要登录后才可以回帖 登录 | 注册

本版积分规则


Licensed Copyright © 2016-2020 http://www.3dportal.cn/ All Rights Reserved 京 ICP备13008828号

小黑屋|手机版|Archiver|三维网 ( 京ICP备2023026364号-1 )

快速回复 返回顶部 返回列表