QQ登录

只需一步,快速开始

登录 | 注册 | 找回密码

三维网

 找回密码
 注册

QQ登录

只需一步,快速开始

展开

通知     

查看: 6912|回复: 37
收起左侧

[注意] 稀油润滑站的资料

[复制链接]
发表于 2008-5-21 15:08:07 | 显示全部楼层 |阅读模式 来自: 中国四川自贡

马上注册,结识高手,享用更多资源,轻松玩转三维网社区。

您需要 登录 才可以下载或查看,没有帐号?注册

x
谁能提供下稀油润滑站的资料啊?最好是全套的,谢谢了!
发表于 2008-5-21 15:24:50 | 显示全部楼层 来自: 中国安徽马鞍山

回复 1# 的帖子

这个不必求助了,全套?通常都不会给的,如果是设计单位,这就是公司机密;如果是使用单位,也会有侵权嫌疑,一般是不会给的。
发表于 2008-5-22 14:12:16 | 显示全部楼层 来自: 中国四川自贡
呵呵,为什么不可以呢?
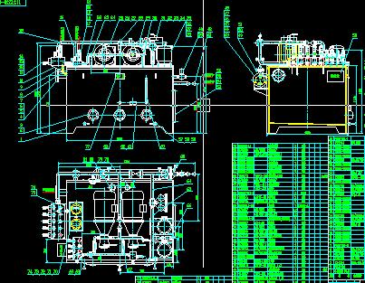
2 ^6 f7 c8 o( [% g! u很多呢,上传一些..
$ d- ^2 P/ c3 Y, l) C9 P! K* _请给个邮箱,我发到你邮箱里,上传到这里不太好...
1.jpg
2.jpg
3.jpg
发表于 2009-5-22 19:21:51 | 显示全部楼层 来自: 中国上海
多谢共享,我也想要
发表于 2009-5-22 23:00:29 | 显示全部楼层 来自: 中国辽宁鞍山
我也想要一份谢谢了
$ d% Q" @: G) o4 Q4 ~6 ]a063609@126.com
发表于 2009-5-23 07:58:33 | 显示全部楼层 来自: 中国河南洛阳
我也想要一份谢谢了' ?) j; y0 [1 Q. V
ldzzg@126.com
发表于 2009-5-23 08:28:15 | 显示全部楼层 来自: 中国内蒙古呼和浩特
谢谢了  我也向要。
' I! V! k" V# |0 l8 k9 z. \% ^; I) Q# Rtaihuricha@163.com
发表于 2009-5-23 09:17:38 | 显示全部楼层 来自: 中国上海

回复 7# taishen12002 的帖子

我也想要一份,谢谢!/ z$ Z2 y* F- F# h# P; B
huangqing0305@163.com
发表于 2009-5-23 10:00:15 | 显示全部楼层 来自: 中国上海
我也要一份,谢谢!zgxhit@163.com
发表于 2009-5-23 13:02:36 | 显示全部楼层 来自: 中国天津
我也想要一份.# C. d( c# i" u+ ~9 _: n' ~
谢谢了.chuntian9966@126.com
发表于 2010-5-10 21:56:34 | 显示全部楼层 来自: 中国湖北鄂州
能给我一份吗?
$ d& T/ w0 q! O- Y5 P8 }非常感谢,wkswwksw@126.com, j% e6 r- _7 Y2 t3 l/ y
我是等着急用,谢谢了
发表于 2010-5-11 07:39:39 | 显示全部楼层 来自: 中国辽宁本溪
我也想要一份谢谢了
: Q8 w9 q( t8 f9 ssbfczgy@126.com
发表于 2010-5-11 08:23:40 | 显示全部楼层 来自: 中国江苏无锡
自流井兄纯爷们!!顶你~  我也正好在做稀油站
8 I. k! ]6 }7 ?6 \+ [0 [非常希望得到一份做参考  raykou1119@yahoo.com.cn: k/ ]/ r* j7 X( D
感谢!!!
发表于 2010-5-11 09:00:46 | 显示全部楼层 来自: 中国北京

.

本帖最后由 engineerlw 于 2010-5-12 11:30 编辑 & T2 t, a9 r' L9 ^; U

. P+ _& k6 r* Y3# 自流井我很想要一份。我的邮箱engineerlw@163.com, R8 ^: c5 m6 x. }( V" ?) F, u
谢谢。
发表于 2010-5-11 16:11:07 | 显示全部楼层 来自: 中国陕西西安
顶你  也发一份到我邮箱啊 mofei310@126.com            谢谢     自流兄!  我做干油 稀油润滑的                         3# 自流井
发表于 2010-5-17 16:02:33 | 显示全部楼层 来自: 中国江苏南京
伙计 给兄弟一份分享下吧 我现在也在搞这块 学习下啊 谢谢wbd_nge@163.com
发表于 2010-5-19 10:44:39 | 显示全部楼层 来自: 中国江苏无锡
我也想要啊,伙计 给兄弟一份分享下吧,谢谢! proe_cad@163.com
发表于 2010-5-19 23:25:54 | 显示全部楼层 来自: 中国广东汕尾
好牛B`````顶S``
发表于 2010-5-20 07:18:41 | 显示全部楼层 来自: 中国河北唐山
3#自流井 能否发一份给我,谢谢。我的邮箱:yangtong828@126.com
发表于 2010-5-20 12:49:13 | 显示全部楼层 来自: 中国上海
我也想要1份,emengtian@sina.com  ,谢谢!
发表于 2011-8-1 17:26:56 | 显示全部楼层 来自: 中国河北唐山
我也想要一份谢谢了。qld0903@sina.com
发表于 2011-8-4 22:22:06 | 显示全部楼层 来自: 美国
wjk8399@163.com) i0 Q; R, M$ g( [, _
是启东的吗?: ]+ t( X5 ?  x, i, ?% e8 t
谢谢,请传我一份。
发表于 2011-8-21 22:04:14 | 显示全部楼层 来自: 中国广东中山
能不能也给我发份呢?谢谢 ,wangjinhua99999@126.com
发表于 2011-8-22 09:10:49 | 显示全部楼层 来自: 中国江苏南京
太厉害了!谢谢楼主
发表于 2011-8-22 10:15:53 | 显示全部楼层 来自: 中国辽宁大连
版主也给我发一份吧~小弟万分感激~~7 e) y) |) M) O8 h5 ?8 J7 E
15940940981@163.com
发表回复
您需要登录后才可以回帖 登录 | 注册

本版积分规则


Licensed Copyright © 2016-2020 http://www.3dportal.cn/ All Rights Reserved 京 ICP备13008828号

小黑屋|手机版|Archiver|三维网 ( 京ICP备2023026364号-1 )

快速回复 返回顶部 返回列表