QQ登录

只需一步,快速开始

登录 | 注册 | 找回密码

三维网

 找回密码
 注册

QQ登录

只需一步,快速开始

展开

通知     

查看: 1471|回复: 7
收起左侧

[求助] 流量阀的锁紧机构

[复制链接]
发表于 2008-5-23 10:18:48 | 显示全部楼层 |阅读模式 来自: 中国安徽合肥

马上注册,结识高手,享用更多资源,轻松玩转三维网社区。

您需要 登录 才可以下载或查看,没有帐号?注册

x
我看到有些流量阀上有一些钥匙的锁紧机构,不知道什么原理,哪位大侠有没有结构图传上来看看啊~~
 楼主| 发表于 2008-5-23 12:59:10 | 显示全部楼层 来自: 中国安徽合肥
继续求助~~~~~~~
发表于 2008-5-23 16:12:13 | 显示全部楼层 来自: 中国河北唐山
至于原理我认为不是很复杂,主要用于防止随意调整流量,当插入钥匙后就可以进行调整,拔出时就不能调整。
 楼主| 发表于 2008-5-23 16:21:19 | 显示全部楼层 来自: 中国安徽合肥
有没有结构图,传上来看看
发表于 2008-5-23 19:57:58 | 显示全部楼层 来自: 中国北京
我想就应该和门锁一样的原理吧,合上扣了之后才能调节!
发表于 2008-5-23 21:15:51 | 显示全部楼层 来自: 中国广东
真想跟你扫描上图来,可在家里没有啊。8 F5 O6 D. U: L6 J+ l) Y0 R
请参见样本啊,如华德和立新的。。
发表于 2008-5-24 22:50:46 | 显示全部楼层 来自: 中国北京
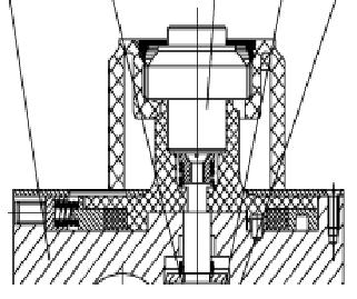
大概有这样的三种,供参照
1.JPG
2.JPG
3.JPG

评分

参与人数 1三维币 +5 收起 理由
9619 + 5 应助

查看全部评分

发表于 2008-5-25 07:54:16 | 显示全部楼层 来自: 中国吉林延边朝鲜族自治州
防止随便调动 和 因为震动大引起的调动
发表回复
您需要登录后才可以回帖 登录 | 注册

本版积分规则


Licensed Copyright © 2016-2020 http://www.3dportal.cn/ All Rights Reserved 京 ICP备13008828号

小黑屋|手机版|Archiver|三维网 ( 京ICP备2023026364号-1 )

快速回复 返回顶部 返回列表