QQ登录

只需一步,快速开始

登录 | 注册 | 找回密码

三维网

 找回密码
 注册

QQ登录

只需一步,快速开始

展开

通知     

全站
3天前
查看: 3128|回复: 13
收起左侧

[已解决] 如下图所示的符号是什么意思?

[复制链接]
发表于 2008-5-23 15:00:30 | 显示全部楼层 |阅读模式 来自: 中国河南信阳

马上注册,结识高手,享用更多资源,轻松玩转三维网社区。

您需要 登录 才可以下载或查看,没有帐号?注册

x
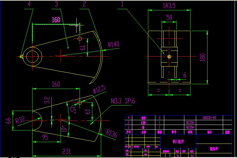
有哪位高手知道,如下图所示的SP.6指的是什么意思?是不是指的是板的厚度?- y9 m$ {) [2 A3 q# E8 [) Y2 V
% K9 e/ k0 `7 d8 Y
[ 本帖最后由 chenjun521208 于 2008-5-26 00:09 编辑 ]
QQ截图未命名.jpg
发表于 2008-5-23 16:43:13 | 显示全部楼层 来自: 中国广东梅州
板厚老的是用字母:δ
# j/ j1 N4 e, ^  r新的标准里是用:t
# v0 b0 E/ u# W1 u! U! m( A$ q9 K7 iSP这里的意思,看不懂,难道是:space?
发表于 2008-5-23 18:27:29 | 显示全部楼层 来自: 中国江苏南通
我理解是表面处理和修复的一种方式,是商业喷砂清理吧。
发表于 2008-5-23 18:29:12 | 显示全部楼层 来自: 中国北京
方便的话还是上全图让大家帮你分析!
 楼主| 发表于 2008-5-23 19:22:21 | 显示全部楼层 来自: 中国河南信阳
原帖由 wuling 于 2008-5-23 18:29 发表 http://www.3dportal.cn/discuz/images/common/back.gif& ~$ K- n, a- P
方便的话还是上全图让大家帮你分析!

9 F4 s9 y) I4 `% E  t) h/ O这个倒没问题,如果看不清,可以把附件(AutoCAD2006的)下载下来看的!
aaa.jpg

016料门组件.rar

40.86 KB, 下载次数: 5

发表于 2008-5-23 22:40:34 | 显示全部楼层 来自: 中国江苏镇江
从图上看好象是厚6 4 m7 I! Y0 s2 F$ F
不知楼下的有没有不同的说法!
发表于 2008-5-24 00:25:34 | 显示全部楼层 来自: 中国重庆
厚度为6左视图中就体现出来了,应该是件数为6件吧!* T0 D$ {$ Y; ~9 Y& p9 W
刚好每两件一组,三组的话组成一个门也是合理的,如果是厚度为6的话,左视图中就不会标出那个6了!+ Y' y7 _% ]7 r5 O
估计做图人是取相同件数的英文单词第一个字母same pice
6 a5 I+ J4 Q  L! Q8 I% t$ }4 ^
7 g' B! S1 u7 P[ 本帖最后由 flxsp 于 2008-5-24 00:27 编辑 ]
 楼主| 发表于 2008-5-24 08:35:05 | 显示全部楼层 来自: 中国河南信阳
但好像又不是,下面还有一个图,还有个SP.5如下图所示:有两处都是这样标注的!
QQ截图未命名.jpg

005(支撑架,套).rar

52.48 KB, 下载次数: 8

发表于 2008-5-24 09:15:14 | 显示全部楼层 来自: 中国陕西商洛
是零件的专配序号吗?
 楼主| 发表于 2008-5-24 10:09:47 | 显示全部楼层 来自: 中国河南信阳
NO.3 这些是零件的序号没错,不过就是不知道SP.5  SP.6是什么意思?
发表于 2008-5-24 10:49:17 | 显示全部楼层 来自: 中国辽宁鞍山
SP.5和SP.6也应该是序号的含义,但可能不是指零件的序号
发表于 2008-5-24 12:02:43 | 显示全部楼层 来自: 中国江苏镇江
SP.5  SP.6就是厚度!我又看你的第二张图。得出的结论!) X8 N' S5 @6 z) W$ v& N9 i
厚5 和 厚6

评分

参与人数 1三维币 +5 收起 理由
woaishuijia + 5 应助

查看全部评分

发表于 2008-5-25 10:45:06 | 显示全部楼层 来自: 中国上海
  是哪个国家的图哦,这样标厚度哦,长见识了~
发表于 2008-5-31 00:28:30 | 显示全部楼层 来自: 中国湖北孝感
我觉得表示的是分解出来的序号3零件的零件图,材料厚度是6mm
发表回复
您需要登录后才可以回帖 登录 | 注册

本版积分规则

Licensed Copyright © 2016-2020 http://www.3dportal.cn/ All Rights Reserved 京 ICP备13008828号

小黑屋|手机版|Archiver|三维网 ( 京ICP备2023026364号-1 )

快速回复 返回顶部 返回列表