QQ登录

只需一步,快速开始

登录 | 注册 | 找回密码

三维网

 找回密码
 注册

QQ登录

只需一步,快速开始

展开

通知     

全站
6天前
查看: 5473|回复: 14
收起左侧

[讨论] 剪叉式升降台设计问题

[复制链接]
发表于 2008-6-3 16:00:05 | 显示全部楼层 |阅读模式 来自: 泰国

马上注册,结识高手,享用更多资源,轻松玩转三维网社区。

您需要 登录 才可以下载或查看,没有帐号?注册

x
剪叉式升降台台面1400X1400,最低高度180,最高750,载重1000KG,能不能做?能做的画需要怎么做,希望大家能给点意见!
发表于 2008-6-3 16:19:50 | 显示全部楼层 来自: 中国浙江温州

回复 1# 的帖子

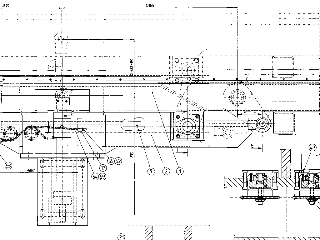
我以前做过一个类似的剪叉式升降台设计,具体的资料我不能给你,但可已给你一个我做的大纲及类似的参考图,具体的设计计算可参考设计手册(如液压元件的选择、计算校核等)。
# d' \: q$ k* j0 j) O4 K: D! c; K2 X 0.jpg ) b7 h: C# h" _
1.jpg
$ o9 s/ E7 u( f* p9 w  _# [ 2.jpg
 楼主| 发表于 2008-6-3 16:33:52 | 显示全部楼层 来自: 泰国

回复 2# 的帖子

谢谢!但关键是最低高度太低,不知道能否升起来
 楼主| 发表于 2008-6-3 16:35:53 | 显示全部楼层 来自: 泰国

回复 2# 的帖子

你好!我可以从哪里得到这些资料呢?
发表于 2008-6-3 17:26:23 | 显示全部楼层 来自: 中国浙江温州

回复 3# 的帖子

高度可以根据条件设计,如采用多节式伸缩液压缸,节数可根据要求设计,能否升起来只要校核通过就行,要根据负载进行计算的,我自己做的资料是不能给你的,你可以去找一些相关文献看看
发表于 2008-6-3 19:45:59 | 显示全部楼层 来自: 中国上海
形式很多,这种也可参考!
Lifting Table.jpg
Lifting Table2.jpg
发表于 2008-6-3 22:16:55 | 显示全部楼层 来自: 中国黑龙江佳木斯
“但关键是最低高度太低,不知道能否升起来”
1 E, |( Q: s/ z1 e. ~挖个地坑怎么样,缸体座可以放在剪叉支座下面吗。角度出来了,支撑就没有问题。
( Y1 n3 S/ k( R! K$ Y9 T7 i3 O180~750是移动距离,不会是升降台的绝对高度吧。
 楼主| 发表于 2008-6-4 08:57:41 | 显示全部楼层 来自: 泰国

回复 7# 的帖子

“挖个地坑怎么样,缸体座可以放在剪叉支座下面吗。角度出来了,支撑就没有问题。9 d9 G) \: a& E. ]+ w
180~750是移动距离,不会是升降台的绝对高度吧。”5 Z0 G/ I4 g" E
挖个地坑也是个方法,不过升降台底座上是安装滚轮的,是在轨道上行走的。底座与地面本身有200的高度。可以让缸体座放在剪叉支座下面试试。升降台降到最低的时候是180,升到最高的时候是750,行程为570。180~750是移动距离,也是升降台的绝对高度。
 楼主| 发表于 2008-6-4 09:00:09 | 显示全部楼层 来自: 泰国

回复 6# 的帖子

这种形式会不会不平稳,我在升降台台面上是装滚筒的
发表于 2008-6-4 09:44:44 | 显示全部楼层 来自: 中国黑龙江佳木斯
回复 8# 的帖子
2 [) N- V6 ^$ p! J2 Q  |: G6 U液压缸支撑需要角度,没有角度支撑需要浪费很多的无用功。! A0 r9 f& W2 K
剪叉式支撑支座的滚轮与液压缸没有关系。
# ]4 t: u: t( |4 V& K/ n: D这种支撑我曾经做过几个设计。
 楼主| 发表于 2008-6-4 14:13:58 | 显示全部楼层 来自: 泰国

回复 10# 的帖子

我所说的滚轮是车轮,不是升降台里面的滚轮。
发表于 2008-7-23 19:21:13 | 显示全部楼层 来自: 中国广东广州
对我有帮助,谢谢了!
发表于 2009-8-25 10:31:38 | 显示全部楼层 来自: 中国江苏苏州
在底座下面放置油缸  就OK
发表于 2009-11-12 11:19:23 | 显示全部楼层 来自: 中国湖南株洲
学习  一下!
发表于 2009-11-23 09:52:11 | 显示全部楼层 来自: 中国辽宁沈阳
设计时的标准主要是能够在不同高度工作状态下快速、慢速行走,可以在空中方便的操作平台连续完成上下、前进、后退、转向等工作。本产品采用优质结构钢,激光焊接电子机械手单面焊接双面成型工艺,航天插装阀技术,平台装有水平报警仪、平衡阀、自动安全板等警报装置,平台安全可靠耐用,作业高度可达12米,载重300公斤,围栏可水平延伸极大的扩展了作业范围,适合工厂车间、广场大堂机场、园区等有高空作业需求的客户。
发表回复
您需要登录后才可以回帖 登录 | 注册

本版积分规则


Licensed Copyright © 2016-2020 http://www.3dportal.cn/ All Rights Reserved 京 ICP备13008828号

小黑屋|手机版|Archiver|三维网 ( 京ICP备2023026364号-1 )

快速回复 返回顶部 返回列表