QQ登录

只需一步,快速开始

登录 | 注册 | 找回密码

三维网

 找回密码
 注册

QQ登录

只需一步,快速开始

展开

通知     

查看: 2808|回复: 14
收起左侧

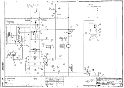
[求助] 取料机斗轮的液压系统图

[复制链接]
发表于 2008-6-7 14:22:39 | 显示全部楼层 |阅读模式 来自: 中国浙江温州

马上注册,结识高手,享用更多资源,轻松玩转三维网社区。

您需要 登录 才可以下载或查看,没有帐号?注册

x
天下第一难的液压系统图纸?这是我们单位从赫格隆引进的一套斗轮液压系统,有几个阀的控制我不是很清楚,想和各位高手研究一下!+ Q. t" s0 y& P$ ~( V3 q( a5 l
希望大家多多支持和帮助啊!
; Q! H7 M% w2 G4 u% ^1 o' i: r5 B) ?/ x: ]3 }: t1 j
[ 本帖最后由 9619 于 2008-6-8 10:21 编辑 ]

斗轮液压图(清晰版).rar

1.35 MB, 下载次数: 61

发表于 2008-6-7 15:38:13 | 显示全部楼层 来自: 中国河南安阳
1.我提楼主贴个图$ H; [( P% ?( e7 R) V
  2.楼主能把具体动作也说明一下吗?http://file:///e://11.gif
11.gif

评分

参与人数 1三维币 +3 收起 理由
9619 + 3 谢谢贴图

查看全部评分

发表于 2008-6-8 00:29:39 | 显示全部楼层 来自: 中国河北唐山
没什么值得大惊小怪的,我们单位取料机斗轮就是这个系统。楼主哪些问题不清楚可以说下。。。
发表于 2008-6-8 00:45:40 | 显示全部楼层 来自: 中国上海
赫格隆做的斗轮机采用的PU里的主闭式泵不是BR的A4VG就是Parker/Denison的金杯系列。如果楼主看过且明白上述两家产品的工作原理,这张图不难看懂啊。

评分

参与人数 1三维币 +2 收起 理由
柠檬咖啡 + 2 参与交流

查看全部评分

发表于 2008-6-8 01:22:19 | 显示全部楼层 来自: 中国浙江宁波
天下第一难的液压系统图纸,算不上吧?
发表于 2008-6-8 04:44:42 | 显示全部楼层 来自: 中国江苏徐州
偶可以说,工程机械类没有太复杂的液压原理
发表于 2008-6-8 05:42:08 | 显示全部楼层 来自: 中国北京
很好的图纸,研究一下 :lol:
发表于 2008-6-8 09:48:34 | 显示全部楼层 来自: 中国福建厦门
楼主从图上看主泵是Denson的Goldcup泵,其功能为比例排量泵,带扭矩控制(压力切断,另外说明一下,这种切断是外部可调的,你在XA及XB口各加一个溢流阀就可以设定其切断压力)。
, d$ `% n+ M5 E! Y& d7 ]% c3 q! m3 }$ _( @
我传了他们的中文样本供您参考!; _) ~# o1 P" K! O0 _9 o

% }8 q6 v3 d" `3 O8 Z3 D+ \1 A; _不过Denson 的价格好像非常贵!呵呵!+ L$ v& u; I$ o! b1 o. a
& o4 C+ d: M* s$ X. |0 n0 s
另外别说这是天下第一难!这个系统并不太复杂!
4 Q0 k! g* N) L8 S' e
* `' B+ d' ^0 b- ?9 C[ 本帖最后由 hkjdtz 于 2008-6-8 09:52 编辑 ]

Gold Cup.part1.rar

1.91 MB, 下载次数: 18

Gold Cup.part2.rar

844.34 KB, 下载次数: 18

评分

参与人数 1三维币 +5 收起 理由
9619 + 5 应助

查看全部评分

 楼主| 发表于 2008-6-9 08:30:11 | 显示全部楼层 来自: 中国浙江温州

就是有些阀搞不懂

谁有更详细的系统元件资料啊!
发表于 2008-10-23 17:53:46 | 显示全部楼层 来自: 中国湖北荆门
我们单位堆取料机的回转部分也是用的HAGGLUNDS(赫格隆)的产品,应该说稳定性很不错,但因配套系统设计和运用维护方面的不足,造成了故障仍不少,特别因对该系统配置的Spider控制箱不熟(没有什么资料),有时一个简单的故障造成很大的困扰,不知哪位朋友能否提供Spider箱的资料,非常感谢!- h: c1 G: K; ^9 X( r  B
lsh444@yeah.net
发表于 2008-10-23 20:22:35 | 显示全部楼层 来自: 中国上海
这个应该不能说很难的吧。具体要问什么你说的清楚点
发表于 2008-10-25 18:15:04 | 显示全部楼层 来自: 中国上海
哪位大虾能讲讲XA,XB口连接的换向阀是如何工作的
发表于 2008-11-24 12:34:22 | 显示全部楼层 来自: 中国广西百色
我很想要 可惜下不了啊·· 急啊
发表于 2008-11-24 12:37:25 | 显示全部楼层 来自: 中国广西百色
找这个资料找的好辛苦啊  好不容易找到个 又下不了·
6 z6 H+ _% h% R谁能发份给我啊    非常感谢( Z, K/ o' z$ H; x% C
hxj8630@qq.com7 r# }$ B: K1 d& K
发表于 2008-11-25 15:27:56 | 显示全部楼层 来自: 中国江苏常州
其实闭式系统很简单的,玩来玩去就是在玩泵哦,只要你把泵搞明白了,你就会懂了,图中的泵应该是丹尼逊的金杯系列泵
发表回复
您需要登录后才可以回帖 登录 | 注册

本版积分规则


Licensed Copyright © 2016-2020 http://www.3dportal.cn/ All Rights Reserved 京 ICP备13008828号

小黑屋|手机版|Archiver|三维网 ( 京ICP备2023026364号-1 )

快速回复 返回顶部 返回列表