QQ登录

只需一步,快速开始

登录 | 注册 | 找回密码

三维网

 找回密码
 注册

QQ登录

只需一步,快速开始

展开

通知     

查看: 4162|回复: 18
收起左侧

[练习题] 【進修級練習題67】

[复制链接]
发表于 2008-6-11 09:10:11 | 显示全部楼层 |阅读模式 来自: 中国台湾

马上注册,结识高手,享用更多资源,轻松玩转三维网社区。

您需要 登录 才可以下载或查看,没有帐号?注册

x
1. a 之長度為何?& m$ M4 F% y( Q3 d: S; e- J# ?; I
   (A) 37.609   (b) 37.690   (C) 37.960. Q) h. ^: y2 X3 s; Q
2. b 之長度為何?& I  S* }% l3 N0 B+ z5 p
    (A) 25.6163   (B) 25.6316   (C) 25.6361
: T( J' F1 z& x3. c 之長度為何?+ e# v7 ^( M# x$ ^& d
    (A) 46.396   (B) 46.639   (C) 46.9366 p2 `; `9 Z& C7 N% [
" n/ s3 f9 m" }" n( i  ~; n
[ 本帖最后由 joseflin 于 2008-6-12 09:20 编辑 ]
Advance67.gif

评分

参与人数 1三维币 +10 收起 理由
woaishuijia + 10 感谢对论坛的支持!

查看全部评分

发表于 2008-6-11 10:55:49 | 显示全部楼层 来自: 中国四川南充

答案

1. a 之長度為何?( ?; S& l9 v: V% E7 H3 X
    (b) 37.690   / A( b  d! Z' P5 \7 J
2. b 之長度為何?
# [' o9 l4 Y! f8 T/ e0 v3 _    (A) 25.6163   5 |& z- g$ U* O. d- r  e
3. c 之長度為何?
$ Y! N, p! b& X7 h+ \. S8 c    (A) 46.369
6 U6 s4 o; a1 f0 I. Y$ T4 ~1 S5 t+ z5 d% a- N9 }
[ 本帖最后由 LPL 于 2008-6-11 12:53 编辑 ]
未命名.JPG

Drawing1.rar

27.3 KB, 阅读权限: 20, 下载次数: 7

评分

参与人数 1三维币 +3 收起 理由
woaishuijia + 3 技术讨论

查看全部评分

发表于 2008-6-11 12:06:28 | 显示全部楼层 来自: 中国黑龙江哈尔滨
1. a 之長度為何?" f( ~  V% j; a
    (b) 37.690   2 r- f3 d# R5 f. ^
2. b 之長度為何?% A' p- u- Z+ Z$ i1 F$ m$ _- v% u
    (A) 25.6163   : f5 X: J1 h! o
3. c 之長度為何?
" f( {; n% a7 w- s4 j: v不知道为什么是46.396
111.png

评分

参与人数 1三维币 +5 收起 理由
woaishuijia + 5 技术讨论

查看全部评分

发表于 2008-6-11 12:29:29 | 显示全部楼层 来自: 中国浙江金华
1. a 之長度為何?    (b) 37.690 * l* H( `. {7 ]: Z2 _* T1 ]4 d; `
* C0 s! _' d8 d& L
2. b 之長度為何?    (A) 25.6163  / }9 Q; Z7 z5 m; G7 _; g0 V; H
, r, m5 F/ \+ n8 j
3. c 之長度為何?' W6 |& [$ V( z0 l) I6 z
    我也跟楼上的一样是c=46.39595815
0 @1 ^- u" X$ A5 n9 p: E! p2 W: _
是不是楼主打错了
, a* g4 I" l9 Q+ Y& Z7 f3 Q 未命名.JPG

评分

参与人数 1三维币 +5 收起 理由
woaishuijia + 5 技术讨论

查看全部评分

发表于 2008-6-11 20:17:13 | 显示全部楼层 来自: 中国河南郑州
進修級練習題67:6 p$ e9 v+ v' f5 A% D; j( x( {+ [
08061120161490.JPG

评分

参与人数 1三维币 +5 收起 理由
woaishuijia + 5 技术讨论

查看全部评分

发表于 2008-6-13 22:28:26 | 显示全部楼层 来自: 中国北京
【進修級練習題67】
1.jpg

评分

参与人数 1三维币 +5 收起 理由
wsj249201 + 5 技术讨论

查看全部评分

发表于 2008-6-14 23:17:10 | 显示全部楼层 来自: 中国江苏南京
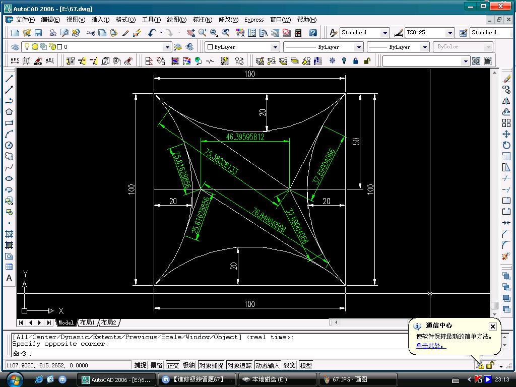
我也做了一个 67.JPG 67.rar (14.31 KB, 下载次数: 0)

评分

参与人数 1三维币 +5 收起 理由
wsj249201 + 5 技术讨论

查看全部评分

发表于 2008-6-16 12:26:26 | 显示全部楼层 来自: 中国江苏南通
题目该换换花样了,
jxjlxt67.jpg

评分

参与人数 1三维币 +5 收起 理由
2005llnn + 5 技术讨论

查看全部评分

 楼主| 发表于 2008-6-16 16:48:24 | 显示全部楼层 来自: 中国台湾
1. 作100x100之正方角形ABCD 2. 作AB弧,AC弧,BD弧和CD弧 3. 作水平線 m 4. 連接AB弧之圓心P和BD弧之圓心Q 5. 以DIVIDE →obj=PQ n=3→將PQ作三等分 6. 延長PQ至R 且取QR=1/3xPQ 7. 以CIRCLE →cen=R r=RB →作#1圓 並與 m 交於E 8. 連接AC弧之圓心S和CD弧之圓心T 9. 以DIVIDE →obj=ST n=8→將ST作八等分 10. 延長TS至K 且取SK=1/8xTS 11. 以CIRCLE →cen=K r=KC →作#2圓 並與 m 交於F 12. 過E分別作BD弧兩側之切線#3和#4 13. 過E作AB弧之切線#5 14. 過F分別作AC弧兩側之切線#6和#7 15. 過F作CD弧之切線#8
Advance67.jpg

评分

参与人数 1三维币 +10 收起 理由
wsj249201 + 10 经验分享

查看全部评分

发表于 2008-6-16 21:49:31 | 显示全部楼层 来自: 中国江西南昌

画画看!!

练习练习!!!
123.jpg

评分

参与人数 1三维币 +5 收起 理由
2005llnn + 5 技术讨论

查看全部评分

发表于 2008-9-8 13:47:57 | 显示全部楼层 来自: 中国
答案:B、A、A
/ r6 s" m9 E; v' w1 F 未命名23.JPG

评分

参与人数 1三维币 +5 收起 理由
2005llnn + 5 很好

查看全部评分

发表于 2008-11-1 17:46:52 | 显示全部楼层 来自: 中国江苏苏州
答案是:B、A、A
jx67.jpg

评分

参与人数 1三维币 +5 收起 理由
2005llnn + 5 很好

查看全部评分

发表于 2008-12-5 12:54:11 | 显示全部楼层 来自: 中国福建厦门
练习练习啦!
未命名.jpg

评分

参与人数 1三维币 +5 收起 理由
2005llnn + 5 很好

查看全部评分

发表于 2009-3-18 14:00:04 | 显示全部楼层 来自: 中国台湾
发表于 2009-9-12 09:56:05 | 显示全部楼层 来自: 中国山东东营
交作业! v: V/ ^1 c7 _. ^; K
http://1
67.GIF

评分

参与人数 1三维币 +3 收起 理由
2005llnn + 3 参与鼓励

查看全部评分

发表于 2013-9-6 13:10:05 | 显示全部楼层 来自: 中国浙江温州
9-6 进修级练习题67
9-6 进修级练习题67.jpg

评分

参与人数 1三维币 +3 收起 理由
2005llnn + 3 参与鼓励

查看全部评分

发表于 2013-11-9 15:01:09 | 显示全部楼层 来自: 中国浙江嘉兴
是不是这样的?
发表于 2013-11-9 15:02:52 | 显示全部楼层 来自: 中国浙江嘉兴
这个这个j kcg
1000.jpg

评分

参与人数 1三维币 +2 收起 理由
2005llnn + 2 参与鼓励

查看全部评分

发表于 2014-3-19 18:01:20 | 显示全部楼层 来自: 中国四川成都
进修674 _8 ?3 n8 a8 n- a3 S
进修67.jpg

评分

参与人数 1三维币 +3 收起 理由
2005llnn + 3 参与鼓励

查看全部评分

发表回复
您需要登录后才可以回帖 登录 | 注册

本版积分规则


Licensed Copyright © 2016-2020 http://www.3dportal.cn/ All Rights Reserved 京 ICP备13008828号

小黑屋|手机版|Archiver|三维网 ( 京ICP备2023026364号-1 )

快速回复 返回顶部 返回列表