QQ登录

只需一步,快速开始

登录 | 注册 | 找回密码

三维网

 找回密码
 注册

QQ登录

只需一步,快速开始

展开

通知     

全站
7天前
查看: 1582|回复: 2
收起左侧

[求助] 圆环状的冲压模具内环尺寸怎么确定

[复制链接]
发表于 2008-6-13 15:49:08 | 显示全部楼层 |阅读模式 来自: 中国北京

马上注册,结识高手,享用更多资源,轻松玩转三维网社区。

您需要 登录 才可以下载或查看,没有帐号?注册

x
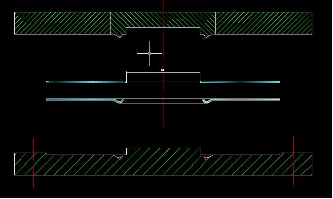
如图所示
0 C2 V# y* R( W' r# T中间的那个φ怎么确定?2 z; E9 ?  F5 X0 V* @' `' y
取中性层的直径???
' }0 w5 O6 K- K* D: f  C( C有什么依据
未命名.JPG

Drawing4.rar

25.98 KB, 下载次数: 4

发表于 2008-6-13 20:14:16 | 显示全部楼层 来自: 中国福建泉州
楼主可参看《冲压模具设计手册》里面的“毛坯尺寸的计算”。
发表于 2008-7-9 19:29:49 | 显示全部楼层 来自: 中国江苏苏州
可以用0.01745X中线层RX角度就得出你所要成型圆弧的展开尺寸,便可算出内圆的尺寸大小
发表回复
您需要登录后才可以回帖 登录 | 注册

本版积分规则


Licensed Copyright © 2016-2020 http://www.3dportal.cn/ All Rights Reserved 京 ICP备13008828号

小黑屋|手机版|Archiver|三维网 ( 京ICP备2023026364号-1 )

快速回复 返回顶部 返回列表