QQ登录

只需一步,快速开始

登录 | 注册 | 找回密码

三维网

 找回密码
 注册

QQ登录

只需一步,快速开始

展开

通知     

查看: 1918|回复: 10
收起左侧

[求助] 能否铸造出来

[复制链接]
发表于 2008-6-16 10:30:01 | 显示全部楼层 |阅读模式 来自: 中国江苏苏州

马上注册,结识高手,享用更多资源,轻松玩转三维网社区。

您需要 登录 才可以下载或查看,没有帐号?注册

x
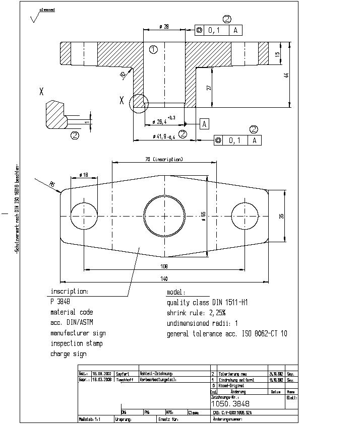
大家好,我现在接到一个询价,里面有一个问题,有几个尺寸,能不能靠铸造保证。请大家看看图纸里面所标的圆圈1和圆圈2处尺寸能否靠铸造来保证?  用硅溶胶铸造能否保证?
6 |3 N8 K4 J3 [" _3 ]+ b
/ @  E# ?2 s9 F8 x0 S4 u[ 本帖最后由 qukewei1980_200 于 2008-6-16 10:35 编辑 ]
1050.3848.JPG
发表于 2008-6-16 11:10:19 | 显示全部楼层 来自: 中国湖南衡阳
硅溶胶铸造最好时可以达到公差四级,根据你的同心度及公差值要达到是有可能的,不过有很大的困难。还不如加工合算。
 楼主| 发表于 2008-6-16 12:39:01 | 显示全部楼层 来自: 中国江苏苏州
我也是这样想的,只是,确定不了,所以才问问兄弟们有没有好的办法。总之谢谢了。
发表于 2008-6-16 13:27:05 | 显示全部楼层 来自: 中国浙江宁波
用覆膜砂试试,如果外观要求不严不如用湿砂造型,在加工内孔
发表于 2008-6-16 13:29:11 | 显示全部楼层 来自: 中国江苏苏州
用覆膜砂做砂心,留0.8mm左右余量就可以了
发表于 2008-6-16 14:28:51 | 显示全部楼层 来自: 中国黑龙江齐齐哈尔
图纸里面所标的圆圈1和圆圈2处尺寸无法靠铸造来保证, 用硅溶胶铸造也不能保证,不要抱有幻想了,还是采取加工的方法。
发表于 2008-6-16 18:05:14 | 显示全部楼层 来自: 中国江苏无锡
0.1的形位公差靠铸造来保证,没什么希望的。
发表于 2008-6-18 11:51:50 | 显示全部楼层 来自: 中国山东潍坊
硅溶胶公差CT4级,铸造有些困难。还是机器加工吧
头像被屏蔽
发表于 2008-6-18 13:35:33 | 显示全部楼层 来自: 中国湖北武汉
提示: 作者被禁止或删除 内容自动屏蔽
发表于 2008-6-18 15:48:09 | 显示全部楼层 来自: 中国河北邢台
0.1形位公差铸造批量生产难保证
发表于 2008-7-4 20:51:40 | 显示全部楼层 来自: 中国四川德阳
单件小批直接铸造成本太高,大批量方法较多
发表回复
您需要登录后才可以回帖 登录 | 注册

本版积分规则


Licensed Copyright © 2016-2020 http://www.3dportal.cn/ All Rights Reserved 京 ICP备13008828号

小黑屋|手机版|Archiver|三维网 ( 京ICP备2023026364号-1 )

快速回复 返回顶部 返回列表