QQ登录

只需一步,快速开始

登录 | 注册 | 找回密码

三维网

 找回密码
 注册

QQ登录

只需一步,快速开始

展开

通知     

查看: 2089|回复: 12
收起左侧

[求助] 大型球铁工艺讨论

[复制链接]
发表于 2008-6-16 17:53:18 | 显示全部楼层 |阅读模式 来自: 中国江苏无锡

马上注册,结识高手,享用更多资源,轻松玩转三维网社区。

您需要 登录 才可以下载或查看,没有帐号?注册

x
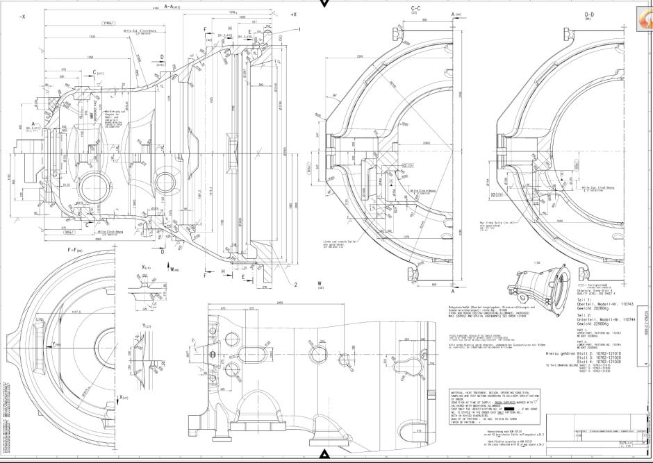
这个铸件首先是分两开做,我们现在是没砂箱,行车和设备都跟得上,但是考虑翻箱比较难,看大家有没有好的方法.铸件一半为17吨,另一半为20吨.感兴趣的可以报一下你们企业的价格,另外还可以报一下木模的价格.说说自己的方案.球铁400的
12.jpg
 楼主| 发表于 2008-6-16 21:02:21 | 显示全部楼层 来自: 中国江苏无锡
怎么就没人参与呢   
头像被屏蔽
发表于 2008-6-16 22:20:45 | 显示全部楼层 来自: 中国广东东莞
提示: 作者被禁止或删除 内容自动屏蔽
发表于 2008-6-17 13:17:45 | 显示全部楼层 来自: 中国湖南株洲
看结构对铸造而言还算是合理的!但我们也没有做过类似这么大的件。
发表于 2008-6-17 14:14:09 | 显示全部楼层 来自: 中国福建漳州
我们也没有做怎么大的经验,无能为力
发表于 2008-6-17 16:22:16 | 显示全部楼层 来自: 中国宁夏银川
我是做木模的,图纸细节看不太清楚,总的看木模。铸造工艺还是比较好解决,如果做木模可以把图纸发给我
 楼主| 发表于 2008-6-17 17:35:14 | 显示全部楼层 来自: 中国江苏无锡
木模可以报个价格,我们想铸件不翻身做,我们就是铸造厂  拜托大家热情讨论
发表于 2008-6-17 19:35:38 | 显示全部楼层 来自: 中国湖北武汉
我们用消失模可以做!; ^2 t& c$ L9 W$ L3 n7 r' A$ c
20吨的件没有问题!
发表于 2008-6-18 21:11:12 | 显示全部楼层 来自: 中国宁夏银川
不翻箱,只用一箱。上边吊芯子,你的图纸很多尺寸看不清楚,没办法给你报价的。还有你的要求是怎样的,是否需要底版,需要的话是什么要的结构和种材质,你的批量有多大?我这里主要用樟子松,红松。
发表于 2008-6-19 12:33:09 | 显示全部楼层 来自: 中国广东深圳
超过20吨的熔化炉也不是一般铸造厂所具备的啊。
发表于 2008-6-20 15:26:04 | 显示全部楼层 来自: 中国北京
这么大的家伙没几个厂家能干的。
发表于 2008-6-26 16:50:28 | 显示全部楼层 来自: 中国辽宁大连
熔炼上应该没有什么问题?看不清尺寸以及你的技术要求!
发表于 2008-6-26 19:32:11 | 显示全部楼层 来自: 中国四川德阳
德阳第二重型机械厂可以做,价格叫高。
发表回复
您需要登录后才可以回帖 登录 | 注册

本版积分规则


Licensed Copyright © 2016-2020 http://www.3dportal.cn/ All Rights Reserved 京 ICP备13008828号

小黑屋|手机版|Archiver|三维网 ( 京ICP备2023026364号-1 )

快速回复 返回顶部 返回列表