QQ登录

只需一步,快速开始

登录 | 注册 | 找回密码

三维网

 找回密码
 注册

QQ登录

只需一步,快速开始

展开

通知     

查看: 8082|回复: 61
收起左侧

[求助] 液压回路的试车问题

[复制链接]
发表于 2008-7-7 22:08:42 | 显示全部楼层 |阅读模式 来自: 中国江西九江

马上注册,结识高手,享用更多资源,轻松玩转三维网社区。

您需要 登录 才可以下载或查看,没有帐号?注册

x
请教各位:
" X- O+ |# x2 r8 v/ D, b) g1 F5 n7 i; x今天在试车过程中,老是不能用液压锁保压,请大家指点啊.
. p  {& v' b5 o% R% u* L, C很急啊.星期三钢院的人要过来A检了,可系统还未试成功..心头慌呀 :L
1.jpg
2.jpg
3.jpg
4.jpg
5.jpg
6.jpg
 楼主| 发表于 2008-7-7 22:12:56 | 显示全部楼层 来自: 中国江西九江
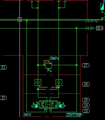
这是原理图,
% U9 Q& U9 }+ F主要在A口的28MPa溢流阀上的问题,试的时候总不能锁死压力,压力会往下掉,很快的/ _$ o/ M) _4 z
是不是不能在液压锁后面加溢流阀呢?
& Y& |* G- d1 T$ R同行们有没有遇到过类似的情况
7.jpg

转运小车液压系统原理图-连退系统.rar

213.45 KB, 下载次数: 66

 楼主| 发表于 2008-7-7 22:15:56 | 显示全部楼层 来自: 中国江西九江
是不是这样的设计有问题?还是可以.因为液压锁上来是溢流阀限定了压力,溢流阀是否会锁不死,造成液压锁也没作用了..
9.jpg
发表于 2008-7-7 22:21:15 | 显示全部楼层 来自: 中国湖南长沙
不能选择滑阀式溢流阀,否则泄露严重,不能保压

评分

参与人数 1三维币 +1 收起 理由
晨砂 + 1 技术讨论

查看全部评分

 楼主| 发表于 2008-7-7 22:26:54 | 显示全部楼层 来自: 中国江西九江
原帖由 fisherliu 于 2008-7-7 22:21 发表 http://www.3dportal.cn/discuz/images/common/back.gif% F2 M) U% F6 n0 R( x  i3 T1 @
不能选择滑阀式溢流阀,否则泄露严重,不能保压
# {9 A6 G. s' {% t  {* T- {
是上海力新的ZBD10VA2-30/31.5叠加式溢流阀
1 i! @9 ~6 {. k+ }7 y  w( ^% R- K难道有什么问题吗?
1.jpg
 楼主| 发表于 2008-7-7 22:29:57 | 显示全部楼层 来自: 中国江西九江
原帖由 fisherliu 于 2008-7-7 22:21 发表 http://www.3dportal.cn/discuz/images/common/back.gif
4 h: E/ h: B, s& M9 L不能选择滑阀式溢流阀,否则泄露严重,不能保压

2 j; d! M. L! L  |% X' P0 S请问:你有实际的经验吗?我是说这个阀芯的类型的..
" R, k2 w. _' M4 D# d3 T谢谢啊
发表于 2008-7-7 23:52:18 | 显示全部楼层 来自: 中国湖北武汉
将叠加式溢流阀去掉试一下,就知道是否与溢流阀有关,
. e1 l' c1 O- a9 D4 _% U. ]& `问一下,电机与泵之间的通油管方盒是什么? 是利用电机旋转的风冷吗,不象阿,散热孔小阿

评分

参与人数 1三维币 +2 收起 理由
晨砂 + 2 技术讨论

查看全部评分

发表于 2008-7-8 06:59:04 | 显示全部楼层 来自: 中国上海
压力阀放在液控单向阀的上面去吧。很有可能是溢流阀的原因。不过不排除液控单向阀质量问题。液控单向阀不保压是个非常常见的问题。也可以换液控单向阀试试

评分

参与人数 1三维币 +2 收起 理由
晨砂 + 2 技术讨论

查看全部评分

发表于 2008-7-8 07:04:04 | 显示全部楼层 来自: 中国江苏无锡
我建议您选用ZDBD 10A-L1X/31.5试一试,如果好的话,能发个消息告诉我吗?
发表于 2008-7-8 08:32:10 | 显示全部楼层 来自: 中国河北沧州
可能是你的比例阀导致液压琐关不死,可以查一查比例阀导致的背压以及液压锁的面积比

评分

参与人数 1三维币 +2 收起 理由
晨砂 + 2 技术讨论

查看全部评分

发表于 2008-7-8 09:00:08 | 显示全部楼层 来自: 中国甘肃金昌
从原理图上看没有问题,再看关键阀的选择上有无不合理的匹配,接着用排除法逐一检验关键阀的质量好坏。遇事不要慌,要相信自己。

评分

参与人数 1三维币 +2 收起 理由
晨砂 + 2 技术讨论

查看全部评分

发表于 2008-7-8 09:12:06 | 显示全部楼层 来自: 中国北京
看看自流井啊 呵呵 个人意见将叠加式溢流阀和液压锁换位置(或者不用,因为那毕竟只起到保险丝的作用啊),然后再试车看看2 D+ a' b# j  ~% Q$ A& S: c1 c
ktr的联轴器怎么长得那个样子啊 还是另有玄机? 以前用过液压马达驱动的风冷 不知和你的是否有些类似啊  B% w* g4 L# n' ^4 G: @
原理图中11、12那一路是干什么用的啊 清洗油路? 不理解请指教啊

评分

参与人数 1三维币 +2 收起 理由
晨砂 + 2 技术讨论

查看全部评分

发表于 2008-7-8 09:25:52 | 显示全部楼层 来自: 中国河北唐山
楼主所说的无法保压是什么情况下产生的,依据图纸的分析:系统只有在小车在停止时处于卸荷状态,停止后小车自动下降,建议检查油缸是否存在内泄,如无可以将27溢流阀压力提高。希望和老兄多多联系QQ:33259231

评分

参与人数 1三维币 +3 收起 理由
晨砂 + 3 技术讨论

查看全部评分

发表于 2008-7-8 09:38:19 | 显示全部楼层 来自: 中国浙江宁波
赞同10#的看法,可以换个普通电磁阀看看,以便排除是否由比例电磁阀在保压时,阀芯没有在中位,液压锁背压大引起液压锁不能保压

评分

参与人数 1三维币 +2 收起 理由
晨砂 + 2 技术讨论

查看全部评分

发表于 2008-7-8 11:06:16 | 显示全部楼层 来自: 中国河南郑州
设计时是可以在液压锁后加溢流阀进行二次限压的;如果是缸的速度太快,应注意油缸的缓冲,可能停止时,冲击力引起溢流阀泄荷,而引起下行;如果是长时间停止时液压锁锁不住,就是液压锁的问题,管路回油的背压也可能引起液压锁封闭不严,引起下行,需要认真分析。

评分

参与人数 1三维币 +3 收起 理由
晨砂 + 3 技术讨论

查看全部评分

 楼主| 发表于 2008-7-8 22:08:03 | 显示全部楼层 来自: 中国广东
原帖由 奥凯 于 2008-7-7 23:52 发表 http://www.3dportal.cn/discuz/images/common/back.gif
3 {9 u3 {& X1 f! p* z将叠加式溢流阀去掉试一下,就知道是否与溢流阀有关,, A7 J# V2 k; J1 ^& @
问一下,电机与泵之间的通油管方盒是什么? 是利用电机旋转的风冷吗,不象阿,散热孔小阿

5 \8 ^) k* u/ |  ?  b! }$ m试过了,去掉溢流阀后就行了: I$ j  {# a  L6 e- X+ r
可是问题是为什么呢?! W. q5 X& ?8 m" m1 [
是风冷器
 楼主| 发表于 2008-7-8 22:08:44 | 显示全部楼层 来自: 中国广东
原帖由 46792974 于 2008-7-8 06:59 发表 http://www.3dportal.cn/discuz/images/common/back.gif8 z) ~+ c0 V2 B7 n6 b0 d/ O. r
压力阀放在液控单向阀的上面去吧。很有可能是溢流阀的原因。不过不排除液控单向阀质量问题。液控单向阀不保压是个非常常见的问题。也可以换液控单向阀试试
6 F$ N+ s0 m/ x' a; J
就是啊,液压锁没问题。试过了的
 楼主| 发表于 2008-7-8 22:09:22 | 显示全部楼层 来自: 中国广东
原帖由 ZJLO 于 2008-7-8 07:04 发表 http://www.3dportal.cn/discuz/images/common/back.gif
5 q% r7 [3 s+ T$ }% ]9 _6 H我建议您选用ZDBD 10A-L1X/31.5试一试,如果好的话,能发个消息告诉我吗?

3 t# e6 [& ^  F你好,也不行啊,换了华德的31。5MP的试也不行
 楼主| 发表于 2008-7-8 22:10:00 | 显示全部楼层 来自: 中国广东
原帖由 david20078 于 2008-7-8 08:32 发表 http://www.3dportal.cn/discuz/images/common/back.gif) ]% N! R8 G# P/ u1 t' _# R9 b
可能是你的比例阀导致液压琐关不死,可以查一查比例阀导致的背压以及液压锁的面积比

9 X; D3 L: s0 d没有用比例阀,试车时把比例阀换成了普通阀用的
 楼主| 发表于 2008-7-8 22:10:50 | 显示全部楼层 来自: 中国广东
原帖由 zcc0319 于 2008-7-8 09:00 发表 http://www.3dportal.cn/discuz/images/common/back.gif
1 z8 A8 @9 z7 i4 X/ O从原理图上看没有问题,再看关键阀的选择上有无不合理的匹配,接着用排除法逐一检验关键阀的质量好坏。遇事不要慌,要相信自己。
$ |: b. J0 V6 J* o+ }
YES,我没有慌啊。
( S9 }7 J7 ~- m, L6 u我从每一阀的牵连都考虑了的
 楼主| 发表于 2008-7-8 22:13:04 | 显示全部楼层 来自: 中国广东
原帖由 zuozuo520 于 2008-7-8 09:12 发表 http://www.3dportal.cn/discuz/images/common/back.gif
- b: O" |& `3 u5 V3 C* M  ^4 l1 A看看自流井啊 呵呵 个人意见将叠加式溢流阀和液压锁换位置(或者不用,因为那毕竟只起到保险丝的作用啊),然后再试车看看
. s$ ^6 n4 b" m3 O2 \+ Dktr的联轴器怎么长得那个样子啊 还是另有玄机? 以前用过液压马达驱动的风冷 不知和你的是 ...

- \: ~2 h# B) o6 L$ B呵呵,换了没有用啊,这个也想到了,试了的
/ U- e7 ?  ^) N/ x3 g+ m, D是KIR的风冷
; @7 V' d3 g& @) F  D. s( @+ _
. v  E. s7 }- u/ n3 Q另一路是两能级压力啊
# G) x, N3 M  `; a6 R- P9 e1为6MP+ w, ]5 k6 s% v9 L! n3 F
2为27MP啊
 楼主| 发表于 2008-7-8 22:15:19 | 显示全部楼层 来自: 中国广东
原帖由 fnwwxl 于 2008-7-8 09:25 发表 http://www.3dportal.cn/discuz/images/common/back.gif
$ e; U9 g9 F5 M2 @( l' z8 D楼主所说的无法保压是什么情况下产生的,依据图纸的分析:系统只有在小车在停止时处于卸荷状态,停止后小车自动下降,建议检查油缸是否存在内泄,如无可以将27溢流阀压力提高。希望和老兄多多联系QQ:33259231

' r, q1 g; h7 D3 @' ^5 ]油缸没问题,检查过了: i/ a. B7 O% ^! f
溢流阀锁死后也不行。: k% W" |+ M$ X1 X+ c

- D0 w& q8 B& v$ p$ M呵呵,,已加你了
 楼主| 发表于 2008-7-8 22:17:16 | 显示全部楼层 来自: 中国广东
原帖由 wxg0490 于 2008-7-8 09:38 发表 http://www.3dportal.cn/discuz/images/common/back.gif
6 T5 [- _% _4 p, O: @( v赞同10#的看法,可以换个普通电磁阀看看,以便排除是否由比例电磁阀在保压时,阀芯没有在中位,液压锁背压大引起液压锁不能保压

2 h9 g0 {. A$ ]已换过了,还是不行  V) I  n  O' ~/ \7 @
感谢。
 楼主| 发表于 2008-7-8 22:22:57 | 显示全部楼层 来自: 中国广东
原帖由 张红军 于 2008-7-8 11:06 发表 http://www.3dportal.cn/discuz/images/common/back.gif
" f! z4 Q2 v, F1 ]设计时是可以在液压锁后加溢流阀进行二次限压的;如果是缸的速度太快,应注意油缸的缓冲,可能停止时,冲击力引起溢流阀泄荷,而引起下行;如果是长时间停止时液压锁锁不住,就是液压锁的问题,管路回油的背压也可能 ...
7 t" u$ ]( N, R8 O5 E
是的,这几种可能都存在,但基本上一一排除了的2 ]+ O! J; X) D5 z9 O! T' ?
谢谢你的分享
; D4 U8 k3 I# p6 {初步怀疑是溢流阀的问题。
发表于 2008-7-8 22:26:42 | 显示全部楼层 来自: 中国安徽合肥
阀块油道打错了。
发表回复
您需要登录后才可以回帖 登录 | 注册

本版积分规则

Licensed Copyright © 2016-2020 http://www.3dportal.cn/ All Rights Reserved 京 ICP备13008828号

小黑屋|手机版|Archiver|三维网 ( 京ICP备2023026364号-1 )

快速回复 返回顶部 返回列表