QQ登录

只需一步,快速开始

登录 | 注册 | 找回密码

三维网

 找回密码
 注册

QQ登录

只需一步,快速开始

展开

通知     

查看: 3027|回复: 18
收起左侧

[讨论] 这里一定要画破断线吗?

[复制链接]
发表于 2008-7-17 11:22:56 | 显示全部楼层 |阅读模式 来自: 中国广东佛山

马上注册,结识高手,享用更多资源,轻松玩转三维网社区。

您需要 登录 才可以下载或查看,没有帐号?注册

x
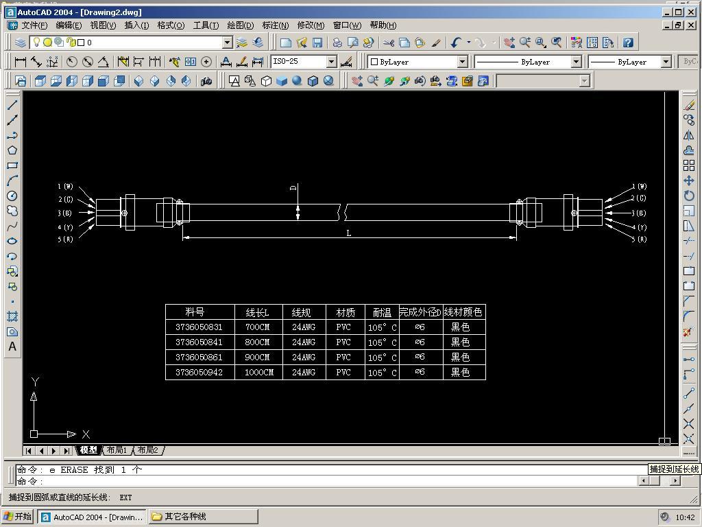
我画了这样一张线材的图纸,比例是任意的,但我们老大说中间一定要画破断线,请问一下各位大哥的意见,谢谢了。
未命名.JPG
头像被屏蔽
发表于 2008-7-17 11:47:21 | 显示全部楼层 来自: 中国河北衡水
提示: 作者被禁止或删除 内容自动屏蔽
发表于 2008-7-17 12:21:43 | 显示全部楼层 来自: 中国安徽蚌埠
应该不用画也可以, 因为标的是L有说明。
发表于 2008-7-17 12:25:53 | 显示全部楼层 来自: 中国湖北孝感
最好还是画上吧。
发表于 2008-7-17 13:38:23 | 显示全部楼层 来自: 中国辽宁鞍山
如果整张图是按比例画的,则应该画断开符,如整张图比例是任意的则画不画没有意义
发表于 2008-7-17 13:40:23 | 显示全部楼层 来自: 中国广东东莞
画上显得完整
 楼主| 发表于 2008-7-20 13:20:02 | 显示全部楼层 来自: 中国广东佛山
我也这样认为,既然没有比例画与不画不是一样呀。
发表于 2008-7-20 14:18:58 | 显示全部楼层 来自: 中国广东梅州
对于比较细长的杆件,采用此类破断视图,可以节约点空间吧4 W' z( K4 U* ]. f  p2 W
破断线可以是双点划线,折线,和细曲线
发表于 2008-7-20 15:07:08 | 显示全部楼层 来自: 中国湖北武汉
支持楼上的说法 学习
发表于 2008-7-20 15:20:09 | 显示全部楼层 来自: 中国上海
画图还是规范点好,否则看图的人会认为你学艺不精
发表于 2008-7-20 20:36:31 | 显示全部楼层 来自: 中国山东枣庄
我感觉还是画的好,这样看着协调些
头像被屏蔽
发表于 2008-7-20 20:44:11 | 显示全部楼层 来自: 中国福建厦门
提示: 作者被禁止或删除 内容自动屏蔽
发表于 2008-7-20 22:51:46 | 显示全部楼层 来自: 中国广东东莞
画下好点.反正不是很麻烦..让别人看也更明了点
发表于 2008-7-20 22:56:41 | 显示全部楼层 来自: 中国台湾
不談正規的畫法," j) z" G" R( j9 A3 B
如果非一比一的尺寸,建議畫上比較好!
发表于 2008-7-21 19:16:12 | 显示全部楼层 来自: 中国湖北鄂州
画上应该好些~
发表于 2008-7-21 21:36:51 | 显示全部楼层 来自: 中国浙江绍兴
按照国标来说,是应该画上的,
' x. [7 N5 v2 I0 \, _1 w) Z% X不过如果说公司不注重这些画与不画是一个样的.只要有长度尺寸就可以了.
发表于 2008-7-22 07:15:37 | 显示全部楼层 来自: 中国山东威海
如果不是按比例画的图,个人认为没必要加分断线
发表于 2008-7-22 07:50:28 | 显示全部楼层 来自: 中国江苏南京
你画的这张图,比例虽是任意的,但d=%%c6和L=100~900cm,应该要协调,所以你们老大说中间一定要画破断线是有道理的
发表于 2008-7-22 08:02:30 | 显示全部楼层 来自: 中国山东青岛
按照规范来做,应该是要画的
发表回复
您需要登录后才可以回帖 登录 | 注册

本版积分规则


Licensed Copyright © 2016-2020 http://www.3dportal.cn/ All Rights Reserved 京 ICP备13008828号

小黑屋|手机版|Archiver|三维网 ( 京ICP备2023026364号-1 )

快速回复 返回顶部 返回列表