QQ登录

只需一步,快速开始

登录 | 注册 | 找回密码

三维网

 找回密码
 注册

QQ登录

只需一步,快速开始

展开

通知     

查看: 2873|回复: 8
收起左侧

[讨论] 先导式安全阀的先导阀

[复制链接]
发表于 2008-7-25 20:32:13 | 显示全部楼层 |阅读模式 来自: 中国福建泉州

马上注册,结识高手,享用更多资源,轻松玩转三维网社区。

您需要 登录 才可以下载或查看,没有帐号?注册

x
上传先导式安全阀的先导阀,那位高手能分析该阀的作用原理和调节方法. n' E% g: w$ Y. X; D2 H5 w
先导阀1 z5 Y! C" {2 t, G3 L
未标题-2.jpg / @6 K: ~4 A( a: g5 R! F% R
先导阀阀芯照片
8 |' u$ _1 N8 o8 y6 P IMG0079A.jpg IMG0080A.jpg
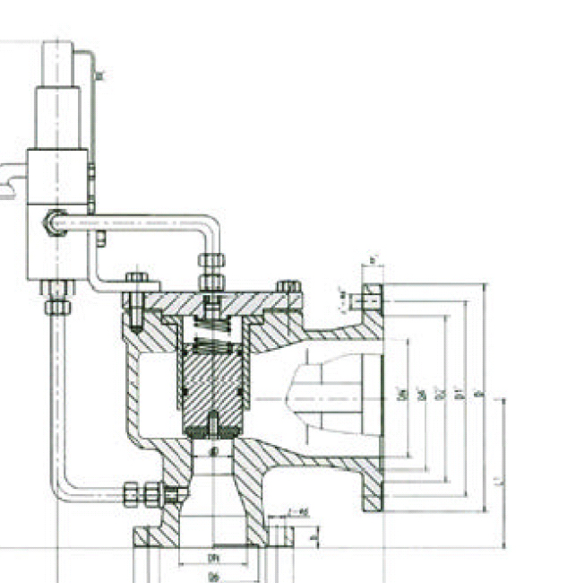
" G/ m* n1 _+ Q主阀6 D% L' P5 t  K9 K. B0 T
主阀.jpg
0 h' i) ~: ]5 y( ^
' T. y9 i6 n) B2 S( U% n9 }$ M[ 本帖最后由 dy110 于 2008-7-25 22:01 编辑 ]

评分

参与人数 1三维币 +2 收起 理由
自流井 + 2 不错,是什么阀?

查看全部评分

发表于 2008-7-25 21:21:38 | 显示全部楼层 来自: 中国四川绵阳
最后一张才是问题所在,是什么阀呀?安全阀?
8 Q. ]6 h5 {2 t* `0 h- h: s/ H0 j' D不是油用的吗?
 楼主| 发表于 2008-7-25 21:32:20 | 显示全部楼层 来自: 中国福建泉州
对是安全阀,压力容器用。关键是先导阀怎么调节,才能使该阀在设定的压力起跳,压力将到一定程度又迅速关闭。最后一张图的左上部分用管路连接的就是先导阀。
% q+ K% y, K* N2 l1 U. a
1 m( B# B# u3 r( ^( N[ 本帖最后由 dy110 于 2008-7-25 21:34 编辑 ]
发表于 2008-7-25 21:39:09 | 显示全部楼层 来自: 中国四川绵阳
这个跟液压用的先导式溢流阀或先导式阀基本一样。
# F' |0 p$ ?3 G" Q先导,先导。油液先进入此条支路。再由此阀控制主阀。! U3 k( A7 q9 E$ f& I1 W
压力容器啊。这个还是会有区别吧
 楼主| 发表于 2008-7-25 22:10:55 | 显示全部楼层 来自: 中国福建泉州
是的有区别,液压用溢流阀的先导阀允许连续向回油管路排油。而该阀的先导阀不能连续向大气排气(主要是介质为化学气体或珍贵气体)。如果向排气管路排的话,排气管路的压力波动对安全阀的设定压力影响太大,容易引发安全事故。
发表于 2008-7-26 20:54:58 | 显示全部楼层 来自: 中国上海
分主阀和先导阀。0 f8 K8 L, E' Z- A, K" z1 a
主阀研磨后试压。
/ S4 ]: {$ v5 s( K$ T% o: z先导阀也是个安全阀,上安全阀校验台试压校验。
: ^# _) E( K9 W2 u% e# h% _9 L( h
它一般用在蒸汽管道上,管道直径大,直接用普通安全阀:1体积大、费用大,2冲击大,且容易造成弹簧受载太大疲劳。因此大口径一般用先导式,我记得还有一种叫脉冲式。这几种是安全阀中2种,其他有“弹簧式、杠杆式等等

评分

参与人数 1三维币 +3 收起 理由
柠檬咖啡 + 3 应助

查看全部评分

 楼主| 发表于 2008-7-27 19:24:37 | 显示全部楼层 来自: 中国福建泉州
谢谢6楼的朋友指教,请问是否只要对先导阀进行定压就可以了?
发表于 2008-7-28 11:04:46 | 显示全部楼层 来自: 中国河北唐山
楼上的这位朋友怎末啦?这里可不是天涯、猫扑之类的坛子
发表于 2008-9-5 17:29:35 | 显示全部楼层 来自: 中国辽宁沈阳
第一张图看不清楚
) k& d% |  P$ \' B* b最后一张图里阀芯处好象没有阻尼孔啊?
发表回复
您需要登录后才可以回帖 登录 | 注册

本版积分规则


Licensed Copyright © 2016-2020 http://www.3dportal.cn/ All Rights Reserved 京 ICP备13008828号

小黑屋|手机版|Archiver|三维网 ( 京ICP备2023026364号-1 )

快速回复 返回顶部 返回列表