QQ登录

只需一步,快速开始

登录 | 注册 | 找回密码

三维网

 找回密码
 注册

QQ登录

只需一步,快速开始

展开

通知     

查看: 3466|回复: 13
收起左侧

[已解决] 如何测量内球面

[复制链接]
发表于 2008-8-1 16:19:35 | 显示全部楼层 |阅读模式 来自: 中国安徽滁州

马上注册,结识高手,享用更多资源,轻松玩转三维网社区。

您需要 登录 才可以下载或查看,没有帐号?注册

x
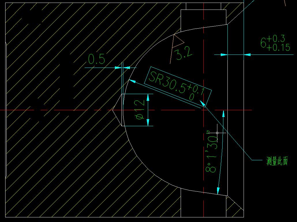
如果一个球面在一个盲孔的一侧如何进行它的半径的测量
发表于 2008-8-1 16:23:05 | 显示全部楼层 来自: 中国浙江温州
如果球面尺寸精度不高,可做样板进行测量,如精度较高且批量生产应买一台三座标测量仪来测。
发表于 2008-8-1 16:44:10 | 显示全部楼层 来自: 中国广东深圳
楼主,可否把你的图纸上传?如果要保密那就算啦。。。
发表于 2008-8-1 17:09:43 | 显示全部楼层 来自: 中国上海
LZ所说“在一个盲孔的一侧”意思,我猜是指“在盲孔底部”吧?
2 g( }5 }5 b, z7 P这就引出一个令我好奇的问题,这样的结构有何用途呢?
7 ?% z( i. B% Z& q0 U4 \8 n希望LZ能解我之惑。( b/ Z9 f$ p1 N5 g8 X! O
如果只是天马行空,随便问问,建议下回别问类似问题!
# t* i& u8 U% P6 |$ {. E" {# H6 p8 m并非针对LZ一人,只是发现论坛中这种问题很多,没有意义且浪费感情。
3 q; C# B0 j- i6 [% H3 s希望大家都能自我约束,不要纯粹为了积分提问或回答问题。
: M! v% o& N3 s1 v) E2 Y如果我错了或因此冒犯了LZ,我向你道歉。

评分

参与人数 1三维币 +5 收起 理由
userkypdy + 5 积极参与

查看全部评分

发表于 2008-8-1 21:18:15 | 显示全部楼层 来自: 中国北京
孔大的话用卡尺或千分尺,孔小的话就只有抽样破检了

评分

参与人数 1三维币 +5 收起 理由
userkypdy + 5 积极参与

查看全部评分

发表于 2008-8-2 11:26:23 | 显示全部楼层 来自: 中国山西太原
非常赞成4#的建议,也发现论坛内类似的问题很多,若有实际意义,大家多想办法解决是值得的,若不是浪费了大家的宝贵时间太可惜了。也没有图让大家猜,我的理解是在盲孔底部的侧面上加工一个球形孔,那是如何加工出来的呢?最好能传个图上来,就不用大家来猜了。% o+ R/ L  [* L. a' F. J

! C5 I. g9 g7 J7 s6 |- P$ z[ 本帖最后由 gaoyns 于 2008-8-2 16:43 编辑 ]

评分

参与人数 1三维币 +5 收起 理由
userkypdy + 5 积极参与

查看全部评分

 楼主| 发表于 2008-8-2 15:20:40 | 显示全部楼层 来自: 中国安徽合肥

我到现在还不知道怎么上传图片

我也想把图片传上来,我也很着急: O% g/ Q( S3 d3 |* ^
' J8 I' w3 o: O- q+ z9 {
[ 本帖最后由 jianzhonggus 于 2008-8-3 06:50 编辑 ]
1220.JPG
发表于 2008-8-2 16:44:54 | 显示全部楼层 来自: 中国山西太原

回复 7# 的帖子

将图片转成JPG文件,编辑帖子,按“浏览”找到要上传的图片打开,“编辑帖子”就上来了。
发表于 2008-8-2 17:08:24 | 显示全部楼层 来自: 中国江苏常州
给个图把5 y) E5 Z& W& y+ S- w6 _
有的时候讨论半天什么都不是
发表于 2008-8-3 22:40:49 | 显示全部楼层 来自: 中国江苏苏州
采用如图的工具可以很好的解决这一问题
1 Y) f: }8 W! l) M# M她是利用定位块作为玄长L从百分表反映玄高H的原理制成。使用时根据公式求得 玄高H的数值后用等于该尺寸的块规或塞规在百分表得一个度数定值。测量时让度数符合一至即半径达到要求
4 b; d: P7 [9 j8 p
) Z3 b1 |. X# _2 O8 O3 }' ^' k2 _+ J! n
未命名.jpg

评分

参与人数 1三维币 +10 收起 理由
userkypdy + 10 应助

查看全部评分

发表于 2008-8-12 14:28:38 | 显示全部楼层 来自: 中国江苏无锡
楼上的这个简图有点测内球面半径检具的味道.这是检具的一部分.

评分

参与人数 1三维币 +5 收起 理由
userkypdy + 5 积极参与

查看全部评分

发表于 2008-8-12 19:40:48 | 显示全部楼层 来自: 中国福建泉州
楼主的图纸类似于轴承球座的加工方法,SR30.5+0.1的公差要求并不高,可以直接卡板测量:
6 d9 G) H( l! _, C6 P线切割加工卡板,板料最好薄的0.3~0.5mm,一大一小进行检验;大的尺寸为R30.6,小的尺寸为30.5mm。------我司的习惯做法。

评分

参与人数 1三维币 +5 收起 理由
userkypdy + 5 应助

查看全部评分

发表于 2008-8-12 19:53:03 | 显示全部楼层 来自: 新加坡
看不懂了晕啊 :funk: :funk:
发表于 2008-8-12 21:03:46 | 显示全部楼层 来自: 中国江苏无锡
可以用检验球测量,球径一个上差的,一个下差的

评分

参与人数 1三维币 +5 收起 理由
userkypdy + 5 积极参与

查看全部评分

发表回复
您需要登录后才可以回帖 登录 | 注册

本版积分规则


Licensed Copyright © 2016-2020 http://www.3dportal.cn/ All Rights Reserved 京 ICP备13008828号

小黑屋|手机版|Archiver|三维网 ( 京ICP备2023026364号-1 )

快速回复 返回顶部 返回列表