QQ登录

只需一步,快速开始

登录 | 注册 | 找回密码

三维网

 找回密码
 注册

QQ登录

只需一步,快速开始

展开

通知     

全站
2天前
查看: 2348|回复: 10
收起左侧

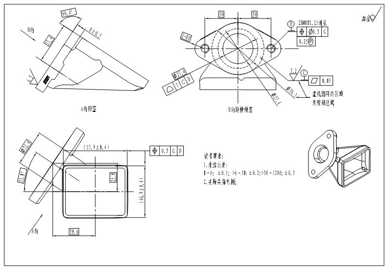
[已解决] 位置度检具的设计

 关闭 [复制链接]
发表于 2008-8-20 09:33:00 | 显示全部楼层 |阅读模式 来自: 中国河北石家庄

马上注册,结识高手,享用更多资源,轻松玩转三维网社区。

您需要 登录 才可以下载或查看,没有帐号?注册

x
如图如何设计一个检具检测位置度0.3|C|D, 11.pdf (81.06 KB, 下载次数: 50)
发表于 2008-8-20 10:06:45 | 显示全部楼层 来自: 中国河南安阳
你的附件是收费的啊
发表于 2008-8-20 10:57:39 | 显示全部楼层 来自: 中国广东深圳
楼主,你的pdf的附件可否直接上传?。。。。
发表于 2008-8-20 12:01:30 | 显示全部楼层 来自: 中国广东珠海
用三坐标可以直接测量。

评分

参与人数 1三维币 +3 收起 理由
华氏911 + 3 应助

查看全部评分

发表于 2008-8-20 14:33:40 | 显示全部楼层 来自: 中国浙江宁波
一般应用最大实体原则设计。
发表于 2008-8-20 15:34:48 | 显示全部楼层 来自: 中国山西太原
替楼主贴个图。此件作检具较麻烦,建议用三座标测量仪测量。
位置度检测.jpg

评分

参与人数 1三维币 +3 收起 理由
华氏911 + 3 应助

查看全部评分

发表于 2008-8-20 15:43:26 | 显示全部楼层 来自: 中国山东烟台
如果只是做合格检具,不是很麻烦,如果是做测量检具就麻烦点了。

评分

参与人数 1三维币 +5 收起 理由
userkypdy + 5 应助

查看全部评分

发表于 2008-8-20 16:39:10 | 显示全部楼层 来自: 中国香港
就形位误差的测量而言,其中位置度的测量是最困难的,国标中只是给出了测量原理。在实际生产中都是依靠高精度的夹具来保证被加工要素的位置误差的。

评分

参与人数 1三维币 +3 收起 理由
华氏911 + 3 技术讨论

查看全部评分

发表于 2008-8-20 16:43:24 | 显示全部楼层 来自: 中国广东中山
三维坐标测量仪各家公司的都拿过去比较下?
 楼主| 发表于 2008-8-22 15:50:58 | 显示全部楼层 来自: 中国河北石家庄
一年要30多万件,三座标测量根本行不通!!只是做合格的检具,7楼的有何高见,希望赐教!!谢谢!非常着急!!
发表于 2009-6-9 19:31:28 | 显示全部楼层 来自: 中国上海
如一年加工30多万件,还是做检具好些,就是别太复杂,操作起来不方便,
发表回复
您需要登录后才可以回帖 登录 | 注册

本版积分规则

Licensed Copyright © 2016-2020 http://www.3dportal.cn/ All Rights Reserved 京 ICP备13008828号

小黑屋|手机版|Archiver|三维网 ( 京ICP备2023026364号-1 )

快速回复 返回顶部 返回列表