QQ登录

只需一步,快速开始

登录 | 注册 | 找回密码

三维网

 找回密码
 注册

QQ登录

只需一步,快速开始

展开

通知     

全站
4天前
查看: 2654|回复: 13
收起左侧

[已解决] 同时有三个弧相切CAD视图怎么表达?

[复制链接]
发表于 2008-8-25 16:56:49 | 显示全部楼层 |阅读模式 来自: 中国浙江宁波

马上注册,结识高手,享用更多资源,轻松玩转三维网社区。

您需要 登录 才可以下载或查看,没有帐号?注册

x
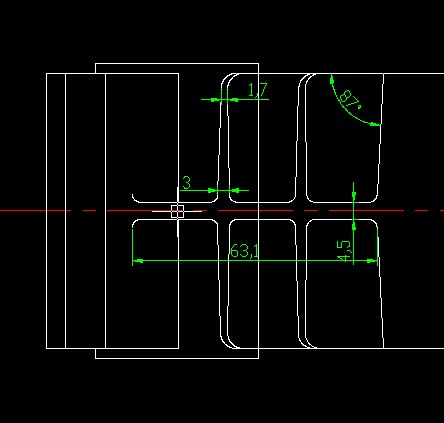
CAD画图时,如果两个圆弧相切,是不是在仰视图中要画那根相切线呢,如果是同时有三个弧相切,那又怎么画出来表达呀?# g/ S2 Q' _9 X4 L: m8 {# |6 i  x8 W
谢谢了,帮我解答一下啊* R, Q; p' _9 I1 O4 H4 D
下图的1.2.3线该怎么表达呢?我那样画画的看起来很别扭。
0.jpg
1.jpg
2.jpg
 楼主| 发表于 2008-8-26 09:54:57 | 显示全部楼层 来自: 中国浙江宁波
书上说表面光滑过渡,在相切处不画线,但不画感觉表达不清啊。象第1张图的左视图时也是相切的。有人画过之类的图吗。非得用三维软件来表达呀?
发表于 2008-8-26 10:31:45 | 显示全部楼层 来自: 中国辽宁营口
你认为表达不清吗?- t# b+ ?5 J( Z: M/ e4 K
我倒是认为你的图中:1、那几条切线完全是多余的;2、有几处画错了。

评分

参与人数 1三维币 +2 收起 理由
2005llnn + 2 技术讨论

查看全部评分

发表于 2008-8-26 12:29:27 | 显示全部楼层 来自: 斯里兰卡
画是画得出来,可就是不晓得怎么用命令去一步到位
 楼主| 发表于 2008-8-26 12:50:37 | 显示全部楼层 来自: 中国浙江宁波

回复 3# 的帖子

能帮我指出错误吗?我就是没有一个人指导,就我一个人单干,也不知道对错,真是没什么动力,就我一个人搞。
发表于 2008-8-26 12:59:44 | 显示全部楼层 来自: 中国四川成都
其实这个就用二维的办法一样可以解决,用三维反而显得多余了,而且三维更费脑壳
发表于 2008-8-26 15:31:43 | 显示全部楼层 来自: 中国广东东莞
圆弧过渡是没有线,在另一侧的视图线1和线2是有,线3不用画出来
发表于 2008-8-26 16:51:41 | 显示全部楼层 来自: 中国江苏苏州
我可能会这样去表达
11.jpg

评分

参与人数 1三维币 +2 收起 理由
2005llnn + 2 技术讨论

查看全部评分

 楼主| 发表于 2008-8-27 08:27:49 | 显示全部楼层 来自: 中国浙江宁波

回复 8# 的帖子

这只画一跟线不是切线吧,是表示这个位置相切么?
发表于 2008-8-27 08:52:14 | 显示全部楼层 来自: 中国广东中山
切线过度应该不用画线吧!
发表于 2008-8-27 09:01:19 | 显示全部楼层 来自: 中国江苏苏州
就是为了表示下圆弧过渡,实际上是切线不用画的,我们内部的一种表示方法
发表于 2008-8-27 13:19:44 | 显示全部楼层 来自: 中国辽宁大连
图没看明白,不过意思到是明白,机械制图中规定过渡线是可以省略的,当然画了也没有错!
发表于 2008-8-27 16:38:18 | 显示全部楼层 来自: 中国浙江宁波
路过看看,我个人认为用三维做比较好,因为在三维里面草绘约束比较方便,而且尺寸也比较好控制,多了少了都没法生成,在CAD就不一样,我相信只要是搞设计的都有只要的体会的吧。
 楼主| 发表于 2008-8-29 12:35:11 | 显示全部楼层 来自: 中国浙江宁波
大概知道了,感谢各位出手啊,下次要多出手相助翱瞻譫shake,用UG再做下看效果就好看了; Y  m+ ]! R- Y0 z, k% P1 }

- Y  `+ l* l+ D& L2 ~[ 本帖最后由 leng 于 2008-8-29 12:36 编辑 ]
发表回复
您需要登录后才可以回帖 登录 | 注册

本版积分规则

Licensed Copyright © 2016-2020 http://www.3dportal.cn/ All Rights Reserved 京 ICP备13008828号

小黑屋|手机版|Archiver|三维网 ( 京ICP备2023026364号-1 )

快速回复 返回顶部 返回列表