|
|
发表于 2008-9-6 19:59:42
|
显示全部楼层
来自: 中国云南昆明
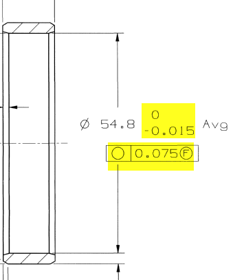
标注方法没有错!加工的时候同时满足圆度和尺寸的时候有矛盾!会出来好几个结果! 我认为图纸上的标注如果让看图纸的人看出来好多个结果!最少有两个结果有矛盾的时候标注肯定有问题了!圆度和公差的范围最好在同一个范围中!同意楼上的看法!同一个东西上的尺寸有必然的联系(尽管可以各标各的,想想都想得通)
9 W' t$ a, n! [" M+ W4 v: z& g0 e楼主标法的缺点就是:可能老外以圆度为基准来加工的时候,无法满足尺寸公差要求,如果以公差为基准来搞圆度的时候心理又没有谱!
, ^* A- {" v6 a个人认为:形状和尺寸如果同在一个物体上作为约束条件那必然有联系,不能各干各的(你的各干各的,而且数值不在一个级别,搞加工的人肯定骂,因为你让他们不知如何是好).我们的教科书绝对说错了!还有一个典型的例子:我们的机械设计教我们凸轮设计的时候是教位置关系来设计.可国外是用受力关系来设计凸轮的.尽管都搞出了,但是我们的用几天就坏了!
5 w% [/ N5 Q& L# g9 a! g呼吁:请搞设计的同志们帮搞加工的同志想想他们的难处!因为大家的目的都是拿出好产品,而不是简单的交差! 尽信书等于无书,说形状公差和尺寸公差没有联系的人就是尽信书之人!试想一个苹果,如果形状公差要求他是扁苹果,而尺寸公差要求他是圆苹果!它到底要做圆苹果还是扁苹果!楼主的问题和这个有点雷同!我们国家的加工企业习惯性的以尺寸公差搞好了,你标了形状公差几乎没人管这个!因为上边的人都说了原因了,而现在遇见了老牛筋的老外,人家既然你标了我就要去搞一下,结果问题出来了!两个东西有矛盾,无法同时满足要求!从这个意义上来说,图纸绝对有问题!: q& w9 a9 f: f! @& q# \+ V3 _
2 K" V0 U) k; n7 |! M# g[ 本帖最后由 914438418 于 2008-9-6 20:56 编辑 ] |
评分
-
查看全部评分
|