QQ登录

只需一步,快速开始

登录 | 注册 | 找回密码

三维网

 找回密码
 注册

QQ登录

只需一步,快速开始

展开

通知     

全站
8天前
查看: 2401|回复: 13
收起左侧

[已解决] 这个轴是标准的么?

[复制链接]
发表于 2008-9-9 14:04:07 | 显示全部楼层 |阅读模式 来自: 中国山东济南

马上注册,结识高手,享用更多资源,轻松玩转三维网社区。

您需要 登录 才可以下载或查看,没有帐号?注册

x
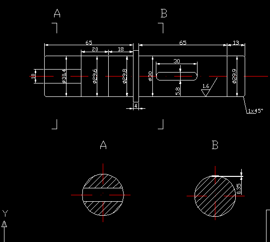
这个轴是标准的么?     单位让我画图 ,我觉得这个轴有可能是标准的。请各位先看看。
( i) P6 n7 s- A  `. u  H) @: @7 U/ m
  Q$ {& ^$ d0 f+ P2 Z2 S[ 本帖最后由 ygjjinan 于 2008-9-11 11:21 编辑 ]
未命名.jpg
发表于 2008-9-9 14:09:21 | 显示全部楼层 来自: 中国广东佛山
哪有什么标准轴```8 d/ Z( B" x8 \# W: s
有标准轴配件
! P+ D  |: E' F/ r轴承一类东西```  K6 E/ Q; K" R+ H$ Q: G+ n1 g* D4 j4 Y' j
没听过标准轴```

评分

参与人数 1三维币 +2 收起 理由
hero2006 + 2 技术讨论

查看全部评分

发表于 2008-9-9 14:17:49 | 显示全部楼层 来自: 中国云南昆明
轴不是标准件,只有根据用途来设计不同的轴!你的标注有问题,尺寸公差都没有!这个还 可以理解为你的轴要求不高,但是你尺寸链那样标就让加工的人不知道基准了(你最好把总长度的尺寸标出来,然后去掉一个最不重要的尺寸,或者在上边加个括号,表示参考尺寸)!还有那个1.6的粗糙度也标错了,你标在内表面上了(里边可是实心的哟) 29.8----29.6--------29.4我看着好像是一条线拉过去的,可能是图片的问题吧,如果是一条线拉过去好像不对哟!还有你标长度为4的那个台的直径也没有啊 ,你A-A剖的那个槽式方的吧?那少了一个尺寸啊,是柱状10就有个直径符号的啊:lol:。还有你A-A B-B剖的表示方法也不对,少了东西了,兄弟!
; h+ O; T7 h0 a6 ~9 U, b
) C7 N! I- G! ^' A+ B$ {' C7 _[ 本帖最后由 914438418 于 2008-9-9 14:20 编辑 ]

评分

参与人数 1三维币 +4 收起 理由
hero2006 + 4 应助

查看全部评分

发表于 2008-9-9 14:34:11 | 显示全部楼层 来自: 中国山西太原
轴类零件不属于标准件,在画轴零件图时,表达方法要符合国标制图标准,长度、直径、键槽尺寸都要符合标准。楼主画这个图直径、倒角、两个剖面表示法、表面粗糙度、还有轴的长度表示法都不对,希望从头学起,不要急于求成。

评分

参与人数 1三维币 +3 收起 理由
hero2006 + 3 应助

查看全部评分

发表于 2008-9-9 15:55:07 | 显示全部楼层 来自: 中国广东珠海
尺寸标注有问题,轴的总长度一定要标。
发表于 2008-9-9 19:16:10 | 显示全部楼层 来自: 中国北京
1X45的标法也不太对,键槽的标注也不对,光洁度要标在外面,总长度没有,中间那个轴肩的直径没标,剖视图A的表达也有问题,键槽的轴箱尺寸没标   L" G' n% g( b- o- O
这张图,嗯,可以成为“制图找找看”的标准用图了。 开个玩笑,别介意。还需要认真一些。
& j4 n% M) o# K, J& k5 _9 x
0 ^3 I3 n% q! Q: |, p$ c[ 本帖最后由 网络菜鸟 于 2008-9-9 19:23 编辑 ]

评分

参与人数 1三维币 +2 收起 理由
hero2006 + 2 技术讨论

查看全部评分

发表于 2008-9-9 19:36:15 | 显示全部楼层 来自: 中国浙江温州
2楼,3楼,4楼的说得很对,轴没有标准件,但有可能是通用件。某一类型的机械设备通用,这种可能是有的。不知道楼主是用在什么设备什么位置上,上传张总装图来或其他配件来,好分析!
# u9 G$ K# F) _0 a楼主像是个新手,机械制图和CAD制图还不够熟练,图纸不规范呵。加油!
5 H  o9 p1 t- c6 ?- G+ B7 F
, t# c. e9 {8 w* b9 n0 u" \[ 本帖最后由 CHNLOONG 于 2008-9-9 19:38 编辑 ]

评分

参与人数 1三维币 +2 收起 理由
hero2006 + 2 技术讨论

查看全部评分

 楼主| 发表于 2008-9-10 11:28:00 | 显示全部楼层 来自: 中国山东济南
我主要用在滚压磨上,大家给我提了很多意见我虚心接受,真心的感谢大家.
发表于 2008-9-10 13:32:13 | 显示全部楼层 来自: 中国湖北荆州
轴的尺寸标注最好分为上下两部分,上面标一些公差和粗糙度之类,下面则统一标轴向尺寸。
发表于 2008-9-10 17:46:57 | 显示全部楼层 来自: 中国浙江丽水
轴不是标准件;它有自己的标准
发表于 2008-9-10 22:05:05 | 显示全部楼层 来自: 中国重庆
这根轴画法问题很多,有尺寸标注错误,也有结构上的错误,建议去读读机械制图标准
发表于 2008-9-11 06:27:04 | 显示全部楼层 来自: 中国北京
原帖由 ygjjinan 于 2008-9-10 11:28 发表 http://www.3dportal.cn/discuz/images/common/back.gif
: b/ J7 L5 J0 }我主要用在滚压磨上,大家给我提了很多意见我虚心接受,真心的感谢大家.

; B+ O) s8 z$ p; q0 U3 u- H9 V+ s5 e2 a* z# T; N3 M
没什么,大家都是从生手一步一步走上来的。
  Z9 e8 S- n, R& @2 G# L" L在给个提示:如果楼主认为你的问题解决了,请利用编辑功能把你的“求助”抬头改为“已解决”,这也是“规矩”
发表于 2008-9-14 13:42:06 | 显示全部楼层 来自: 中国广东广州
轴是没有什么标准的
% b: ~3 T' N4 d" {8 @! a- k' P4 F8 y- Z8 G: {3 H
这图画的怪怪的,还缺少好多尺寸
& ]( Z9 `5 d6 W2 T6 C
' z& {& }& x" f; k* @& A4 x兄弟,你画图的基本功还有待加强啊
发表于 2008-9-15 08:19:14 | 显示全部楼层 来自: 中国江苏苏州

回复 1# ygjjinan 的帖子

应该标注轴的总长度,键的剖视图错误,及缺少轴和键尺寸的公差,轴应该添加热处理等技术要求
发表回复
您需要登录后才可以回帖 登录 | 注册

本版积分规则


Licensed Copyright © 2016-2020 http://www.3dportal.cn/ All Rights Reserved 京 ICP备13008828号

小黑屋|手机版|Archiver|三维网 ( 京ICP备2023026364号-1 )

快速回复 返回顶部 返回列表