QQ登录

只需一步,快速开始

登录 | 注册 | 找回密码

三维网

 找回密码
 注册

QQ登录

只需一步,快速开始

展开

通知     

查看: 2491|回复: 9
收起左侧

[分享] 半门吊生产图 全套

[复制链接]
发表于 2008-9-14 10:13:25 | 显示全部楼层 |阅读模式 来自: 中国北京

马上注册,结识高手,享用更多资源,轻松玩转三维网社区。

您需要 登录 才可以下载或查看,没有帐号?注册

x
半门吊生产图

半门吊生产图.rar

157.43 KB, 下载次数: 66

 楼主| 发表于 2008-9-14 10:14:04 | 显示全部楼层 来自: 中国北京
现在很流行半门吊
 楼主| 发表于 2008-9-14 10:27:44 | 显示全部楼层 来自: 中国北京
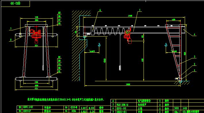
半门吊  贴个图
; N, J8 s1 U6 |. `6 C* D+ U9 P: [+ G* u7 G! N. `
[ 本帖最后由 lnaskdjx 于 2008-9-14 10:38 编辑 ]
9999.jpg
 楼主| 发表于 2008-9-14 10:40:57 | 显示全部楼层 来自: 中国北京
半门吊  贴图
88888.jpg
发表于 2008-9-15 08:41:33 | 显示全部楼层 来自: 中国江苏常州
没用,浪费!
发表于 2008-12-5 19:27:33 | 显示全部楼层 来自: 中国内蒙古包头
楼主,你的压缩文件能打开吗?你付的图我看了,我刚下了 一个,和你的图是样的,可是他的怎么也打不开,你的那?
发表于 2010-7-20 19:51:47 | 显示全部楼层 来自: 中国北京
可以借来参考一下,以后给公司做一对
发表于 2011-9-7 17:18:11 | 显示全部楼层 来自: 中国广东东莞
还不错,感谢楼主分享
发表于 2011-9-14 15:32:34 | 显示全部楼层 来自: 中国山东临沂
不错,可以参考一下,
发表于 2011-10-18 09:52:40 | 显示全部楼层 来自: 中国山西临汾
这么小的文件1 n6 H5 j( }" k' X/ E
怎么可能是全套图纸呢! h$ \, q7 @# v/ h  S/ e
大家注意啊
发表回复
您需要登录后才可以回帖 登录 | 注册

本版积分规则


Licensed Copyright © 2016-2020 http://www.3dportal.cn/ All Rights Reserved 京 ICP备13008828号

小黑屋|手机版|Archiver|三维网 ( 京ICP备2023026364号-1 )

快速回复 返回顶部 返回列表