QQ登录

只需一步,快速开始

登录 | 注册 | 找回密码

三维网

 找回密码
 注册

QQ登录

只需一步,快速开始

展开

通知     

全站
1天前
查看: 2333|回复: 17
收起左侧

[讨论] 插装阀回路的系统振动问题

[复制链接]
发表于 2008-9-21 12:46:09 | 显示全部楼层 |阅读模式 来自: 中国上海

马上注册,结识高手,享用更多资源,轻松玩转三维网社区。

您需要 登录 才可以下载或查看,没有帐号?注册

x
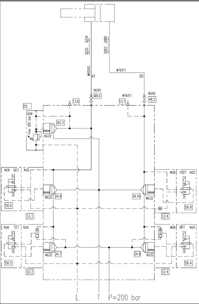
本人设计的一套液压系统用插装阀进行控制,工况是前进8DT和9DT得电,工作压力200bar,活塞杆到前进位行程开关后即退回(工况要求)。3 K: N+ U- V6 `& j/ q! \1 J/ |
退回7DT和10DT得电,退回压力也是200bar。: n. @. ?) ?: T! s2 M9 }
现在在退回的一瞬间阀台会“砰”的响一声。
$ S" o. o0 v, J* {$ C* I( j" m8 {9 L" K5 y: r9 P: @
如果工作压力稍微低一些,如170 bar一下就没有振动。将插装阀盖板53.4的T口节流孔从1.2mm减小到0.8mm,减震效果也不明显。插装阀芯是线密封的。6 s. r/ s2 ^% R& Z* t' {6 |' y# S- l

7 o2 F! _7 T- F3 I请各位兄弟帮忙看看,振动原因是什么,在目前情况下用什么方式可以有效解决?

回路.pdf

27.96 KB, 下载次数: 18

 楼主| 发表于 2008-9-21 12:52:36 | 显示全部楼层 来自: 中国上海
对了,需要说明的是,我在前进和后退一瞬间,程序上设置的是这样的:9 C* x6 X8 g+ F: \' H0 n7 p% H
8、9DT失电后十几毫秒后7、10DT再得电的。
发表于 2008-9-21 12:58:30 | 显示全部楼层 来自: 中国江苏无锡
先贴图再细看.建议楼主以后尽量发图片.除非很大的图纸用电子版.
Adobe Acro..._2008.09.21.12.54.18.jpg

评分

参与人数 1三维币 +2 收起 理由
qhdhcs + 2 应助

查看全部评分

发表于 2008-9-21 13:05:56 | 显示全部楼层 来自: 中国江苏无锡
楼主,你的液压缸面积比是多少?插件34.9和34.10的面积比都是多少?流量多大?% I. c5 a' P* b' }1 i4 U
退到底然后前进有没有这种现象?* r# U. M( ]  D" u" R

  q7 O6 h, _/ g) P# ~- a% V& T) u1 l[ 本帖最后由 46792974 于 2008-9-21 14:17 编辑 ]
发表于 2008-9-21 13:11:49 | 显示全部楼层 来自: 中国辽宁本溪
是不是开关速度太快所致?
* q9 Q- d0 |- D0 J改用带缓冲凸头的插件试试?
 楼主| 发表于 2008-9-23 15:27:48 | 显示全部楼层 来自: 中国上海
不好意思,第一次不知道可以把图直接放上来,下次会注意。
- U, L/ h  j' I6 A# T& s) {所有插装阀均为1:1
8 }, ]- C0 Q7 m5 y- V油缸面积比是1:2
# D* C# i7 @% y4 @2 |2 Y回程后再出来没有冲击,因为回程后到出来之间有一段时间的。
发表于 2008-9-24 08:44:08 | 显示全部楼层 来自: 中国河北唐山
楼主的问题分析是液压冲击造成的,建议楼主修改7DT与10DT的带电时间间隔,10DT先带电后7DT带电。另建议先导控制改为外部供油控制。

评分

参与人数 1三维币 +2 收起 理由
自流井 + 2 应助

查看全部评分

发表于 2008-9-25 10:03:50 | 显示全部楼层 来自: 中国重庆
7楼说得很有道理。
发表于 2008-9-25 10:54:30 | 显示全部楼层 来自: 中国江苏无锡
用缓冲凸头的是可以解决液压冲击的问题!但是压降会增加而且启闭会有延时!看楼主只有既十几毫秒!七楼说的看法比较同意:10DT先带电后7DT带电!这种方法不知电气能不能满足!不过先导外控还是比较好的(这样不会有不必要的干扰)!楼主的作用面积全选的是1:1的最大面积!面积最大会带来快速启闭而引起液压冲击!可以试试面积比1:1.1的(让其作用力小一个点)!: X8 N' z2 N* L# k& s# ]) I

) o# Q  a4 ~; G; k( F2 n[ 本帖最后由 wuwanfu 于 2008-9-25 12:07 编辑 ]
发表于 2008-9-25 20:01:18 | 显示全部楼层 来自: 中国江苏无锡
我觉得电气动作没必要该,可以把34.9和34.10插件换一下。一般需要反向通油都用面积比1.5或者2的插件。有的阀快用的是集控,7和10接在一起,8和9接在一块都没有这个问题的。, O, `; h! G4 K2 U8 P* I
楼主的先导油路怎么只有一个阻尼?

评分

参与人数 1三维币 +5 收起 理由
自流井 + 5 应助

查看全部评分

发表于 2008-9-25 21:20:19 | 显示全部楼层 来自: 中国上海
个人觉得电控时间不会有什么问题的
发表于 2008-9-26 20:37:50 | 显示全部楼层 来自: 中国江苏南通
学习,学习,今天又学知识了
发表于 2008-9-27 08:27:06 | 显示全部楼层 来自: 中国北京
可以加个小容积的蓄能器试一试啊 起到减震作用
发表于 2008-9-27 22:17:34 | 显示全部楼层 来自: 中国江苏无锡
加蓄能器减震效果不一定好。反而会降低系统的刚性
发表于 2008-9-27 22:48:57 | 显示全部楼层 来自: 中国安徽合肥
无杆腔加电动球阀,回程前先卸荷,使无杆腔压力降下来后,在回程。系统会舒服一点。
发表于 2008-9-28 08:29:01 | 显示全部楼层 来自: 中国北京
10DT得电后延时一点时间,7DT再得电,可以有很大缓解。
发表于 2008-9-29 08:17:31 | 显示全部楼层 来自: 中国江苏无锡
原帖由 乐天行者 于 2008-9-27 22:48 发表 http://www.3dportal.cn/discuz/images/common/back.gif' {- q" [" O* ]: }& b' [
无杆腔加电动球阀,回程前先卸荷,使无杆腔压力降下来后,在回程。系统会舒服一点。
这个方法可以考虑。很多大流量系统都是这么解决的。只是楼主的流量大到这个程度了吗?32通经流量最多600来L吧。
发表于 2008-10-22 19:32:52 | 显示全部楼层 来自: 中国山西临汾
控制盖板上怎么没有阻尼呢?是不是加上阻尼能好点?
发表回复
您需要登录后才可以回帖 登录 | 注册

本版积分规则

Licensed Copyright © 2016-2020 http://www.3dportal.cn/ All Rights Reserved 京 ICP备13008828号

小黑屋|手机版|Archiver|三维网 ( 京ICP备2023026364号-1 )

快速回复 返回顶部 返回列表