QQ登录

只需一步,快速开始

登录 | 注册 | 找回密码

三维网

 找回密码
 注册

QQ登录

只需一步,快速开始

展开

通知     

查看: 3754|回复: 9
收起左侧

[求助] 我觉得solidworks筋板最难画,有谁帮忙画出下面这个图的筋板?

[复制链接]
发表于 2008-9-22 16:28:36 | 显示全部楼层 |阅读模式 来自: 中国江苏常州

马上注册,结识高手,享用更多资源,轻松玩转三维网社区。

您需要 登录 才可以下载或查看,没有帐号?注册

x
一张是CAD剖视图,框框内就是要画的筋板
! r0 R: Z5 u* X& v3 D一个是原文件3 [2 v# y; m' f9 A
谢谢各位大虾,小弟刚刚学习中
3 x+ m- L1 y/ l, ?9 N/ A- c- H% b- u: G5 ~# E8 w# ~
[ 本帖最后由 tl2004 于 2008-9-22 17:34 编辑 ]
未命名.JPG

直角头.rar

362.08 KB, 下载次数: 20

 楼主| 发表于 2008-9-22 16:30:49 | 显示全部楼层 来自: 中国江苏常州
感觉solidworks的筋板很麻烦) @6 p) z2 P% A; o! y/ h) {
大家觉得呢?
 楼主| 发表于 2008-9-22 17:33:21 | 显示全部楼层 来自: 中国江苏常州
顶上去,谢谢大家
发表于 2008-9-22 22:17:38 | 显示全部楼层 来自: 中国天津
你图纸不是很详细: M% b' e; Y6 N, l
大体意思是这样
# i6 r3 w1 L" ?+ i你看着修改一下就可以- G7 z7 w0 s9 s) k$ `
还有,筋一般都可以用拉伸来代替,拉伸比较简单些 1.JPG 2.JPG
" W: ]% f4 U2 m7 E
) O% t4 L$ v" u% @: q[ 本帖最后由 stone0030 于 2008-9-22 22:33 编辑 ]

直角头.rar

278.54 KB, 下载次数: 17

 楼主| 发表于 2008-9-23 07:53:53 | 显示全部楼层 来自: 中国江苏常州
奇怪了,大哥6 n* ?; ^- `/ ~0 w  `: a
我不能打开你的文件嘛
; j& N; ^( I! Q- t6 o我用的是07版本的5 G: H" \2 J! ^+ e, c# J, u
这个图关键是建个参考基准面  e' k' T& Q! b0 z$ b4 ^. s
但是我怎么也创建不了,请帮忙指导一下,谢谢
 楼主| 发表于 2008-9-23 08:40:25 | 显示全部楼层 来自: 中国江苏常州
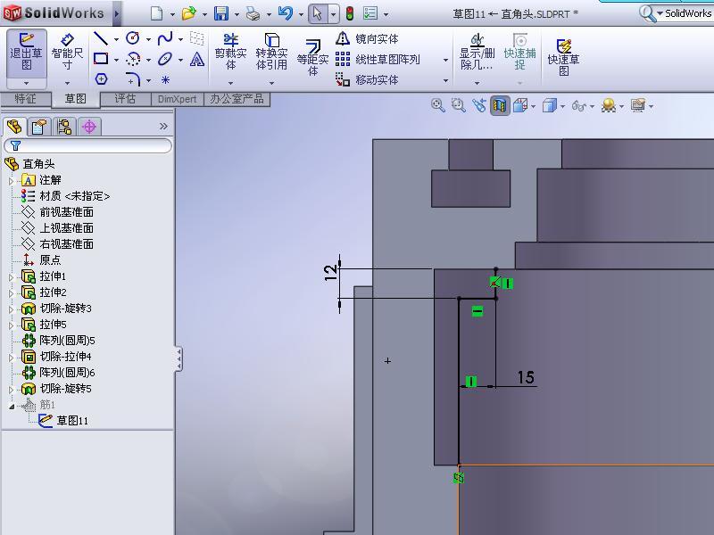
我现在就不知道怎么样才能让这几条线完全定位(变成黑色)
2 Y' [( a; L, ?郁闷啊,顶
2.JPG
 楼主| 发表于 2008-9-23 09:06:23 | 显示全部楼层 来自: 中国江苏常州
有大哥帮忙吗?
发表于 2008-9-23 19:33:36 | 显示全部楼层 来自: 中国广东中山
标注尺寸定位
发表于 2008-9-23 21:08:10 | 显示全部楼层 来自: 中国上海
原帖由 tl2004 于 2008-9-23 08:40 发表 http://www.3dportal.cn/discuz/images/common/back.gif* F5 P6 _1 ~) R& s
我现在就不知道怎么样才能让这几条线完全定位(变成黑色)( Q: y& ^5 P$ B" i, D; a9 M
郁闷啊,顶

( A' t' \: w6 L  z* B* P% S- q% C) |' q9 v+ \
给定相关距离、长度尺寸或者添加关系就可以完全定位了。
发表于 2008-9-25 21:11:52 | 显示全部楼层 来自: 中国天津
按我的第一张图的草图定义关系3 X5 K, V4 ?/ U) g7 q
两个尺寸:12和15
+ }7 A% E7 M5 p: a" S1 K/ ]两个竖直,一个水平
' z+ u% J$ m% C+ f8 K& S( z一个重合,一个穿透
发表回复
您需要登录后才可以回帖 登录 | 注册

本版积分规则


Licensed Copyright © 2016-2020 http://www.3dportal.cn/ All Rights Reserved 京 ICP备13008828号

小黑屋|手机版|Archiver|三维网 ( 京ICP备2023026364号-1 )

快速回复 返回顶部 返回列表