QQ登录

只需一步,快速开始

登录 | 注册 | 找回密码

三维网

 找回密码
 注册

QQ登录

只需一步,快速开始

展开

通知     

查看: 1496|回复: 4
收起左侧

[已解决] ug工程图尺寸数字小线点只能是圆圈吗?

[复制链接]
发表于 2008-9-25 11:14:07 | 显示全部楼层 |阅读模式 来自: 中国安徽芜湖

马上注册,结识高手,享用更多资源,轻松玩转三维网社区。

您需要 登录 才可以下载或查看,没有帐号?注册

x
如标注时数字为56。1,能不能标成56.1
发表于 2008-9-26 10:04:02 | 显示全部楼层 来自: 中国山东青岛
若要实心点,可修改用户默认设置,我抓了个图,可惜现在无法上传附件.
发表于 2008-9-26 11:45:21 | 显示全部楼层 来自: 中国湖北十堰
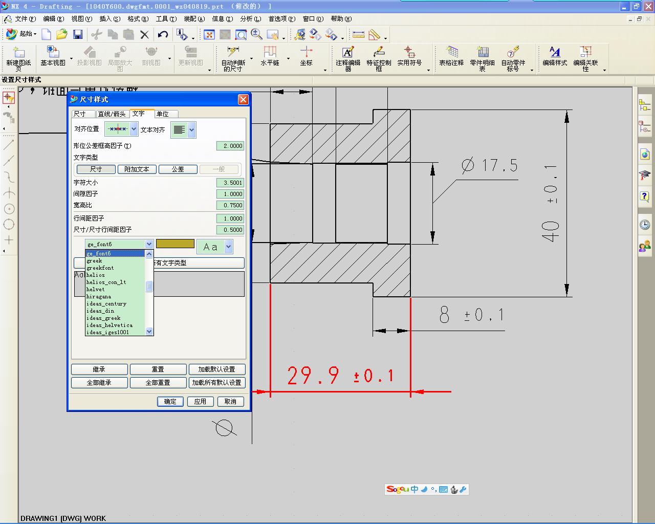
你用这个字体试试
+ Z8 S5 z% V" |% R# B! m- F4 R6 ^; o 112.JPG

评分

参与人数 1三维币 +3 收起 理由
luohuayu + 3 应助

查看全部评分

发表于 2008-9-27 08:41:12 | 显示全部楼层 来自: 中国浙江宁波
在用户默认设置里可以修改你想要的样式。
发表于 2008-9-27 16:19:49 | 显示全部楼层 来自: 中国上海
楼主好像解决的啊
发表回复
您需要登录后才可以回帖 登录 | 注册

本版积分规则

Licensed Copyright © 2016-2020 http://www.3dportal.cn/ All Rights Reserved 京 ICP备13008828号

小黑屋|手机版|Archiver|三维网 ( 京ICP备2023026364号-1 )

快速回复 返回顶部 返回列表