QQ登录

只需一步,快速开始

登录 | 注册 | 找回密码

三维网

 找回密码
 注册

QQ登录

只需一步,快速开始

展开

通知     

全站
2天前
查看: 1641|回复: 9
收起左侧

[已解决] 给图补充技术条件

 关闭 [复制链接]
发表于 2008-10-24 14:19:18 | 显示全部楼层 |阅读模式 来自: 中国江苏常州

马上注册,结识高手,享用更多资源,轻松玩转三维网社区。

您需要 登录 才可以下载或查看,没有帐号?注册

x
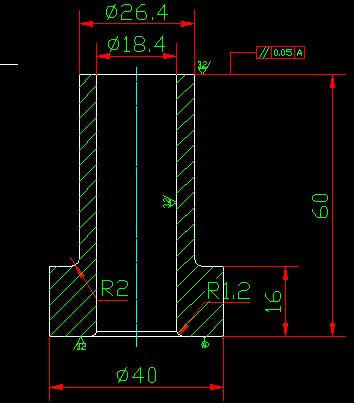
用途:用于压头,受力60KN,材料:45钢,请详细点,能想到的,必要的,不必要的都可以写
( \- M# {5 `5 n  S  {5 S2 ^5 L
2 m- b% a5 n- N7 P[ 本帖最后由 asdolmlm 于 2008-11-23 17:10 编辑 ]
TT截图未命名11.jpg
发表于 2008-10-24 18:43:20 | 显示全部楼层 来自: 中国江苏苏州
材料 热处理条件: w4 W* X( w, |% X& [
其他未标的表面粗糙度 倒角等等

评分

参与人数 1三维币 +3 收起 理由
userkypdy + 3 积极交流

查看全部评分

发表于 2008-10-24 19:50:07 | 显示全部楼层 来自: 中国
没看明白,什么是压头?60kN压铆了吧!壁厚4mm承载不了多大的力。
发表于 2008-10-24 20:43:25 | 显示全部楼层 来自: 中国辽宁沈阳
用途没有太看明白。
5 s* {  ^# K- y5 v) D不过技术要求应该有热处理要求;0 I; l$ _7 ~; k
表面处理要求;" G% j& z$ E- i' i3 q/ N4 j
未注公差要求。

评分

参与人数 1三维币 +3 收起 理由
userkypdy + 3 积极交流

查看全部评分

发表于 2008-10-24 21:55:23 | 显示全部楼层 来自: 中国江西南昌
1. 热处理要求。3 A9 |' ^1 v# w, X  ^  b
2. 未注倒角的尺寸要求。- F9 P- @' p7 e3 v5 M
3. 对裂纹及内伤的要求。
/ u5 C% z  e# S: X/ C# ]4. 未注表面粗糙度要求。
2 [8 }4 ~2 }) A3 j6 n/ R5. 压头处的硬度要求。

评分

参与人数 1三维币 +3 收起 理由
sxw68 + 3 积极交流

查看全部评分

发表于 2008-10-24 22:05:13 | 显示全部楼层 来自: 中国江西九江
1.零件去除氧化皮。 + I  T$ _, @. D3 C) T% T* ]( s, u: P/ \
2.零件加工表面上,不应有划痕、擦伤等损伤零件表面的缺陷。 3 R" D. f( q+ S8 J; ?
3.去除毛刺飞边。 5 a4 ?' X! I2 i/ }
4.热处理方式及硬度值。
3 G6 z; v" i2 m( `: i: L  D, ~7.进行高温时效处理。
" b8 V  q$ J3 Z1 G) l, s" V8.未注形状公差应符合GB1184-80的要求。 7 n! P/ }* D% f
9.未注长度尺寸允许偏差要求. C) d' }: j% A
10.未注圆角要求 / L) L& k0 H/ c
11.未注倒角要求。
6 |7 h& I& b( S5 i  D2 v3 ^; \12.锐角倒钝。

评分

参与人数 1三维币 +3 收起 理由
sxw68 + 3 积极交流

查看全部评分

发表于 2008-10-29 10:30:10 | 显示全部楼层 来自: 中国江苏南京
6t压力,壁厚4mm是不是薄了点

评分

参与人数 1三维币 +3 收起 理由
userkypdy + 3 积极交流

查看全部评分

发表于 2008-10-30 08:17:10 | 显示全部楼层 来自: 中国辽宁沈阳
同意7楼的意见,这个管的强度能承受了6T的重量?
发表于 2008-10-30 16:54:11 | 显示全部楼层 来自: LAN
45#調質 硬度 38" J) X! g, o" }, {- y4 R4 T2 ~
鍍鉻(防鏽)

评分

参与人数 1三维币 +3 收起 理由
userkypdy + 3 积极交流

查看全部评分

发表于 2008-10-30 23:06:11 | 显示全部楼层 来自: 中国浙江嘉兴
材质,硬度说明,加工精度等
发表回复
您需要登录后才可以回帖 登录 | 注册

本版积分规则

Licensed Copyright © 2016-2020 http://www.3dportal.cn/ All Rights Reserved 京 ICP备13008828号

小黑屋|手机版|Archiver|三维网 ( 京ICP备2023026364号-1 )

快速回复 返回顶部 返回列表