QQ登录

只需一步,快速开始

登录 | 注册 | 找回密码

三维网

 找回密码
 注册

QQ登录

只需一步,快速开始

展开

通知     

全站
7天前
查看: 2374|回复: 6
收起左侧

[已解决] 如何解决同一个工程图在不同版本中的显示问题?

[复制链接]
发表于 2008-10-29 10:36:43 | 显示全部楼层 |阅读模式 来自: 中国江苏无锡

马上注册,结识高手,享用更多资源,轻松玩转三维网社区。

您需要 登录 才可以下载或查看,没有帐号?注册

x
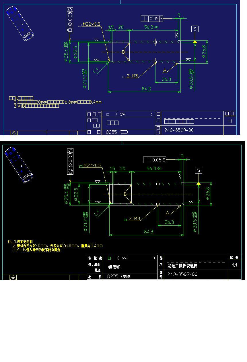
我那张工程图最初是在06版中画的,可当在07版中打开时里面的中文显示不出来了,不知道是何原因?
1 S5 A& L1 |3 B该如何解决!还请大侠们帮忙啊!
3 Q- A7 [6 j9 r" b" \; a+ I(蓝色的是07版的效果 )
同一个工程图在07版与06版中效果对比.JPG
发表于 2008-10-29 12:57:25 | 显示全部楼层 来自: 中国广东深圳
应该是在06版本,有加载中文字体,才可以写中文,07开始才可以直接用系统里的字型写中文,所以可能两个中文不同,你试着,修改乱码的字的属性,使用现有的中文字型,看是否可正常显示., y7 p6 L. e% Z3 r, Z
我想你06版本,应该做了设定,加载了经过转换的中文字体.
* x0 B- @. W: H' L, [$ K恩,记的不太清楚了.你先试试

评分

参与人数 1三维币 +5 收起 理由
sytgos + 5 应助

查看全部评分

 楼主| 发表于 2008-10-29 13:40:09 | 显示全部楼层 来自: 中国江苏无锡
恩!试过了,修改属性后可以显示了!谢谢!
# s! |- K7 }: Z# V6 q不过我想问下,如果我想加载字体的话该如何加载啊?
发表于 2008-10-29 13:49:28 | 显示全部楼层 来自: 中国广东深圳
这个要用LISP客制设定,而且在07版本,就不需要了,
 楼主| 发表于 2008-10-29 14:49:24 | 显示全部楼层 来自: 中国江苏无锡
哦!原来是这样啊!
/ k1 m5 y9 @& U' D1 ~多谢!
发表于 2008-10-29 21:50:45 | 显示全部楼层 来自: 中国四川成都
06版默认的底色是蓝色啊!!!
 楼主| 发表于 2008-11-3 08:47:38 | 显示全部楼层 来自: 中国江苏无锡
原帖由 vcmasm2008 于 2008-10-29 21:50 发表 http://www.3dportal.cn/discuz/images/common/back.gif
) A' ]' J0 L" S% g5 s06版默认的底色是蓝色啊!!!
, w- m( y+ P$ B) H) T
: K- O+ o% E& G  C" t" Z, P$ ^5 J
那个底色我改过的了!所以现在我的06版是黑色的,呵呵!
发表回复
您需要登录后才可以回帖 登录 | 注册

本版积分规则


Licensed Copyright © 2016-2020 http://www.3dportal.cn/ All Rights Reserved 京 ICP备13008828号

小黑屋|手机版|Archiver|三维网 ( 京ICP备2023026364号-1 )

快速回复 返回顶部 返回列表