QQ登录

只需一步,快速开始

登录 | 注册 | 找回密码

三维网

 找回密码
 注册

QQ登录

只需一步,快速开始

展开

通知     

查看: 3463|回复: 10
收起左侧

[已解决] AUTOCAD移动图形后,尺寸位置发生变化,为什么?

[复制链接]
发表于 2008-11-4 19:03:11 | 显示全部楼层 |阅读模式 来自: 中国北京

马上注册,结识高手,享用更多资源,轻松玩转三维网社区。

您需要 登录 才可以下载或查看,没有帐号?注册

x
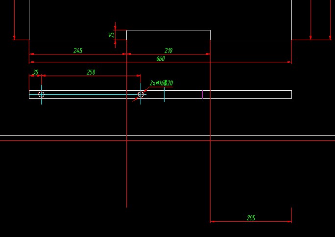
移动图形后,尺寸位置发生变化,为什么?/ v# D/ J) B; B" t5 [2 i+ @
(图上的尺寸245和205移动前,都是在尺寸660的上面)) G" j. U. d* T6 ^' [+ \! D
我用的是CAD2008,以前用2006版本没有发现这个问题
5 G; X  A3 B! r( h 1.jpg
发表于 2008-11-4 21:20:01 | 显示全部楼层 来自: 中国河北唐山

回复 1# wypan2004 的帖子

这个问题CAD2006~2009都有,它是由于尺寸关联造成的,解决办法有2个:移动前把尺寸关联取消,或者不要用移动命令,用复制命令就不出这个问题了) h1 `! T. S9 M$ S
PS:关于尺寸关联的具体讲解可以看CAD自带的帮助文件,那里讲解很清楚了。
- A! _: o! Q! @) b# h7 @* q: ?! c  w6 n, B  J; g
[ 本帖最后由 zhanglingxiu 于 2008-11-4 21:21 编辑 ]

评分

参与人数 1三维币 +3 收起 理由
★新手★ + 3 应助

查看全部评分

发表于 2008-11-6 23:38:16 | 显示全部楼层 来自: 中国陕西西安
主要是尺寸关联造成的鄂
发表于 2008-11-7 14:41:19 | 显示全部楼层 来自: 中国广东东莞
学习了~!谢谢
发表于 2008-11-7 15:38:11 | 显示全部楼层 来自: 中国江苏苏州
又学到了新知识
发表于 2008-11-7 16:27:48 | 显示全部楼层 来自: 中国辽宁营口
主要是关联点没有关联的缘故
发表于 2008-11-7 16:39:35 | 显示全部楼层 来自: 中国陕西西安
学习学习,共同进步
发表于 2008-11-8 10:25:00 | 显示全部楼层 来自: 中国香港
三言两语长知识,谢谢
发表于 2008-11-9 01:11:36 | 显示全部楼层 来自: 中国河南焦作
个人感觉CAD自带的帮助系统很有用的。) z2 \* _/ b+ m0 H& b4 O* y
不过要更改高级的设置我就迷茫了。3 f! Y' H4 L" O- o) m1 C9 r/ i* h
对命令一点也不熟悉。) x  Y! M; t2 F  r* }, O
努力中。
发表于 2008-11-10 12:08:46 | 显示全部楼层 来自: 中国河南商丘
有什么设置吧?
发表于 2008-11-10 12:34:29 | 显示全部楼层 来自: 中国山东青岛
我的CAD在线复制移动后  有的时候标尺寸的时候  老是差几丝  是怎么个情况
发表回复
您需要登录后才可以回帖 登录 | 注册

本版积分规则


Licensed Copyright © 2016-2020 http://www.3dportal.cn/ All Rights Reserved 京 ICP备13008828号

小黑屋|手机版|Archiver|三维网 ( 京ICP备2023026364号-1 )

快速回复 返回顶部 返回列表