QQ登录

只需一步,快速开始

登录 | 注册 | 找回密码

三维网

 找回密码
 注册

QQ登录

只需一步,快速开始

展开

通知     

全站
2天前
查看: 1550|回复: 8
收起左侧

[求助] 求高手指教!!

[复制链接]
发表于 2008-11-14 10:55:44 | 显示全部楼层 |阅读模式 来自: 中国浙江杭州

马上注册,结识高手,享用更多资源,轻松玩转三维网社区。

您需要 登录 才可以下载或查看,没有帐号?注册

x
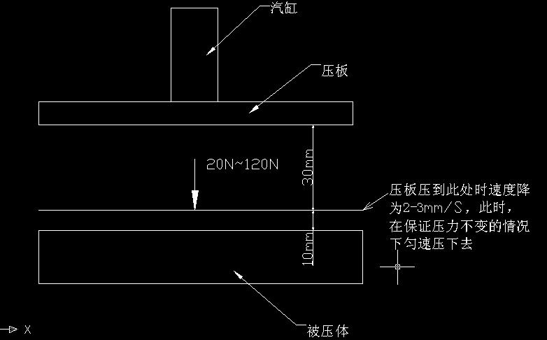
本人新手,问题如下:
$ N9 i* r0 @, p! g7 m! e( {6 U怎么控制汽缸推压过程中:前一段行程为快速,后一段铆接过程速度为2-3mm/S以内?(使用情况为:一个汽缸推动四个铆接头同时铆接,每个铆接头的铆接力范围为20N-120N)  X5 F' F1 K) D: M
具体说明请查看附件,谢谢各位的指点!!!!
未命名.JPG
发表于 2008-11-14 12:47:32 | 显示全部楼层 来自: 中国河北唐山
楼主可以采用行程开关+二级调速回路控制汽缸的行程。

评分

参与人数 1三维币 +3 收起 理由
9619 + 3 应助

查看全部评分

 楼主| 发表于 2008-11-14 13:14:12 | 显示全部楼层 来自: 中国浙江杭州
原帖由 fnwwxl 于 2008-11-14 12:47 发表 http://www.3dportal.cn/discuz/images/common/back.gif7 H( A4 L9 Z% |$ K
楼主可以采用行程开关+二级调速回路控制汽缸的行程。

# d3 K2 w8 B. l0 |; ^+ }/ O$ _6 t( V# I5 _
谢谢楼上,我想知道后一段行程的速度控制具体怎么实现。
发表于 2008-11-15 10:36:34 | 显示全部楼层 来自: 中国黑龙江哈尔滨
控制气缸推进时的速度,当然要靠气流量。比如,你可以使用两个电磁阀给气缸供气, 一个大流量气阀和一个小流量气阀。在前段行程要求速度较快时,两阀同时开启,到指定位置后,可用一行程开关或其它位置开关发出的控制信号,使大流量的气阀关闭,仅由小流量的气阀供气,气缸的推进速度自然也就降下来了。
8 ]* e5 o; y" T- k# G# ^
9 g& v- D3 Q! S, j  l我是搞电气的,但电气和液压、电气和气动,原理上有许多相通的地方。以上也可能是外行之见吧。
+ h9 A+ T2 Z- q/ ?5 V5 Q4 }4 h1 r" i$ o# W2 F
[ 本帖最后由 pangpang 于 2008-11-15 10:39 编辑 ]

评分

参与人数 1三维币 +3 收起 理由
9619 + 3 应助

查看全部评分

 楼主| 发表于 2008-11-17 16:28:25 | 显示全部楼层 来自: 中国浙江杭州
原帖由 pangpang 于 2008-11-15 10:36 发表 http://www.3dportal.cn/discuz/images/common/back.gif8 a" r% d4 p: D* E( f
控制气缸推进时的速度,当然要靠气流量。比如,你可以使用两个电磁阀给气缸供气, 一个大流量气阀和一个小流量气阀。在前段行程要求速度较快时,两阀同时开启,到指定位置后,可用一行程开关或其它位置开关发出的控制 ...
: F$ i' J) I( y# r! Y" Z7 b- }+ [
# \4 ]" h! N1 u# [
刚试了下,效果不错,就是中间切换时汽缸变速的过度时间稍长了一点,基本能够达到减速的效果。其中排气好象也需要小流量的才能达到预期效果。
发表于 2008-11-18 08:41:27 | 显示全部楼层 来自: 中国陕西渭南
我感到上述方案实现你的设想有困难,主要原因是气体可压缩性对较为精确控制实现带来的难度。我建议结合楼上各位的观点,采用气液缸驱动比较容易实现你的工艺要求。
发表于 2008-11-18 09:50:04 | 显示全部楼层 来自: 中国河北廊坊
长见识了,谢谢
 楼主| 发表于 2008-11-18 15:42:47 | 显示全部楼层 来自: 中国浙江杭州
原帖由 yaojm1960 于 2008-11-18 08:41 发表 http://www.3dportal.cn/discuz/images/common/back.gif5 p6 O) `1 `1 L
我感到上述方案实现你的设想有困难,主要原因是气体可压缩性对较为精确控制实现带来的难度。我建议结合楼上各位的观点,采用气液缸驱动比较容易实现你的工艺要求。
. R' P, I4 X9 @" h2 V7 x3 k/ A
' ?; E- ?- `* S! W! ^5 b: {
请问具体怎么实现?能否发来学习学习,谢谢!
发表于 2008-11-28 23:01:07 | 显示全部楼层 来自: 中国内蒙古呼和浩特
支持楼的观点
发表回复
您需要登录后才可以回帖 登录 | 注册

本版积分规则

Licensed Copyright © 2016-2020 http://www.3dportal.cn/ All Rights Reserved 京 ICP备13008828号

小黑屋|手机版|Archiver|三维网 ( 京ICP备2023026364号-1 )

快速回复 返回顶部 返回列表