QQ登录

只需一步,快速开始

登录 | 注册 | 找回密码

三维网

 找回密码
 注册

QQ登录

只需一步,快速开始

展开

通知     

查看: 1135|回复: 3
收起左侧

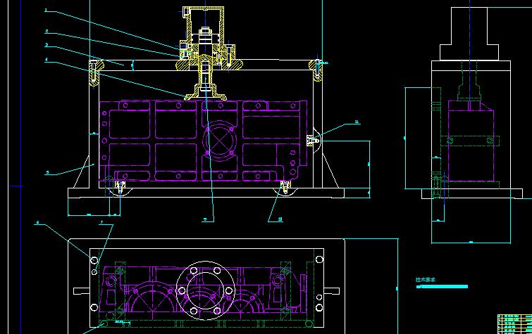
[讨论] 大家帮忙看下这是夹什么的夹具,

[复制链接]
发表于 2008-11-18 13:12:50 | 显示全部楼层 |阅读模式 来自: 中国浙江温州

马上注册,结识高手,享用更多资源,轻松玩转三维网社区。

您需要 登录 才可以下载或查看,没有帐号?注册

x
大家帮忙看下这是夹什么的夹具,....最好把零件图也带上..谢谢
00000.jpg
发表于 2008-11-18 14:45:34 | 显示全部楼层 来自: 中国河北唐山
像这样的卡具都是对应单种零件加工的专用卡具,看你的图片这个卡具应该是加工中间零面正面的卡具,不过你做的这个卡具怎么没有外部固定?
发表于 2008-11-18 15:13:52 | 显示全部楼层 来自: 中国浙江杭州
:victory:
发表于 2008-11-18 15:21:44 | 显示全部楼层 来自: 中国广东佛山
专机夹具,适合一些可旋转的工件。
发表回复
您需要登录后才可以回帖 登录 | 注册

本版积分规则


Licensed Copyright © 2016-2020 http://www.3dportal.cn/ All Rights Reserved 京 ICP备13008828号

小黑屋|手机版|Archiver|三维网 ( 京ICP备2023026364号-1 )

快速回复 返回顶部 返回列表