QQ登录

只需一步,快速开始

登录 | 注册 | 找回密码

三维网

 找回密码
 注册

QQ登录

只需一步,快速开始

展开

通知     

查看: 2091|回复: 9
收起左侧

[已解决] 关于电动双梁悬挂起重机

[复制链接]
发表于 2008-12-1 10:29:18 | 显示全部楼层 |阅读模式 来自: 中国福建厦门

马上注册,结识高手,享用更多资源,轻松玩转三维网社区。

您需要 登录 才可以下载或查看,没有帐号?注册

x
本人听说过LX型起重机(电动单梁悬挂起重机) 现在因为生产上的需要,要做一台电动双梁悬挂起重机,不知哪位高手,有这方面的资料、图纸,能不能发一份来看下,谢谢
发表于 2008-12-1 15:07:04 | 显示全部楼层 来自: 中国福建泉州
起重设备是特种设备,必须由具有相应制造许可资质的专业厂家制造,制造过程必须由特种设备检验站监制,安装完成之后由特种设备检验站验收合格,发放使用许可证。方可使用。有关LX型起重机资料论坛已有请自己搜索。
发表于 2008-12-1 20:33:16 | 显示全部楼层 来自: 中国陕西西安
没有做过这个类型的,但是看过一些资料。把在网上找到的图发给你看看。  B% j7 p. V8 z; s5 \  L# F9 J# ?8 Y# E8 Y
+ v+ @/ E3 I6 C% w) T3 l7 ^2 ?. [) p
[ 本帖最后由 tiany_zheng 于 2008-12-1 21:00 编辑 ]

比较清晰的图片,但是看不清楚小车部分

比较清晰的图片,但是看不清楚小车部分

分辨率低,勉强可以看到小车部分

分辨率低,勉强可以看到小车部分

KSX12.5t电动双梁悬挂过轨起重机是为发电机组配套的专用起重设备。其主要用途为检修磨煤机,工作级别A2级,

KSX12.5t电动双梁悬挂过轨起重机是为发电机组配套的专用起重设备。其主要用途为检修磨煤机,工作级别A2级,

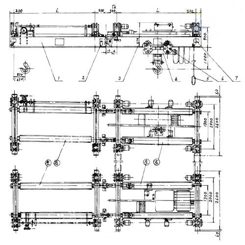
这个是和第二张图片配套的,很清晰的一个布置图。不好意思刚才没注意擦掉转载处的水印。

这个是和第二张图片配套的,很清晰的一个布置图。不好意思刚才没注意擦掉转载处的水印。

评分

参与人数 1三维币 +5 收起 理由
et998866 + 5 应助

查看全部评分

 楼主| 发表于 2008-12-3 10:59:41 | 显示全部楼层 来自: 中国福建厦门
相当有用的资料  谢谢这位兄弟
发表于 2008-12-6 15:03:04 | 显示全部楼层 来自: 中国广东揭阳
好样的,支持该论坛
发表于 2008-12-8 10:23:30 | 显示全部楼层 来自: 中国广东揭阳
谢谢这位兄弟了
发表于 2008-12-11 21:17:42 | 显示全部楼层 来自: 中国福建厦门
印象中好像看到过0 \5 I  f* \/ V5 O, M9 d, R
科尼也有这个
发表于 2009-2-22 14:47:23 | 显示全部楼层 来自: 中国山东潍坊
谢谢分享,好样的,支持该论坛
发表于 2009-4-2 21:09:53 | 显示全部楼层 来自: 中国四川攀枝花
这几张照片很好,这种双梁悬挂起重机,我还没见过呢。感谢分享。
发表于 2009-4-2 21:11:52 | 显示全部楼层 来自: 中国山东泰安
谢谢分享,支持楼主
发表回复
您需要登录后才可以回帖 登录 | 注册

本版积分规则


Licensed Copyright © 2016-2020 http://www.3dportal.cn/ All Rights Reserved 京 ICP备13008828号

小黑屋|手机版|Archiver|三维网 ( 京ICP备2023026364号-1 )

快速回复 返回顶部 返回列表