QQ登录

只需一步,快速开始

登录 | 注册 | 找回密码

三维网

 找回密码
 注册

QQ登录

只需一步,快速开始

展开

通知     

全站
2天前
查看: 1386|回复: 5
收起左侧

[求助] 压力问题

[复制链接]
发表于 2008-12-3 13:06:13 | 显示全部楼层 |阅读模式 来自: 中国北京

马上注册,结识高手,享用更多资源,轻松玩转三维网社区。

您需要 登录 才可以下载或查看,没有帐号?注册

x
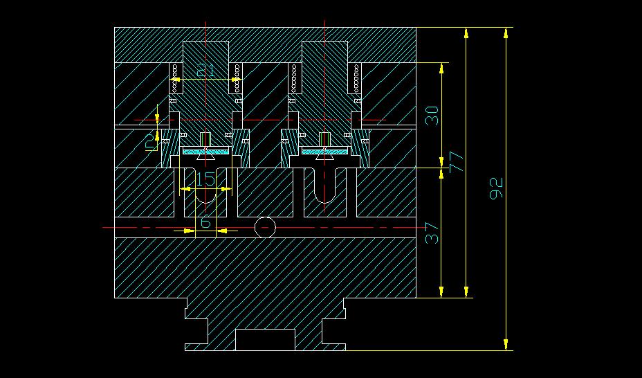
如图R6为进油,泵的出口压力为10公斤,图位置为R2的气管通气,打开通道。问题是泵为5:1的,也就是气源压力为5MPa,泵出口就是25MPa.和进气口R2为同一气源,当R2气源不通时,靠弹簧压缩密封。也就是弹簧力等于F=3.14x0.003x0.003x25000000大于等于706.5N 才能密封住,而打开时同时需要起源作用在圆环上的力是3.14x(0.0105x0.0105-0.0075x0.0075)x5000000=847.8。这根本不可能。请问是结构问题,还是我的计算问题.
& ^: U. `9 [4 ]: L5 \$ n! u" T5 s4 o# ], S% z+ y7 P- |$ M
在线等待讲解; \$ P& T8 t. }' k

, i% R# f; P1 w3 f7 E, i, f5 M谢谢
1.JPG
发表于 2008-12-3 13:38:22 | 显示全部楼层 来自: 中国湖北武汉
没有看明白,R2、R6在哪里,6和15不是通的吗?
发表于 2008-12-3 15:48:55 | 显示全部楼层 来自: 中国山西太原
交待的不太清楚,没标出R6和R2在何处,从计算式中的数字分析出进油口为φ6mm,压缩空气作用的环形面外径为φ21mm,内径为φ15mm。上面两个受压力的计算式和结果都是对的。压缩空气对圆环面的向上的压力为847.8N,弹簧向下的压力为706.85N,只有这样压缩空气才能将密封座打开。如果压缩空气向上的压力小于弹簧向下的压力,就打不开了。. P( W7 C" e  z9 p/ B6 Y
楼主说的“这根本不可能”不知是什么意思。另外前面说的泵的出口压力为10公斤,才相当于1MPa,后面又来个5:1说是25MPa,不知是什么意思。

评分

参与人数 1三维币 +3 收起 理由
asdolmlm + 3 参与

查看全部评分

 楼主| 发表于 2008-12-3 16:00:57 | 显示全部楼层 来自: 中国北京

回复 2# gaoyns 的帖子

谢谢 有点乱了 在好好想想
发表于 2008-12-3 18:35:38 | 显示全部楼层 来自: 中国陕西渭南
确实乱,滤清了再发!
发表于 2008-12-4 10:39:31 | 显示全部楼层 来自: 中国内蒙古包头
3#楼主说的有道理,我支持。
发表回复
您需要登录后才可以回帖 登录 | 注册

本版积分规则

Licensed Copyright © 2016-2020 http://www.3dportal.cn/ All Rights Reserved 京 ICP备13008828号

小黑屋|手机版|Archiver|三维网 ( 京ICP备2023026364号-1 )

快速回复 返回顶部 返回列表