QQ登录

只需一步,快速开始

登录 | 注册 | 找回密码

三维网

 找回密码
 注册

QQ登录

只需一步,快速开始

展开

通知     

查看: 2524|回复: 22
收起左侧

[讨论] 请前辈们参与一下此原理图的分析

[复制链接]
发表于 2008-12-11 13:21:23 | 显示全部楼层 |阅读模式 来自: 中国湖北十堰

马上注册,结识高手,享用更多资源,轻松玩转三维网社区。

您需要 登录 才可以下载或查看,没有帐号?注册

x
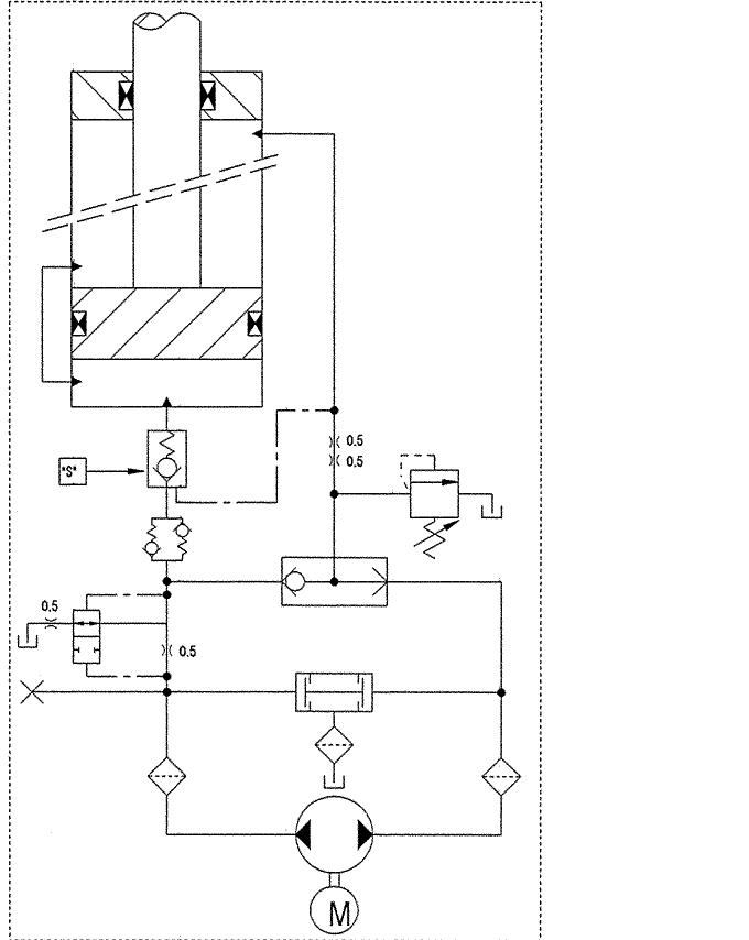
这张原理图上有两个梭阀,还有很多控制阀,希望同行们能对这些阀在这个原理图上起的作用提出自己的看法!
液压原理图.jpg
发表于 2008-12-11 17:55:25 | 显示全部楼层 来自: 中国湖南长沙

说下我的浅见

1、要理解本系统,应知道液压源是一个双向泵,应从泵在两种工况下,即左端出油或右端出油的情况分开讨论。所以,这应该不是一个完整的液压系统图吧$ P" f* ~9 r* _" x/ ]' D9 t" a
2、泵口过滤器,应该是系统对油液要求较高,为什么就看具体是什么应用的要求了
& |3 H) |5 p6 m& P  B0 L# ]0 b" D+ N分析:2 K) f6 O, D( V3 X# A3 |
(1)、泵右端出油,通过右端过滤器,由于梭阀的比较作用,油液流经梭阀到达液压缸的有杆腔,注意单向阀由于先导口有压力油而打开,刘辉油箱。: i, k+ u1 w# {5 u
     注意,那个二位换向阀是由两端压差决定所处位置,(1)情况下两端油液都回邮箱,不会流经0.5的阻尼孔,所以换向阀处于左位
: _' g0 O0 |2 k5 w  m( z& G(2)泵左端出油,通过左端过滤器,通过0.5的阻尼孔,产生压差,换向阀处于右位,油液不能流回邮箱,继续前行,进入液压缸无杆腔,另有梭阀的比较作用,通过梭阀左端油液也进入液压缸的有杆腔,形成差动回路。
. U4 y& a( t- T* b2 j( q3 {0 Y: h' ^. ]3 Y( f+ k8 c+ g
液压缸的下端的连通路,是希望能够在活塞运动到底部时能起到缓冲作用,避免对缸底部产生大冲击
* E4 i* k& `" m) X/ h& N# I本系统个人认为有点意思的设计就是,控制二位换向阀的阻尼孔,压差决定位置4 R4 v; ^  s: L5 C0 x1 \
至于液控单向阀下面的两个单向阀并联成的东东,还真是看不懂是什么,也不知到为什么这样设置
# Y* J3 J* S3 m) |. l3 y3 [/ i4 L; k& o, }2 h% ^) I  }
油箱前阻尼孔起到一定被压作用
1 u% k, w, g# R6 ]
, k0 s6 U6 M1 x1 I5 Q很长,呵,分析完毕,$ @% K! z* z$ \$ Q+ e2 A( u
希望抛砖引玉,请大家多多讨论,我会持续关注,学习中……
发表于 2008-12-11 18:06:37 | 显示全部楼层 来自: 中国辽宁大连
高手呀,听上去很有道理
发表于 2008-12-11 19:02:58 | 显示全部楼层 来自: 中国陕西西安
原帖由 cooi1987 于 2008-12-11 17:55 发表 http://www.3dportal.cn/discuz/images/common/back.gif
4 {/ j8 }) c! u1、要理解本系统,应知道液压源是一个双向泵,应从泵在两种工况下,即左端出油或右端出油的情况分开讨论。所以,这应该不是一个完整的液压系统图吧$ o4 `% y3 L- J
2、泵口过滤器,应该是系统对油液要求较高,为什么就看具体是什么 ...
* G, ?4 w) }; K. h" X
楼上水平不一般,佩服 7 k: {% k6 p" c
补充:1.“油箱前阻尼孔起到一定被压作用”,提供泵充分吸油的条件,无此。可能头腔回油流向二位阀,造成泵吸油不畅
1 y6 f: u6 R! {( Y6 f+ N' e        2 .“至于液控单向阀下面的两个单向阀并联”,我认为是起支撑阀的作用,单向阀打开压力与系统支撑要求有关。& v* V6 M( u3 I6 }3 \6 l; T# M1 u) Y
            此阀应该是特殊定货或自制阀; D# `, [# P7 G
        3.“液压缸的下端的连通路,是希望能够在活塞运动到底部时能起到缓冲作用,避免对缸底部产生大冲击”,结论是对
% p! k% e" E( z" f# b            的,但图中画法可能有误
+ r% n% d5 q6 n& }        4.液控单向阀控制油我认为接到两个0.5的阻尼孔下方更好一些
, G; `0 U8 L3 Z& s. `8 ?6 A' i请高人继续讨论,学习了!
( D# ]6 G% R5 E; N5 T4 g% m7 V; z/ @) Q# s! g- X% T6 g
; c5 u8 g7 E; ~: V: @- F

- g2 d) w. J: [) o" i[ 本帖最后由 yaojm1960 于 2008-12-11 19:07 编辑 ]
发表于 2008-12-11 20:38:36 | 显示全部楼层 来自: 中国山东东营
many thanks
发表于 2008-12-11 21:00:43 | 显示全部楼层 来自: 中国广东
看不太懂。希望高手继续分析
发表于 2008-12-11 23:11:12 | 显示全部楼层 来自: 中国湖北鄂州
同意四楼的说法/ j; _2 p( h! [
我认为从油缸无杆腔到有杆腔的油路上接一个单向阀比较好
" R$ U8 Q' _# s2 ~# p9 P还有就是液压锁的位置问题,我觉得放在阻尼孔后可能会好些;
' {, @2 Y/ y6 \$ h0 T8 Y  b- G因为在回油时会产生背压,造成回油不畅
发表于 2008-12-11 23:39:21 | 显示全部楼层 来自: 中国湖南长沙
原帖由 yaojm1960 于 2008-12-11 19:02 发表 http://www.3dportal.cn/discuz/images/common/back.gif
$ R- x% v0 |" W& N3 P) y
% S& u; [; q2 M& y$ M$ u& A 
  X9 c( f7 V* {, R8 A' Y补充:1.“油箱前阻尼孔起到一定被压作用”,提供泵充分吸油的条件,无此。可能头腔回油流向二位阀,造成泵吸油不畅, _$ b/ ^; y3 {8 ?% v* `! `
        2 .“至于液控单向阀下面的两个单向阀并联”,我认为是起 ...
. |% _9 H# r/ k/ D$ \6 V8 f
8 h  p8 B% T/ m. ~
支撑阀的解释很有道理
  a' Y( F- [1 z1 J, u另外,降到液控单向阀的先导口所接油液是否应在阻尼孔后,也很有道理,但是,在液压缸前的两个串联0.5阻尼孔的作用是什么,yaojm1960先生怎么看?, I( ^; n, x* B& r, N
7 P) m( K  K' c" F) h
[ 本帖最后由 cooi1987 于 2008-12-11 23:40 编辑 ]
发表于 2008-12-12 08:25:07 | 显示全部楼层 来自: 中国河北沧州
两个串联0.5阻尼孔与溢流阀组成液压半桥,作用是起到稳定压力的作用。
发表于 2008-12-12 08:25:29 | 显示全部楼层 来自: 中国陕西西安

回复 8# cooi1987 的帖子

“在液压缸前的两个串联0.5阻尼孔的作用是什么,yaojm1960先生怎么看?”我认为此两个串联0.5阻尼孔是调试时逐渐加上去的,实际的安装位置是我上贴所说的位置(液控单向阀控制油我认为接到两个0.5的阻尼孔下方)。此两个串联0.5阻尼孔的作用是为可靠打开液控单向阀建立相对稳定的打开压力,此压力=Po+ΔP。其中:Po=阀固有反向打开是需要的控制压力,数值上=阀反向口压力为0时的控制油压力;Po+ΔP=阀反向口压力≠0时的控制油压力.
8 l: R  p4 Q( I+ O( a    缸下行,杆腔所需压力因负载变化有可能出现PoΔP,两个串联0.5阻尼孔可以确保控制油压力Po+ΔP。从而保证缸稳定下行。7 A5 N) y& X7 Y. g, k

/ [- _: a1 z' i& H% `上述分析正误与否,请cooi1987先生指正
7 O, R& E: C/ Y$ T7 a$ o0 p6 x- ~( h' C2 \) B, [1 z; ]
[ 本帖最后由 yaojm1960 于 2008-12-12 12:43 编辑 ]
发表于 2008-12-12 08:54:41 | 显示全部楼层 来自: 中国河北沧州
看了楼上的分析,不太理解楼上的意思。本人觉得组成的液压半桥应该是稳定溢流阀入口的压力,所以液控单向阀的控制油口应该接在溢流阀的入口处才对。个人感觉图纸有点错误,请楼上指正!
发表于 2008-12-12 09:13:20 | 显示全部楼层 来自: 中国山东威海
图中的两个梭阀,下面的梭阀很特别不仅要回油箱还要加回油过滤器,从未见过,请高手指点。在这有啥功能,起到什么作用 。谢谢。
发表于 2008-12-12 10:28:11 | 显示全部楼层 来自: 中国上海
看到yaojm1960和cooi1987两位前辈分析的很正确,偶是新手,正在学习
发表于 2008-12-12 12:54:25 | 显示全部楼层 来自: 中国陕西西安

回复 11# david20078 的帖子

我们的出发点不一样,但结果是一样的!“液控单向阀控制油我认为接到两个0.5的阻尼孔下方更好一些”=“液控单向阀的控制油口应该接在溢流阀的入口处才对” + @, k/ Q" \5 K9 _* W4 F- V

6 [7 b* k9 y3 {# o% h4 A[ 本帖最后由 yaojm1960 于 2008-12-12 12:55 编辑 ]
发表于 2008-12-12 13:04:22 | 显示全部楼层 来自: 中国陕西西安

回复 12# 冰雪男儿123 的帖子

我认为这个“下面的梭阀"设计构思(巧妙极了)的很好,其功能主要是给泵补油,过滤器作用当然是怕邮箱杂物吸入系统! * j) L  {9 I( Z2 \3 }) o0 m6 K9 z
对吗?2 b! ]3 R1 A& C( C; X) r4 i! V- `
9 z) W6 p0 M! o* I$ z3 Y8 E1 X0 s
[ 本帖最后由 yaojm1960 于 2008-12-12 13:06 编辑 ]
发表于 2008-12-12 23:57:20 | 显示全部楼层 来自: 中国湖南长沙
看了大家的讨论,有些挺有道理的
9 _* Q( l/ i$ J, w1 K; kyaojm先生的阻尼孔分析是对的,应该就是这样/ Q: {: c1 G0 p$ d# A; u/ F
另外有人说本系统有两个梭阀?
' H5 E- p3 E2 L( W+ x下面那个是梭阀吗?我没见过这种结构,谁见过,讲讲!. ]6 M- a! A7 S* |, A$ |5 v) ?
还有,有人能把液压板桥这个概念详细解释下吗?
 楼主| 发表于 2008-12-13 11:45:27 | 显示全部楼层 来自: 中国湖北十堰
谢谢各位!这张原理图我也研究了很长时间,对其中的的各个阀在系统中所起的作用也拿不准。对楼上的各位的参与表示感谢!2楼的说在右边出油时,那个两位两通阀上没有通过液压油?直接补充了双向泵吸油是这个意思吗?请教!
发表于 2008-12-13 19:37:03 | 显示全部楼层 来自: 中国天津
看了大家的分析真是受益匪浅啊
发表于 2008-12-13 21:21:19 | 显示全部楼层 来自: 中国湖南长沙
两个梭阀一个是与门梭阀一个或门梭阀,下面的在闭式泵中一般称作冲洗阀。
发表于 2008-12-13 22:22:08 | 显示全部楼层 来自: 中国广东深圳
"另有梭阀的比较作用,通过梭阀左端油液也进入液压缸的有杆腔,形成差动回路。"本人认为不能形成差动的
 楼主| 发表于 2008-12-15 08:12:06 | 显示全部楼层 来自: 中国湖北十堰
冲洗阀!谢谢!我要在好好研究一下这个阀,争取能集成在总成上!
 楼主| 发表于 2008-12-15 12:52:30 | 显示全部楼层 来自: 中国湖北十堰
yaojm1960
& q8 |4 m5 k- I2 z# _+ T液压缸的下端的连通路,是总成要求有浮动的情况下加上去的,负载有浮动,必然油缸要跟着浮动。
发表于 2008-12-16 15:18:15 | 显示全部楼层 来自: 中国浙江宁波
(2)能不能解释详细的啊 ,也进入有杆腔?  一个进无杆,一个进有杆,怎么叫也啊??这个差动好象没多少速度吧?
发表回复
您需要登录后才可以回帖 登录 | 注册

本版积分规则


Licensed Copyright © 2016-2020 http://www.3dportal.cn/ All Rights Reserved 京 ICP备13008828号

小黑屋|手机版|Archiver|三维网 ( 京ICP备2023026364号-1 )

快速回复 返回顶部 返回列表