QQ登录

只需一步,快速开始

登录 | 注册 | 找回密码

三维网

 找回密码
 注册

QQ登录

只需一步,快速开始

展开

通知     

查看: 3659|回复: 5
收起左侧

[求助] 这样的齿轮是公制还是英制?

[复制链接]
发表于 2008-12-11 22:21:58 | 显示全部楼层 |阅读模式 来自: 中国福建漳州

马上注册,结识高手,享用更多资源,轻松玩转三维网社区。

您需要 登录 才可以下载或查看,没有帐号?注册

x
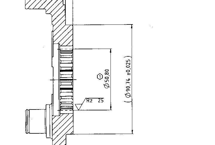
Nuber of teeth(齿数): 24
3 j& z6 a' v6 g: t6 w3 t5 S" U$ x- B/ RPith Diameter(齿轮节径): 20.80
' u& Y- D2 _/ n# ?5 P" S- n3 CPressure Angle(压力角):25°
+ {% b; I2 n) A/ j% V+ h% o( dDiametral Pitch(径节):12! B' P( C& n- m8 q
PIN Diameter(销径):Φ3.6576& j( G& h0 [1 f5 B, G1 Q& F
Between PINS,cut size(销及切之间尺寸):44.882-44.755' R* E: U% D, w4 s* {
各位大虾请帮助看以上是公制还是英制齿轮,哪里能加工这样的内齿轮。
1 Z9 E' }4 ^5 n# e% X. r( d 未命名.GIF
# T( |- {2 ~9 ~! K

/ B0 ?: F1 n" Q: h. O( `[ 本帖最后由 cthlco 于 2008-12-11 22:27 编辑 ]
发表于 2008-12-12 22:27:04 | 显示全部楼层 来自: 中国浙江宁波
楼主,你的齿轮参数不正确,按你提供的图纸上的参数:齿轮节径是50.80,不是20.80哦.24齿,压力角是25度,径节P=12..是英制齿轮.换算成公制齿轮,模数是2.166666666666mm,压力角仍然是25度,订做一把内齿轮插齿刀,订刀时一定要把图纸传给刀具厂,他们会帮你效验合理插齿刀的齿数.找有插齿机的厂家外加工.

评分

参与人数 1三维币 +4 收起 理由
hero2006 + 4 应助

查看全部评分

发表于 2008-12-13 08:36:17 | 显示全部楼层 来自: 中国河北沧州
楼上正解,一般英制齿轮都是径节表示,公制用模数。从这个就能区别出来,如果图纸给出的模数不在公制的两个模数系列当中,而且具有多位小数也要考虑英制,圆弧锥齿轮不在此列。

评分

参与人数 1三维币 +2 收起 理由
hero2006 + 2 应助

查看全部评分

 楼主| 发表于 2008-12-16 14:05:31 | 显示全部楼层 来自: 中国福建漳州
谢谢二楼,是50.80数字错了,有没有熟悉的加工厂在福建这里?我们正在寻找加工厂。用我们普通的插齿机是否可以插出来?
/ b. l+ Y: j' \( F* v$ V0 ~' L. Y; U' I
[ 本帖最后由 cthlco 于 2008-12-16 14:08 编辑 ]
发表于 2009-3-21 18:02:06 | 显示全部楼层 来自: 中国浙江台州

回复 2# 杨善梅 的帖子

补充一下:/ G" s: u' @5 w/ X
DP12相当于模数2.116666.

评分

参与人数 1三维币 +1 收起 理由
hero2006 + 1 积极参与

查看全部评分

发表于 2009-3-21 23:49:44 | 显示全部楼层 来自: 中国浙江杭州
原帖由 cthlco 于 2008-12-16 14:05 发表 http://www.3dportal.cn/discuz/images/common/back.gif
; O7 f# t8 X2 j谢谢二楼,是50.80数字错了,有没有熟悉的加工厂在福建这里?我们正在寻找加工厂。用我们普通的插齿机是否可以插出来?

3 v# ^! T5 [+ U' s/ r普通插齿机加工应该可以的,就是插齿刀必须要定做。
发表回复
您需要登录后才可以回帖 登录 | 注册

本版积分规则


Licensed Copyright © 2016-2020 http://www.3dportal.cn/ All Rights Reserved 京 ICP备13008828号

小黑屋|手机版|Archiver|三维网 ( 京ICP备2023026364号-1 )

快速回复 返回顶部 返回列表